Плоская вагонетка переноса 50 тонн электрическая для промышленной мастерской
Электрическая тележка предназначена для транспортировки тяжелых грузов или оборудования из одного отсека в другой на заводе.Его можно использовать в помещении или на открытом воздухе.Области включают металлургию, литейное производство, строительство новых заводов и судостроение и так далее.

 
Превосходство продукта
 
Удобное обслуживание:
Некоторые движущиеся части шарниров, такие как колеса и подшипники, смазывают, а другие в основном проверяют на чистоту.
Более короткое время простоя обслуживания:
Удобно и быстро, короткое время простоя, низкие затраты на техническое обслуживание
Воздействие на окружающую среду равно нулю:
Низкий уровень шума, отсутствие выбросов выхлопных газов
 
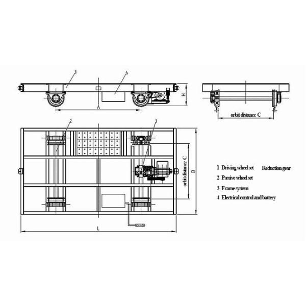
Фактуры продукта
 
Плоская платформа или приспособления для перевозки специальной полезной нагрузки;
Пользовательские конфигурации деки могут включать функции подъема, наклона или поворота;
Грузоподъемность от 1 тонны до 300 тонн;
Возможность фиксированной или переменной скорости;
Тележка для перемещения по стальным рельсам может перемещаться по направляющим C-образной или S-образной формы, а также по направляющим L-образной формы;
Доступное защитное оборудование включает звуковой сигнал, фонари, аварийную остановку, бамперы и детектор.

 
технические параметры
| Модель | БХС-2Т | БХС-20Т | БХС-50Т | БХС-63Т | БХС-100Т | БХС-150Т | 
| Емкость (т) | 2 | 20 | 50 | 63 | 100 | 150 | 
| Колесная база (мм) | 1200 | 2800 | 4200 | 4300 | 4900 | 7000 | 
| Расстояние между колесами сзади (мм) | 1200 | 1435 | 1435 | 1435 | 2000 г. | 2000 г. | 
| Диаметр колеса (мм) | 270 | 350 | 500 | 600 | 600 | 600 | 
| Количество колес (шт.) | 4 | 4 | 4 | 4 | 4 | 8 | 
| Дорожный просвет (мм) | 50 | 50 | 50 | 75 | 75 | 75 | 
| Скорость (м/мин) | 0-25 | 0-20 | 0-20 | 0-20 | 0-20 | 0-18 | 
| Мощность (кВт) | 1 | 2.2 | 5 | 8 | 10 | 15 | 
| Емкость аккумулятора (А/ч) | 180 | 180 | 330 | 400 | 440 | 600 | 
| Напряжение батареи (В) | 24 | 48 | 48 | 72 | 72 | 72 | 
 
 
Применение продукта
Тележка для переноса может применяться во всех видах окружающей среды.
Такие как высокая температура, пыль, взрывозащищенность, водонепроницаемость, аэрозольная краска, коррозия,
