Обязанность деятельности надземного крана A5-A7 мастерской прогона пяди 25m двойная
Емкость нагрузки двойного предложения надземного крана мастерской прогона особенная для низкого дедшейта. Сильный и проворный, своя поднимаясь консервная банка емкости до 120 тонн, это особенно хороший инструмент для общего производства, мастерских, склада и других сборочных конвейеров. Крюк нагрузки можно поднять между 2 прогонами крана (лучем), которые позволяют огромные поднимаясь высоты могут быть сделать их.
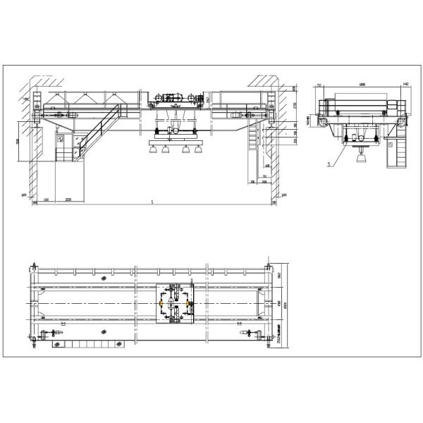
Технические параметры крана двойной мастерской прогона надземного
| Тип | Кран двойного прогона надземный |
| Поднимаясь емкость | 5 тонн – 120ton |
| Поднимаясь высота | 5m до 35m |
| Пядь | 5m-31.5m |
| Электропитание | 380V 50Hz 3Phase или по запросу |
| Рабочий класс | A5-A7 |
| Скорость | Переменная скорость (стандарт) |
| Приборы Eletric | Кран путешествуя переключатель предела |
| Прибор предохранения от перегрузки веса | |
| Поднимаясь прибор предела высоты | |
| Напряжение тока понижает функцию защиты | |
| Функция предохранения от последовательности участка, etc. |
Двойной кран накладных расходов прогона доступен в различных конфигурациях и отличает многосторонностью необходим для дополнительных требований.
Например, более высокие скорости движения крана, дорожки обслуживания, вагонетки с платформами обслуживания все особенности которые можно легко снабдить.
Преимущества двойного крана накладных расходов прогона
1). Качество первого класса с конкурентоспособной ценой
2). Компактный дизайн, оптимальная польза размера рабочих зон
3). Разумная структура, благоприятное представление
4). Контролируйте нагрузку легко и располагайте нагрузку точно
5). Приглаживайте начало и останавливать
6). Главные безопасность и надежность
8). Обслуживание Minimum& легкое, превосходный exchangeability для частей и компоненты
9). Сохраняет спецификации электричества
10). «Универсальный магазин» для ваших потребностей крана и подъема
Особенности двойного крана накладных расходов прогона

●Разумная структура и сильное rigidit. 3 в одном дизайне (редукторе, моторе, тормозе) сохраняют космос и увеличивают эффективную поднимаясь высоту.
●Легкий для установки и обслуживания.
●Прибор предохранения от перегрузки веса.
●В зависимости от поднимаясь груза, кран можно оборудовать с магнитом луча смертной казни через повешение или цыпленком магнита или крюком самосхвата или c.
●Кран оборудован с полностью двигая переключателем предела, нагружая пределом и другими стандартными предохранительными устройствами, для того чтобы пообещать сейфу работы крана.

Особенности безопасности двойного крана накладных расходов прогона
1. Предохранение от перегрузки: Если материал или электрический ток над емкостью, то кран передаст острое предупреждение для защиты.
2. Система аварийной остановки: Если штат деятельности сталкивается некоторое аварийное положение, то мы смогли начать систему аварийной остановки для защиты оператора и родственного сокровища.
3. Резиновые буфера: Верхний качественный буфер материалов полиуретана подшипника долгого времени.
Упаковка и грузить:

