Преимущество продукта
Гибкость
Панельный модульный блок, который предлагает гибкость для объединения блоков для создания расширяемого пространства. Плоские блоки могут быть соединены, чтобы создать лагерный след (или) складываться на себя.
Проектирование
15 блоков сэндвичных досок или панели из каменной шерсти. Переключайте окна и двери по желанию.в отличие от традиционных деревянных офисных прицепов.
СТАККАБЛ
Устройства складываются на куски, предназначены для самоподдержки до 3 единиц высоты для проживания и использования.
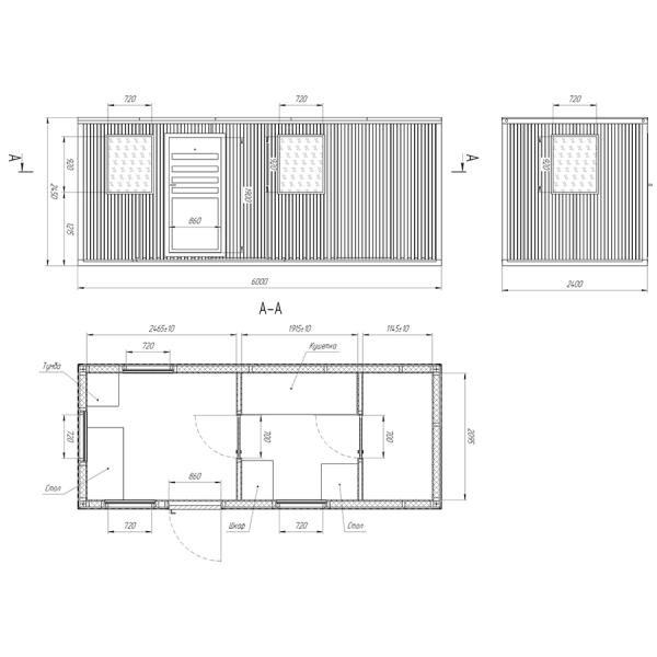
Плоский дом, один из самых популярных типов модульных домов, спроектирован с использованием стальной рамы и легкой системы стенных панелей.4 угловых столба, и 14 обменных стеновых панелей, и могут быть сплющены для легкой транспортировки.
спецификация
| Открытый размер | 5.8L*2.5W*2.6H (пустой дом) 12 комплектов/40HQ |
| Стальная конструкция | Оцинкованная сталь |
| Крыша | 100 мм Стеклянная шерсть + Стальные листы |
| Стены | Огнеупорная сэндвич-панель из EPS или панель из каменной шерсти |
| Полы | 18 мм MGO доска |
| Окно | окно с защитной стойкой из нержавеющей стали |











