Принцип разъединения
Пользоваться принципом которому светлая жидкость, тяжелая жидкость и твердый участок, с различной плотностью и взаимно неразрешимый в смешанной жидкости, приобретают различную скорость седиментирования в поле маховой силы или поле силы тяготения, отделяя стратификацию или причиняя твердые частицы в жидкости депозировать можно достигнуть.
В поле силы тяготения или поле маховой силы, светлые жидкофазовые, тяжелый жидкофазовый и твердый участок с различной плотностью и взаимно неразрешимый в смешанной жидкости, соответственно приобретают различную скорость седиментирования, и таким образом отделяют и стратифицируют. В поле силы тяготения она вызвана разъединением силы тяжести, пока в поле маховой силы она вызвана центробежной сепарацией.
Разъединение силы тяжести
Из-за разницы в плотности, смешанная жидкость в контейнере, после определенного периода времени, постепенно разделена в 2 слоя. Тяжелая частица участка смешанных депозитов жидкости к дну контейнера, пока светлый участок одно приостанавливает к верхней поверхности. Довольно отличительные разделяя плоские формы между светлыми и тяжелыми участками. Скорость разъединения повлияна на разницей в плотности между светом и тяжелыми участками который составляют смешанную жидкость. Большой разница в плотности, более быстра скорость разъединения будет.


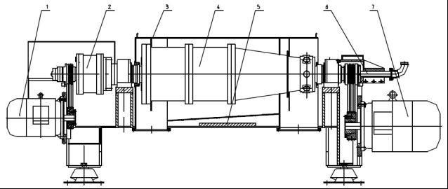
1. задние мотор питаясь трубы 7. постамента 6 раздела 5 барабанчика клобука 4 коробки передач 3. двигателя 2. главный
Применения:
Буровой раствор неотъемлемая часть большинств буровых работ, оно также вызван сверля жидкостью, там некоторые твердые тела приостанавливанные в жидкости
Центрифуга графинчика пиона может снабдить технологию разъединения тверд-жидкости ваше применение бурового раствора, включающ повторное пользование материала и более эффективного и более рентабельного избавления. Мы имеем нашу особенную центрифугу графинчика дизайна и коллокации для месторождения нефти и промышленных твердых тел контроля, сверлящ водоочистку жидкости/чистки и процесса грязи.
Центрифуги графинчика пиона использованы для обработки водных и на масляной основе сверля жидкостей. Центрифуги графинчика месторождения нефти механически увеличивают силу гравитации приложенную на жидкости и смеси твердых тел присутствующих в системе грязи. Мы можем примениться над машиной 3 000 Г-сил для того чтобы отделить частицы в жидкости
Центрифуги графинчика пиона имеют широкую отростчатую емкость соотвествовать все ряды согласно сверля программе. Она обыкновенно и широко использована использованный для деятельности месторождения нефти и газовой скважины предусматривая эффективное управление твердых тел пока значительное уменьшение грязи оператора полной стоило и уменьшает тома уничтожения отбросов.
Спецификации:

Конкурентное преимущество:
автоматическая работа в непрерывном режиме
Уровень воды регулируемый
Наибольшая мощность и самый низкий расход энергии
Управление ПЛК
Вполне крыть черепицей черепицей транспортер винта.



