Оффшорный кабель 50KN кладя ворот для проектировать оборудование палубы корабля корабля
Описание:
Труба шланга/ворот кабеля конструированы и установлены на проектировать корабль корабля, оффшорного и другой особенных цели. Он использован для наматывать хранения трубы кабеля и шланга.
Главные технические данные:
- Емкость тяги безопасности: 50KN
- Скорость: 8-30m/min
- Емкость барабанчика: 40 до 250m
- Одиночный/двойной барабанчик
- Dia шланга всасывания & доставки. 254mm (огнезамедлительный сертификат)
- Положение контроля: Удаленный и местный контроль;
- Электропитание: Электрические управляемые моторы 7.5kW (415V/50Hz) для оффшорной пользы, включенного морского перерыва, распределительного ящика (IP56) и беспроводного дистанционного управления.
- Материал: Слабая сталь & нержавеющая сталь,
- Поверхностное покрытие: sandblasting к S2.5 + 3 слоя краски эпоксидной смолы,
- Сертификаты классификации: CCS, NK, BV, ABS, DNV-GL, LR, KR, RINA, IRS, RS, Etc.

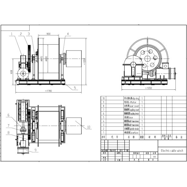
Чертеж оффшорного кабеля 50KN кладя ворот для проектировать оборудование палубы корабля корабля


