260 кг мини-машина для сжигания металла 2 м3/ч Рефрактерное оборудование для сжигания металла
Введение:
Роторная бетонная распылительная машина PS2I-D обладает характеристиками передовых технологий, разумной структуры, стабильной производительности, удобной эксплуатации и обслуживания и длительного срока службы.Это миниатюрная распыляющая машина, специально разработанная для огнеупорных материалов и новых тонких распыляющих материалов.
Широко используется в распылительном строительстве бетона в тоннелях, канализациях, метро, гидроэнергетических проектах, подземных проектах и угольных шахтных болотовых шахтных туннелях.
принцип работы
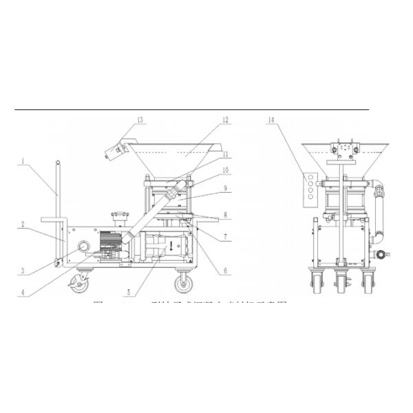
Структура роторной бетонной распылительной машины PS2I-D показана на рисунке 1.Смешанные материалы вводятся в трещину реактивной машины из разгрузочного порта смесителя (или вручную смешиваются и загружаются), впрыскивается во внутреннюю полость ротора в форме буквы T и вращается с ротором к выпускной шлюзу, где он течет из воздушной камеры в сжатый воздух,
Вдыхаем материал в выпускный локоть, рассеиваем, ускоряем и погружаем материал в трубу питания.добавляется небольшое количество дополнительной воды и распыляется.
Структура машины
Роторная бетонная распылительная машина PS2I-D состоит в основном из привода, ротора, системы газовой цепи, распылительной системы, электрической системы и других частей.
Машина использует уникальную Т-образную внутреннюю полость ротора, что улучшает способность машины обрабатывать материалы и уменьшает нагрузку на очистку и техническое обслуживание.Изготовленные из высококачественной сплавной инструментальной стали, с общей твердостью отключения HRC48-54 и длительным сроком службы.
Соединительная плита: имеет две части, верхнюю и нижнюю, изготовленные из специальной резины, нажатой на скелетную плитку.

Спецификация:
| Положение | единица | параметр |
| Мощность | м3 /ч | 2 |
| Давление воздуха | MPa | ≥ 0.5 |
| Потребление воздуха | м 3 /мин | ≥ 8 |
| Горизонтальное транспортное расстояние | m | 100 |
| Максимальный объем | мм | 20 |
| Размер | мм | 1250×500×850 |
| Вес | в кг | 260 |

Введение компании:
Хенанский угольный научно-исследовательский институт Кеминг Компания Equipment Co. , Ltd.
Henan Coal Science Research Institute Keming Mechanical and Electrical Equipment Co. Ltd. (в настоящее время находится в производстве) , Ltd. является дочерней компанией Henan Coal Scientific Research Institute Co., Ltd. Это первая компания в Китае, разработавшая и произведящая машины для сброса бетона.Это один из национальных стандартов для развития распылительной промышленности.
Достижения: имеет более 20 национальных патентов на изобретения и патентов на полезные модели, а также более 10 идентификаций соответствующих департаментов.Он получил 8 наград от угольных ассоциаций и провинциальных департаментов.В 2014 году бренд "Кеминг" получил знаменитый товарный знак провинции Хэнань.Он получил сертификацию системы менеджмента качества ISO9001, OHSAS 18001 Сертификация системы управления охраной труда, сертификация системы управления охраной окружающей среды ISO14001 и сертификация CE.
Услуги: механическая и электрическая продукция, химическая технология, разработка и производство горнодобывающей продукции, технические исследования энергосбережения и защиты окружающей среды,и соответствующая консультационная служба.
Применение:
Наши продукты в основном применяются в области охраны воды и гидроэнергетики, метро, строительства укрытий, муниципального строительства, экологических проектов,Содержание туннелей и мостов, обслуживание склонов, опрыскивание огнеупорных материалов высокой печи, опрыскивание бетона в горнодобывающей промышленности и т.д.
Основные продукты:
Машина для влажного/сухого металлического бетона,штукатурка,Бетонный насос,насос на слив,цементный насос,минометный насос,насос для слизи,насос шланга,цементный/бетонный смеситель,Бетонная пенообразовательная машинаИ так далее.

Выставка:


Часто задаваемые вопросы
1. Вопрос: Какую модель дробильной машины мы должны выбрать?
A: Чтобы рекомендовать наиболее подходящую модель, пожалуйста, сообщите нам ваши требования и подробности вашего проекта, а затем дадим вам профессиональные предложения в ближайшее время.
2. Вопрос: Какая уязвимая часть? Сколько запасных частей мы должны подготовить?
Ответ: после длительного использования резиновый поршень и рукав цилиндра могут изнашиваться. Мы предложим некоторые запасные части бесплатно.
Ссылаясь на срок службы каждой части, мы поставим примерную оценку требуемых запасных частей в соответствии с масштабом вашего проекта.
3Вопрос: Можно настроить модель?
Ответ: Да. Производство на заказ и производство OEM доступны в соответствии с вашими реальными требованиями.
4Вопрос: Нужны ли мне технические навыки для работы с этой машиной?
О: Да. Пожалуйста, ознакомьтесь с инструкцией по эксплуатации, чтобы получить некоторые базовые технические знания, прежде чем использовать эту машину, и свяжитесь с нами, если какая-либо процедура эксплуатации неясна.
5. Вопрос: Что делать, если есть какие-то проблемы с машиной?
Ответ: Инструкция по эксплуатации поможет с рутинным обслуживанием и общими проблемами.
Кроме того, вы можете связаться с нами для получения технических инструкций по электронной почте, мгновенным мессенджерам или прямым видео и т.д.
6Вопрос: Сколько времени?
Ответ: 1 неделя для образца, 2-3 недели для индивидуальной модели.
7Вопрос: Как насчет пакета?
Ответ: Машина будет завернута пластиковой пленкой и упакована в деревянный корпус без фумигации вместе с запасными частями.
8Вопрос: Как сделать заказ?
О: Приемлемы как онлайн-заказ, так и офлайн-заказ.
Рекомендуется размещать онлайн-заказ с помощью торговой гарантии, чтобы получить полную защиту для первого заказа.
9Вопрос: Как оплатить заказ?
A: Как правило, TT, 30% депозит 70% до отправки;
L/C на месте (высокая банковская плата, не рекомендуется, но приемлема);
100% TT заранее (особенно для небольшого количества и запасных частей и т.д.)