Характер продукции
Кран грейферного ковша надземного крана тяжелая работа, на уровне рабочего горизонта A6, A7. Вес Rated поднимаясь 5~25T и направление отверстия самосхвата имеет 2 вида параллели и перпендикуляра к лучу. Прибор захвата выпускник 4-веревочки с двойным барабанчиком, простой структурой, надежной деятельностью. Самосхват может раскрыть и закрыть на любой высоте. Самосхват только применяется к зернистому материалу который на естественном состоянии, когда детали самосхвата подводные или особенные детали, будет частностью помина приказывая.
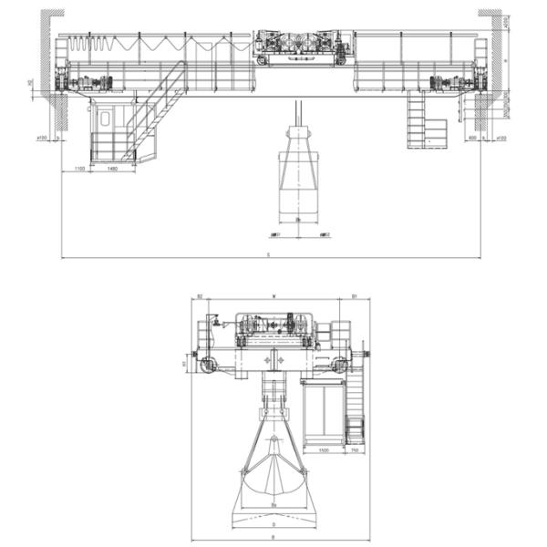
Чертеж и спецификация

| Номинальная нагрузка/тонна | 5 | 10 | 16 | 20 | 25 |
| Span/m | 10-40 | ||||
| Поднимаясь height/m | 22 | ||||
| Рабочий класс | A6/3M | ||||
| Поднимаясь speed/m/min | 40,8 | 40,26 | 41,8 | 48,5 | 38,8 |
| Открыт-конец speed/m/min | 40,8 | 40,26 | 41,8 | 48,5 | 38,8 |
| Вагонетка бежать speed/m/min | 44,5 | 45,6 | 43,2 | 43,2 | 43,2 |
| Кран бежать speed/m/min | 92 | 86,5 | 87 | 87 | 87 |
| Мертвое weight/t | 17.5~38.5 | 25.1~46.6 | 43~63 | 50.6~70.7 | 54.2~75.8 |
| Номер колеса | 4 | 4 | 4 | 4 | 4 |
| Максимальное колесо pressure/KN | 75~17.4 | 117~186 | 202~258 | 235~302 | 255~320 |
| Стальной след порекомендовал | P43 | P43 | P43 | QU70 | QU70 |
| Электропитание | 3AC 220~480V 50/60Hz | ||||
Характеристики продукта и преимущества
Предохранительные устройства
Применение
Этот кран накладных расходов прогона грейферного ковша двойной широко использован в электростанции, хранении, плавя мастерскую сталелитейного завода, порт, завод цемента, и станцию утилизации отходов, etc. для того чтобы нагрузить и разгрузить разбросанные объекты. Кран с самохватом имеет высокие требования на жаре, пыли, и агрессивной окружающей среде. Мы можем снабдить вам оптимальный кран с самохватом ваши применения.

Пакет и доставка
Быстрая доставка:
Magicart имеет систему безопасности и лицо имеющее трудовые стажи продукции для обеспечения своевременного или предыдущего периода доставки.
Пакет:
национальным Stantion экспортируя стандартную коробку переклейки, деревянный паллет или в контейнере 20ft & 40ft. Или согласно вашим требованиям.


вопросы и ответы:
: Можете вы обеспечить индивидуальное обслуживание?
B: Да, конечно. Мы изготовитель и мы имеем нашу собственную группу инженера. Они могут разработать подгонянный дизайн согласно вашему требованию. Большинств важная вещь что вы должны сказать нам что вам нужно.
: Там все профессиональные техники для помощи нашей установки?
B: Да. Мы имеем профессиональную команду установки, которая уже к много стран для помощи установки. Если вам нужно наши техники предложить это обслуживание, то пожалуйста позвольте нам знать заранее. Так, что мы сможем аранжировать соответствующих техников к вашей стране.
: Ли или не вы смогите предложить, который соответствуют запасные части?
B: Да, как одиночный прогон изготовитель продажи надземного крана 10 тонн, мы можем предложить все родственные запасные части. Как мотор,
подъемы, барабанчики, колеса, самосхваты, крюки, рельсы, лучи перемещения, закрытый шинопровод, etc.
: Как можете вы обеспечить качество?
B: Перед доставкой, каждый продукт будет испытан строго и мы отправим вами качественную аттестацию. Вы alsowarmly
добро пожаловать к нашей фабрике для того чтобы сделать осмотры.