Краны разливочного крана надземные - для регуляции расплавленного метала
Характер продукции
Этот бросая кран может работать в жестких окружающих средах с высокой температурой, высокой пылью и вредными газами; поэтому, он имеет характеристики изоляции жары, предохранения пыли и коррозионной устойчивости. Потому что тариф максимальной допускаемой нагрузки и времена максимальной допускаемой нагрузки бросая крана очень высоко, и период непрерывной работы очень длинен, уровень работы бросая крана между A7-A8.
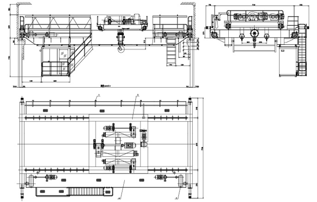
Чертеж и спецификация

| Поднимаясь вес | Основная ручная тележка | T | 10-800 | |
| Пядь | 15-110 | |||
| Поднимаясь высота | Основная ручная тележка | M | 8-110 | |
| Рабочий класс | A6 | |||
| Скорость | Подъем | Основная ручная тележка | m/min | 7,54 |
| Перемещение | Основная ручная тележка | 35,08 | ||
| Мотор | Подъем | Основная ручная тележка | Type/kw | YZR355M-10/90×2 |
| Перемещение | Основная ручная тележка | YZR160L-8/9×2 | ||
| Тележка | YZR225M-8/22×4 | |||
| Вес | Основная ручная тележка | T | 66 | |
| Тележка | 173 | |||
| Максимальное давление колеса | KN | 520 | ||
| Стальной след | QU120 | |||
| Электропитание | трехфазное A.C. 50Hz 380V | |||
Особенности крана накладных расходов металлургии
Объем применения
Металлургические краны главным образом соответствующие для особенных кранов для выплавки металла, завальцовки и термальной обработки. Включая мостовые краны открыт-шестка питаясь, надземные краны, краны, земные питаясь краны, краны ящика, краны де-слитка, полные краны прессформы, расчехляя краны, краны струбцины, краны плиты поворачивая, кующ краны, нагревая загрузку печи и разгружать материальный кран, материальный коробк-электромагнитный кран, материальный кран коробк-самосхвата. Другие подобные металлургические краны можно также использовать как ссылка.





1.Is ваш подгонянный продукт?
Большое спасибо для вашего вопроса. Да, потому что условия труда другие, все наши продукты подгоняны в зависимости от требования к детали! Так если вы даете нам больше информации об емкости подъема, пяди, высоте подъема, источнике питания и других экстренныйых выпусках, то, мы передадим вам очень быстрая и точная цитата.
2. Что информация должно я обеспечить когда дознание?
Большое спасибо для вашего вопроса. Больше информации вы обеспечиваете, точное решение мы можем подготовить для вас! Информация как емкость подъема, пядь, высота подъема, источник питания или другие экстренныйые выпуски вы даете нас будет оцениватьее.
3. Сколько работая методов для моего выбора?
Большое спасибо для вашего вопроса. Стандартные работая методы мы обеспечиваем привесной регулятор с кнопками. Между тем, мы можем также предусмотреть дистанционное управление с кнопками и управление кабины (места космической капсулы) с кнюппелем. Вы можете выбрать любое из их, как раз скажите нам!
4. Что максимальная поднимаясь емкость крана?
Большое спасибо для вашего вопроса. Максимальная поднимаясь емкость нашего стандартного крана до 450 тонн. Если это не может удовлетворять ваше требование к работы. Пожалуйста свяжитесь мы для подгонянного особенного.
5. Космос моей мастерской, может ограничен кран ок для шахты?
Большое спасибо для вашего вопроса. Для низкой мастерской headroom, мы имеем особенные продукты. Размер детали пожалуйста советует с нашим профессиональным инженером.
6. Может кран работать в опасной окружающей среде?
Большое спасибо для вашего вопроса. Этот тип продукт как раз для применения вообще изготовляя мастерскую. Для опасной окружающей среды, пожалуйста советуйте с наш профессиональный администраторов по сбыту.
7.Do ваша сторона может обеспечить инструменты подъема?
Большое спасибо для вашего вопроса. Да, мы можем обеспечить все виды инструментов подъема как пояс слинга подъема, струбцина подъема, самосхват, магнит или другие экстренныйые выпуски как ваше требование.