Сверхмощный подгонянный поднимаясь тип кран на козлах MG материалов 200t луча двойника
Характер продукции
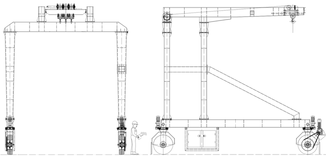
Сверхмощный подгонянный поднимаясь тип кран на козлах MG материалов 200t луча двойника вообще использован в раскрытии автодорожного моста и мост метро, используя precast сегментообразное поднапряжет конкретное собрание луча коробки (луча ПК). Основная особенность высокая эффективность конструкции и само-путешествовать. Вообще она составлена луча, ноги и вагонетка ворота, главный прогон использована для носить, нога исполнить двигать машины поперечный, продольный двигать, выравнивать, поддержка, перекрестная пядь, перекрестный масштаб и другие функции, и вагонетка ворота используемая для поднимать precast прогон.
Чертеж и спецификация

| Емкость нагрузки (t) | 10 | 20/5 | 50/10 | 100/50 | 160/30 | |||||||||||||||
| Поднимаясь высота (m) | 12 | 9.8/10 | 12/16 | 15/25 | 18/30 | |||||||||||||||
| Скорость (m/min) | Механизм крана поднимаясь | 39,56 | 40,1 | 47,12 | 47,12 | 47,3 | 20 | 20 | ||||||||||||
| Механизм вагонетки поднимаясь | 43,7 | 44,6 | 38,5 | 20 | 20 | |||||||||||||||
| Поднимаясь механизм | 9,4 | 7.2/19.5 | 7.68/19.8 | 3/5 | 3.5/7.5 | |||||||||||||||
| Скорость вращения (m/min) | Механизм крана поднимаясь | 940 | 945 | 712 | 712 | 945 | 725 | 725 | ||||||||||||
| Механизм вагонетки поднимаясь | 908 | 908 | 940 | 725 | 960 | |||||||||||||||
| Поднимаясь механизм | 700 | 715/962 | 560/964 | 725 | 585/725 | |||||||||||||||
| Пядь (m) | 18 | 22 | 26 | 30 | 35 | 22 | 30 | 30 | 35 | 22 | 26 | 30 | 35 | 40 | 22 | 26 | 30 | 35 | 40 | |
| Максимальное давление колеса (KN) | 235 | 259 | 275 | 316 | 325 | 275 | 285 | 413 | 500 | 268 | 294 | 325 | 355 | 400 | 466 | 498 | 573 | 580 | 605 | |
Предохранительные устройства
1. Прибор предохранения от перегрузки веса
2. поднимаясь прибор предела высоты
3. функция предохранения от напряжения тока более низкая
4. функция предохранения от последовательности участка
5. функция аварийной остановки
Основные особенности
• Поднимаясь емкость: Подгонянное 10T-300T,
• Длина пяди: 8-40M, Customzied
• Поднимаясь высота: 5 | 32m, Customzied
• Цвет: Желтый, красный или Customzied
Применение
Кран на козлах для тоннелей метро специально использован для сбрасывать навоз во время конструкции метро и транспортировать товары в и из колодец.
Преимущества
• Переменная пядь для того чтобы улучшить использование крана.
• Уровень работы и эффективность работы высоки.
• Большая поднимаясь высота и длинное поднимаясь расстояние.
Применение

Пакет и доставка

Установка и поручать



вопросы и ответы
1.Is ваш подгонянный продукт?
Большое спасибо для вашего вопроса. Да, потому что условия труда другие, все наши продукты подгоняны в зависимости от требования к детали! Так если вы даете нам больше информации об емкости подъема, пяди, высоте подъема, источнике питания и других экстренныйых выпусках, то, мы передадим вам очень быстрая и точная цитата.
2. Что информация должно я обеспечить когда дознание?
Большое спасибо для вашего вопроса. Больше информации вы обеспечиваете, точное решение мы можем подготовить для вас! Информация как емкость подъема, пядь, высота подъема, источник питания или другие экстренныйые выпуски вы даете нас будет оцениватьее.
3. Сколько работая методов для моего выбора?
Большое спасибо для вашего вопроса. Стандартные работая методы мы обеспечиваем привесной регулятор с кнопками. Между тем, мы можем также предусмотреть дистанционное управление с кнопками и управление кабины (места космической капсулы) с кнюппелем. Вы можете выбрать любое из их, как раз скажите нам!
4. Что максимальная поднимаясь емкость крана?
Большое спасибо для вашего вопроса. Максимальная поднимаясь емкость нашего стандартного крана до 450 тонн. Если это не может удовлетворять ваше требование к работы. Пожалуйста свяжитесь мы для подгонянного особенного.
5. Космос моей мастерской, может ограничен кран ок для шахты?
Большое спасибо для вашего вопроса. Для низкой мастерской headroom, мы имеем особенные продукты. Размер детали пожалуйста советует с нашим профессиональным инженером.
6. Может кран работать в опасной окружающей среде?
Большое спасибо для вашего вопроса. Этот тип продукт как раз для применения вообще изготовляя мастерскую. Для опасной окружающей среды, пожалуйста советуйте с наш профессиональный администраторов по сбыту.
7.Do ваша сторона может обеспечить инструменты подъема?
Большое спасибо для вашего вопроса. Да, мы можем обеспечить все виды инструментов подъема как пояс слинга подъема, струбцина подъема, самосхват, магнит или другие экстренныйые выпуски как ваше требование.