Изоляция стеклянной ваты алюминиевых раздвижных дверей модульных домов Prefab железного каркаса высокопроизводительная
Студия сада Аосты простое и элегантное здание комнаты сада с дизайнерским внутренним финишем. Полный продукт; студия сада приходит с выбором вариантов как стандарт портняжничать вашу комнату сада одеть ваши дом и образ жизни.

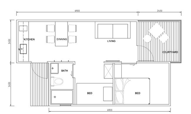
План здания
| Размер | Зона | Floorplan | Прибор |
| W4.9xL9.35×H4m | ² 46 m | Кухня, bathroom, 2 спальни, живущая комната | гостиница проживания в семье, студия сада, workroom, кабина горы, дома отдыха |

Характер продукции
Бунгало доказательства землетрясения DeepBlue полуфабрикат основано на светлой системе железного каркаса датчика с высокопроизводительными заканчивая материалами. Всю структуру можно собрать в пределах несколько дней 4 работниками.


вопросы и ответы
1. q: Что преимущество этого дома системы стальной структуры (сравните с традиционным домом кирпича)?
: Длинная продолжительность жизни; Хорошие землетрясени-защитное, зеленый и энергосберегающий; Быстрый и легкий для установки, etc ......
2. q: Что продолжительность жизни для ваших домов?
: Стойкость структуры больше чем 70 лет.
3. q: Что интенсивность и толщина вашего материала стальной структуры?
: Полностью наша интенсивность стальной структуры S550. Мы можем обеспечить 0.75mm, 0.95mm, материал 1.15mm стальной.
4. q: Как о вашем программном обеспечении дизайна производственного оборудования и структуры?
: Наше производственное оборудование самый предварительный импорт от Новой Зеландии. Наше программное обеспечение дизайна структуры также импортирует от за рубежом-PRO ДИЗАЙНА.
5. q: Что главные технические данные ваших домов?
: Мы можем отправить вами детали спецификации и технологии.
Наши обслуживания
Если вам:, то полуфабрикат дом набора; prefab дом набора. дом рамки стальной структуры homes.steel
Только нужно вы обеспечить нас: район дома, сколько полы и спален, роскошные или нормально, или недорогой конфигурация.
Мы можем обеспечить вас: вилла; бунгало; недорогой дом; квартира бабушки; квартира etc. много дом стиля.
Упаковка & грузить
полуфабрикат упаковка бунгало: пакет наполненного хорошо экспорта качественный, погруженный 40hq.
Информация о компании
Мир DeepBlue Smarthouse одно с предварительным производственным оборудованием, управляемым выдающими профессионалами, внутри ядровая тренируя окружающая среда. Вместе с нашей превосходной корпоративной атмосферой, мы обеспечиваем вас с перво-для нашими клиентами, это наше обязательство к вам.

Упаковка & грузить
Упаковка квартиры бабушки: пакет наполненного хорошо экспорта качественный, погруженный 40hq.

вопросы и ответы
ответ для студии сада:
1. q: Что преимущество этого дома системы стальной структуры (сравните с традиционным домом кирпича)?
: Длинная продолжительность жизни; Хорошие землетрясени-защитное, зеленый и энергосберегающий; Быстрый и легкий для установки, etc ......
2. q: Что продолжительность жизни для ваших домов?
: Стойкость структуры больше чем 70 лет.
3. q: Что интенсивность и толщина вашего материала стальной структуры?
: Полностью наша интенсивность стальной структуры S550. Мы можем обеспечить 0.75mm, 0.95mm, материал 1.15mm стальной.
4. q: Как о вашем программном обеспечении дизайна производственного оборудования и структуры?
: Наше производственное оборудование самый предварительный импорт от Новой Зеландии. Наше программное обеспечение дизайна структуры также импортирует от за рубежом-PRO ДИЗАЙНА.
5. q: Что главные технические данные ваших домов?
: Мы можем отправить вами детали спецификации и технологии.
Наши обслуживания
Если вам:, то полуфабрикат дом набора; prefab дом набора. дом рамки стальной структуры homes.steel
Только нужно вы обеспечить нас: район дома, сколько полы и спален, роскошные или нормально, или недорогой конфигурация.
Мы можем обеспечить вас: вилла; бунгало; недорогой дом; квартира бабушки; квартира etc. много дом стиля.
Ваш первый выбор, панельный дом Deepblue в Китае.