Кран на козлах прогона дистанционного управления IP55 одиночный с консольным
Характер продукции типа одиночного крана на козлах BMH луча:
Кран на козлах электрической лебедки модели BMH semi использован с электрической лебедкой CD или MD.
1) Это след путешествуя небольшой и среднего размера кран.
2) Своя свойственная поднимаясь емкость 2tons-10tons, свойственная пядь от 7.5m до 31.5m, работающ окружающее temp.is -40~40 ' c.
3) Этот кран очень общий тип
4) Оно широко использовано в на открытом воздухе склада, материального двора, для того чтобы нагрузить и разгрузить груз,
5) Режим контроля: управление кабины или дистанционное управление или привесная линия с кнопкой.
Одиночное применение крана на козлах прогона:
Одиночный кран на козлах прогона широко использован для мастерской, станции, порта, склада и, etc., он использован для нагружать и разгружать между фиксированной пядью и им может отрегулировать много видов материалов, как стальная структура, precast бетон, стекло, пластмасса, etc.
Своя модель управлением деятельности: Ручка заземляющего кабеля, дистанционное управление группы беспроводное, деятельность кабины или среди модели контроля 2 вместе с пользой
Основные особенности крана на козлах прогона BMH Semi одиночного:
высококачественный и конкурентоспособная цена
Мы предложим детальное и точный чертеж для каждого крана, убеждаться кран смог достигнуть своего самого высокого эффективного, высокого фактора безопасности, легкого установите и движение.
Главные спецификации:
| Поднимаясь вес (t) | 3 | 5 | 10 | 16 | 20 | |
| Пядь (m) | 12~30 | |||||
| Максимальная поднимаясь высота (m) | 6,9,12 | |||||
| Рабочий класс | A3 A4 | |||||
| Поднимаясь скорость (m/min) | 8,8/0.8 | 8,8/0.8 | 7,7/0.7 | 3,5, 3.5/0.35 | 3,5, 3.5/0.35 | |
| Скорость путешествовать вагонетки перекрестная (m/min) | 20,2~20 | |||||
| Скорость путешествовать крана длинная (m/min) | 30,3~30 | |||||
| Тип мотора | Большой поднимаясь асинхронный электродвигатель с короткозамкнутым ротором белки вращающего момента | |||||
| Мотор (Kw) | Главный поднимать | 4,5 | 7,5 | 13 | 13 | 18,5 |
| Путешествовать вагонетки перекрестный | 1*0.4, 1*0.8, 2*0.8, 4*0.8 | |||||
| Кран длиной путешествуя | 2*0.8, 2*1.5, 2*2.2 | |||||
| Режим контроля | Привесной оперативный контроль, дистанционное управление, управление кабины | |||||
| Порекомендованная модель рельса | 24kgs/m | 30kgs/m | 38kgs/m | 43kg/m | ||
| Источник питания | 3Ph A.C 50Hz 380V | |||||
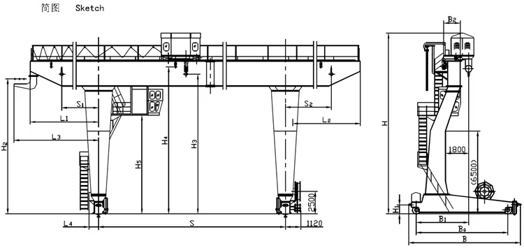
Чертеж крана на козлах прогона BMH Semi одиночного:



