Кран Eot надземного крана прогона 1 тонны крытым одиночным управляемый мотором
Внедрение продукции крана Eot надземного крана прогона 1 тонны крытым одиночным управляемого мотором:
Мостовой кран одно-луча LDA имеет разумный дизайн и высокую ригидность. Его можно использовать с электрической лебедкой.
Мостовой кран с поднимаясь емкостью 1 тонны светлый мостовой кран одно-прогона. Соответствующее для передачи, осмотра, обслуживания и загрузки и деятельность разгружать в мастерских механической обработки, мастерских комбината вспомогательных, складах, складах, и электростанциях. Их можно также использовать для замены традиционных двойных кранов балочного моста в заводах по обработке ткани или еды.
Не работайте в окружающей среде с огнеопасными, взрывно или въедливыми средствами массовой информации. Если вам нужен одиночный кран балочного моста соответствующий для таких особенных случаев, то пожалуйста свяжитесь мы для изготовления на заказ.
Основной параметр крана Eot надземного крана прогона 1 тонны крытым одиночным управляемого мотором:
| Кран путешествуя механизм | Работая скорость (m/min) | (Управление с земли) 20 | (Управление с земли) 30 | (Управление кабины) | |
| Коэффициент скорости | 58,78 | 39,38 | 26,36 | ||
| Мотор | тип | YSE80L-4 | YSE90L-4 | ZDR100-4 | |
| сила (kw) | 2*0.8 | 2*1.5 | 2*1.5 | ||
| вращательная скорость (r/min) | 1380 | ||||
| Поднимаясь подъем Machanism (электрической лебедки) &electric путешествуя механизм | Модель электрической лебедки | Модель MD1 | Модель CD1 | ||
| Поднимаясь скорость (m/min) | 8/0.8 (7/0.7) | 8(7) | |||
| Поднимающ высоту (m) | 6/9/12/18/24/30 | ||||
| Путешествующ скорость (m/min) | 20 | ||||
| Мотор | Модель squirre-клетки конуса | ||||
| Рабочий класс | A3 | ||||
| Электрический ток | 3-phrase 50HZ 380V | ||||
| Диаметр колеса | Φ270 | ||||
| Ширина следа | 37-70mm | ||||
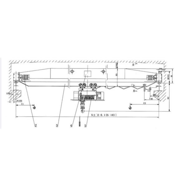
Мостовой кран одно-прогона 1 тонны LDA обычно конструирован как тип одно-прогона. Этот мостовой кран небольшой в размере и свете в весе. Мостовой кран составлен рамки моста, поднимающ механизм, идя механизм, электрическая часть и так далее. Каждая часть нашей компании использует передовую технологию и прочные материалы. Это обеспечивает высококачественный и длинный срок службы наших продуктов. К тому же, мы принимали надежную систему защиты безопасности для того чтобы избежать любого вреда к работникам, как чрезвычайные полномочия, предохранение от короткого замыкания и ограничитель перегрузки. Если вы хотите связаться небольшой поставщик крана, то пожалуйста отправьте нас по электронной почте.


Особенности основы Кран Eot надземного крана прогона 1 тонны крытым одиночным управляемый мотором :
1). Разумная структура, легкая установка и обслуживание;
2). Облегченный дизайн, сильная величина наибольшей допускаемой нагрузки на опору;
3). Мягкое начало и останавливать,Малошумный;
4). Низкая деятельность управляющего напряжения, безопасных и надежных;
5). Обслуживание низкой цены, более длинный срок службы;
6). Сильный тип коробки, сделанный к одно время формируя машину.
Основные части Кран Eot надземного крана прогона 1 тонны крытым одиночным управляемый мотором:
| Главный прогон Особенность: Основное луч принимает сваренный структура луча. Оно имеет высокое вертикальное и горизонтальная ригидность |
![]() | Подъем Емкость: 1-50t Поднимаясь высота: >6m Использование: Мастерская, шахты, гавань etc. |
![]() | Прогон конца Подключенный с главный прогон dolts и гайки для легкого транспорт и установка |
![]() | Крюк Емкость: 1-450t Тип: Одиночный крюк, двойной крюк Использование: Подниматься различный объекты |
![]() | Редуктор Тип: 250 350 850, 1000. Коэффициент: 8.23-317.28 |
![]() | Беспроводной контроль Модель: F21 F23 F24 Скорость: Единая скорость, двойная скорость. Управление скоростью VFD |
Упаковывая &Shipping детали:
вопросы и ответы: