Тип крана QDY отливки балочного моста двойника управлением A7 инвертора частоты
Характер продукции
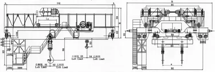
Тип крана QDY отливки балочного моста двойника управлением A7 инвертора частоты составлен положенной в коробку рамки моста, крюка, крана путешествуя механизм и энергетическая система. Главный крюк использует инструмент нагрузки как подъемное устройство для того чтобы поднять стальной ковш, вспомогательный крюк для того чтобы объединить с главным крюком для выполнения лить жидкой стали и стального шлака, и другой вспомогательный поднимать. Используйте различную систему скорости с коэффициентом скорости как 1:10 для основных механизмов как поднимать, вагонетка траверсируя и путешествовать крана. Также мы можем выбрать соответствующую скорость под требованием клиента.
Детали продукта

Основные особенности
автоматная сварка 1.Machine, грациозный и более сильный.
класс обработки взрывать съемки луча 2.Whole: Sa2.5
обнаружение рванины 3.Ultrasonic
прибор предохранения от перегрузки 4.Weight
система стопа 5.Emergency
предохранение от последовательности 6.Phase,
предохранение от положения 7.Zero, предохранение от Не-напряжения тока
8.Over настоящая защита, предохранение от короткого замыкания
предохранение от блокировки 9.Mechanical регулятора
10.Limit переключатель для CT, LT
11.Lifting вверх и понизить вниз с переключателя предела
Проектно-конструкторские стандарты
производство крана 1.Overhead и допуски установки GB/T10183-2005 рельса
спецификация теста 2.Crane и процедуры GB/T5905-1986
3.Crane электрическая аппаратура регулирования JB/T4315-1997
веревочка провода GB8918-2006 применения 4.Important
5.Carbon структура стальное GB/T700-2006
структура стальное GB/T1591-2008 сплава 6.Low высокопрочная
осмотр стандартное JB928-1994 соединения 7.Welding радиографический
8.Steel сваривая совместный ручной ультразвуковой путь GB11345-1989 обнаружения рванины
Структура продукта


Родственные продукты

Главный продукт
Кран шахты Хэнаня встретить фабрику требования, мастерскую, порт, минирование, уничтожение отбросов, товары разбросал, петрохимические, космические, военные и другие индустрии всеобщего мостового крана, тонна 5ton цены 20 надземного крана, кран eot, кран двери, всеобщий кран на козлах, резиновая покрышка и установленные рельсом кран на козлах контейнера, тип связи 4 кран портала, кран контейнера quayside, кран, крюк крана, минируя кран с самохватом, кран на козлах, затяжелитель корабля, выгружатель корабля грейферного ковша, reclaimer штабелеукладчика, земснаряд, мобильные платформы и другие типы гидравлического крана.

Аттестации
Мы проходили CE, ГОСТ (ГОСУДАРСТВЕННЫЙ СТАНДАРТ), SGS, и OHSAS & ISO9001: 2000 международных проверок качества, ISO14001: окружающая среда 1996 и ISO9001: здоровье 2001 и сертификации безопасности. Мы имеем идеальную систему контроля качества, строгую систему управления, и сильную возможность продукции и выдвинули испытывая измерения обеспечить высокую продукцию и высококачественный.

Упаковка & грузить
