10+10T поворачивая электромагнитный вися мостовой кран луча с несущей балкой
Характер продукции поворачивать электромагнитный мостовой кран:
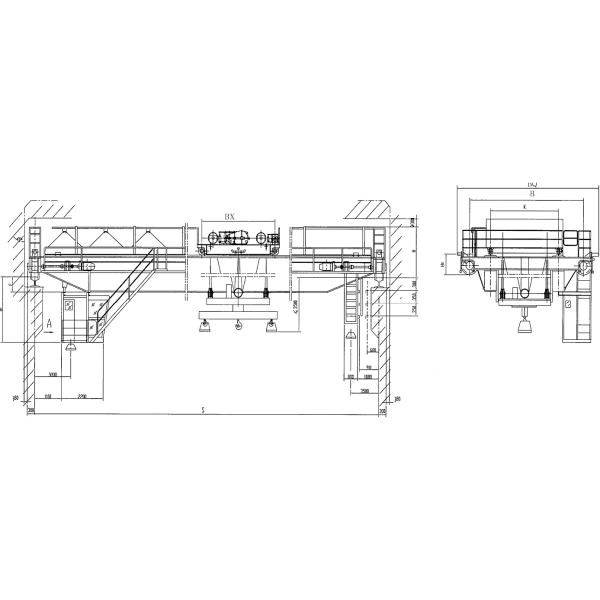
Мостовые краны QL использованы для того чтобы транспортировать железистые металлы как длинные плиты и бары. Вращение осуществлено в 2 путях. Одно вися вращение луча, т.е., вися луч имеет двухслойную структуру. Верхний вися луч рана с веревочкой стального провода через блок шкива.
Более низкий вися луч оборудован со множественными электромагнитными патронами или струбцинами, которые могут вращать с приводным механизмом к некоторому углу. Другая форма вращение вагонетки, т.е., вагонетка имеет двухслойную структуру, верхняя вагонетка оборудована с поднимаясь механизмом, более низкая вагонетка идущая вагонетка, и след кольца положен на его, и верхняя вагонетка может вращать вдоль следа кольца.
Полная кабина области видимости приостанавливать под главным прогоном, там совместный стол контроля или одиночный распределительный ящик упакованный внутри кабина, собирает sidelong лестницу между кабиной и двигая таблицей, главное соединение прогона с бортовым экипажом конца 2 который с совместным пунктом в середине.
Технический параметр (ориентированный на заказчика) поворачивать электромагнитный мостовой кран:
| ||||||||||||||||||||||||||||||||||||||||||||||||||||||||||||||||||||||||||||||||||||||||||||||||||||||||||||||||||||||||||||||||||||||||||||||||||||||||||||||||||


Основные особенности поворачивать электромагнитный мостовой кран:
1. сверхмощное и высокое эффективное;
2. соответствующий для любой окружающей среды (высокотемпературный, взрывозащищенный и так далее);
3. жизненный период длинной жизни: 30-50years;
4. легкий для установки и обслуживания;
5. разумная структура и сильная ригидность;
6. Скорость может быть управлением скоростью инвертора частоты;
7. метод контроля управление или дистанционное управление кабины;
Главный продукт
Кран шахты Хэнаня встретить фабрику требования, мастерскую, порт, минирование, уничтожение отбросов, товары разбросал, петрохимические, космические, военные и другие индустрии всеобщего мостового крана, тонна 5ton цены 20 надземного крана, кран eot, кран двери, всеобщий кран на козлах, резиновая покрышка и установленные рельсом кран на козлах контейнера, тип связи 4 кран портала, кран контейнера quayside, кран, крюк крана, минируя кран с самохватом, кран на козлах, затяжелитель корабля, выгружатель корабля грейферного ковша, reclaimer штабелеукладчика, земснаряд, мобильные платформы и другие типы гидравлического крана.
Аттестации
Мы проходили CE, ГОСТ (ГОСУДАРСТВЕННЫЙ СТАНДАРТ), SGS, и OHSAS & ISO9001: 2000 международных проверок качества, ISO14001: окружающая среда 1996 и ISO9001: здоровье 2001 и сертификации безопасности. Мы имеем идеальную систему контроля качества, строгую систему управления, и сильную возможность продукции и выдвинули испытывая измерения обеспечить высокую продукцию и высококачественный.
вопросы и ответы поворачивать электромагнитный мостовой кран
: Можете вы обеспечить индивидуальное обслуживание?
B: Да, конечно. Мы изготовитель и мы имеем нашу собственную группу инженера. Они могут разработать подгонянный дизайн согласно вашему требованию. Большинств важная вещь что вы должны сказать нам что вам нужно.
: Там все профессиональные техники для помощи нашей установки?
B: Да. Мы имеем профессиональную команду установки, которая уже к много стран для помощи установки. Если вам нужно наши техники предложить это обслуживание, то пожалуйста позвольте нам знать заранее. Так, что мы сможем аранжировать соответствующих техников к вашей стране.
: Ли или не вы смогите предложить, который соответствуют запасные части?
B: Да, как изготовитель крана, мы можем предложить все родственные запасные части. Как мотор, подъемы, барабанчики, колеса, самосхваты, крюки, рельсы, лучи перемещения, закрытый шинопровод, etc.
: Как можете вы обеспечить качество?
B: Перед доставкой, каждый продукт будет испытан строго и мы отправим вами качественную аттестацию. Вы alsowarmly приветствованы к нашей фабрике для того чтобы сделать осмотры.