10T высокая температура крана отливки надземного крана луча пяди 28M двойная
Характер продукции бросая крана
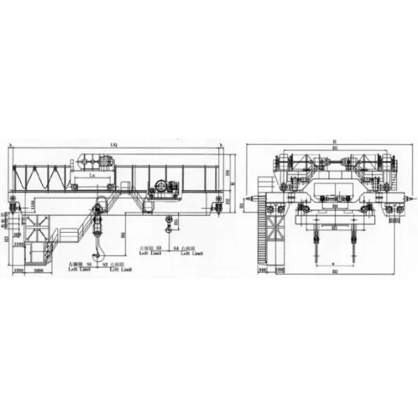
Разливочный кран прогона двойника QDY составлен положенной в коробку рамки моста, крюка, крана путешествуя механизм и энергетическая система. Главный крюк использует инструмент нагрузки как подъемное устройство для того чтобы поднять стальной ковш, вспомогательный крюк для того чтобы объединить с главным крюком для выполнения лить жидкой стали и стального шлака, и другой вспомогательный поднимать. Используйте различную систему скорости с коэффициентом скорости как 1:10 для основных механизмов как поднимать, вагонетка траверсируя и путешествовать крана. Также мы можем выбрать соответствующую скорость под требованием клиента.
Структура продукта бросая крана:
| Поднимаясь вес | Основная ручная тележка | T | 10 | |
| Вторичное handccart | / | |||
| Пядь | 27 | |||
| Поднимаясь высота | Основная ручная тележка | M | 12 | |
| Вторичное handccart | / | |||
| Рабочий класс | A7-A8 | |||
| Скорость | Подъем | Основная ручная тележка | m/min | 10,4 |
| Вторичное handccart | / | |||
| Перемещение | Основная ручная тележка | 43,8 | ||
| Вторичное handccart | / | |||
| Мотор | Подъем | Основная ручная тележка | Type/kw | YZR355M-10/90×2 |
| Вторичное handccart | YZR280M-10/55 | |||
| Перемещение | Основная ручная тележка | YZR160L-8/9×2 | ||
| Вторичное handccart | YZR160M1-6/6.3 | |||
| Тележка | YZR225M-8/22×4 | |||
| Вес | Основная ручная тележка | T | 4,2 | |
| Вторичная ручная тележка | / | |||
| Тележка | 32,8 | |||
| Максимальное давление колеса | KN | 168 | ||
| Стальной след | P43 | |||
| Электропитание | трехфазное A.C. 50Hz 380V | |||

Основные особенности:
Условия труда:
1. Работая tempreture: - 10~+60°C,
2. класс работы: A6-A8,
3. источник питания: 3ph, 380V, 50HZ или другое нижнее требование клиента.
Особенность безопасности:
1. Прибор предохранения от перегрузки веса,
2. Верхний качественный буфер материалов полиуретана подшипника долгого времени,
3. кран путешествуя переключатель предела, функция предохранения от напряжения тока более низкая,
4. система аварийной остановки,
5. настоящая система защиты перегрузки и так далее!
Главный продукт
Кран шахты Хэнаня встретить фабрику требования, мастерскую, порт, минирование, уничтожение отбросов, товары разбросал, петрохимические, космические, военные и другие индустрии всеобщего мостового крана, тонна 5ton цены 20 надземного крана, кран eot, кран двери, всеобщий кран на козлах, резиновая покрышка и установленные рельсом кран на козлах контейнера, тип связи 4 кран портала, кран контейнера quayside, кран, крюк крана, минируя кран с самохватом, кран на козлах, затяжелитель корабля, выгружатель корабля грейферного ковша, reclaimer штабелеукладчика, земснаряд, мобильные платформы и другие типы гидравлического крана.
Аттестации
Мы проходили CE, ГОСТ (ГОСУДАРСТВЕННЫЙ СТАНДАРТ), SGS, и OHSAS & ISO9001: 2000 международных проверок качества, ISO14001: окружающая среда 1996 и ISO9001: здоровье 2001 и сертификации безопасности. Мы имеем идеальную систему контроля качества, строгую систему управления, и сильную возможность продукции и выдвинули испытывая измерения обеспечить высокую продукцию и высококачественный.
вопросы и ответы
: Можете вы обеспечить индивидуальное обслуживание?
B: Да, конечно. Мы изготовитель и мы имеем нашу собственную группу инженера. Они могут разработать подгонянный дизайн согласно вашему требованию. Большинств важная вещь что вы должны сказать нам что вам нужно.
: Там все профессиональные техники для помощи нашей установки?
B: Да. Мы имеем профессиональную команду установки, которая уже к много стран для помощи установки. Если вам нужно наши техники предложить это обслуживание, то пожалуйста позвольте нам знать заранее. Так, что мы сможем аранжировать соответствующих техников к вашей стране.
: Ли или не вы смогите предложить, который соответствуют запасные части?
B: Да, как изготовитель крана, мы можем предложить все родственные запасные части. Как мотор, подъемы, барабанчики, колеса, самосхваты, крюки, рельсы, лучи перемещения, закрытый шинопровод, etc.
: Как можете вы обеспечить качество?
B: Перед доставкой, каждый продукт будет испытан строго и мы отправим вами качественную аттестацию. Вы alsowarmly приветствованы к нашей фабрике для того чтобы сделать осмотры.