10+10T крана EOT прогона пяди 16m уровень надземного крана A5 вагонетки двойного двойной
Характер продукции двойного крана накладных расходов луча
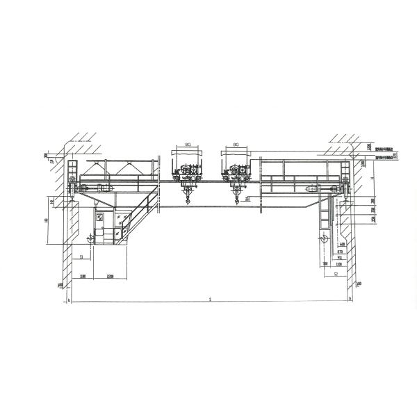
Двойной мостовой кран вагонетки оборудован с 2 вагонетками на главном прогоне на основании мостового крана крюка. Двойные вагонетки можно подняться или побежаться независимо; когда длинным деталям нужно быть поднятым, используйте переключатель перестроения осуществляет одновременные подниматься и синхронный процесс. Соответствующее для поднимать и транспортировать длинные материалы (древесину, трубку бумаги, уплотнение трубки, бар) в мастерской или открытом складе фабрик и шахт.
Технический параметр (ориентированный на заказчика) двойного крана накладных расходов луча:
| Кран луча двойника QE надземный | ||||||
| Поднимаясь емкость t | 5+5 | 10+10 | 16+16 | |||
| Пядь m | 10.5-31.5 | |||||
| Поднимаясь высота m | 16 | |||||
| Скорость M/min | подъем | A5 | 11,3 | 8,5 | 7,9 | |
| A6 | 15,6 | 13,2 | 10,7 | |||
| Путешествовать вагонетки | 37,2 | 43,8 | 44,6 | |||
| Путешествовать моста | A5 | 84.7-90.7 | 84.7-87.6 | 74.2-87.6 | ||
| A6 | 86.5-92.7 | 76-89 | 75.3-89 | |||
| Вес Kg | Вагонетка | A5 | 2126*2 | 3424*2 | 5480*2 | |
| A6 | 2224*2 | 3562*2 | 5760*2 | |||
| Полный вес | A5 | 14741-34875 | 19947-41497 | 26873-52720 | ||
| A6 | 15406-35389 | 20984-44225 | 28061-55272 | |||
| Максимальная нагрузка колеса KN | A5 | 101-158 | 161-229 | 235-325 | ||
| A6 | 104-162 | 167-239 | 242-335 | |||
| Рельс порекомендовал | 43kg/m | 43kg/m | QU70 | |||
| Источник питания | Согласно вашему требованию | |||||

Основные особенности двойного крана накладных расходов луча:
1. сверхмощное и высокое эффективное;
2. соответствующий для любой окружающей среды (высокотемпературный, взрывозащищенный и так далее);
3. жизненный период длинной жизни: 30-50years;
4. легкий для установки и обслуживания;
5. разумная структура и сильная ригидность;
6. Скорость может быть управлением скоростью инвертора частоты;
7. метод контроля управление или дистанционное управление кабины;

Главный продукт
Кран шахты Хэнаня встретить фабрику требования, мастерскую, порт, минирование, уничтожение отбросов, товары разбросал, петрохимические, космические, военные и другие индустрии всеобщего мостового крана, тонна 5ton цены 20 надземного крана, кран eot, кран двери, всеобщий кран на козлах, резиновая покрышка и установленные рельсом кран на козлах контейнера, тип связи 4 кран портала, кран контейнера quayside, кран, крюк крана, минируя кран с самохватом, кран на козлах, затяжелитель корабля, выгружатель корабля грейферного ковша, reclaimer штабелеукладчика, земснаряд, мобильные платформы и другие типы гидравлического крана.
Аттестации
Мы проходили CE, ГОСТ (ГОСУДАРСТВЕННЫЙ СТАНДАРТ), SGS, и OHSAS & ISO9001: 2000 международных проверок качества, ISO14001: окружающая среда 1996 и ISO9001: здоровье 2001 и сертификации безопасности. Мы имеем идеальную систему контроля качества, строгую систему управления, и сильную возможность продукции и выдвинули испытывая измерения обеспечить высокую продукцию и высококачественный.
вопросы и ответы
: Можете вы обеспечить индивидуальное обслуживание?
B: Да, конечно. Мы изготовитель и мы имеем нашу собственную группу инженера. Они могут разработать подгонянный дизайн согласно вашему требованию. Большинств важная вещь что вы должны сказать нам что вам нужно.
: Там все профессиональные техники для помощи нашей установки?
B: Да. Мы имеем профессиональную команду установки, которая уже к много стран для помощи установки. Если вам нужно наши техники предложить это обслуживание, то пожалуйста позвольте нам знать заранее. Так, что мы сможем аранжировать соответствующих техников к вашей стране.
: Ли или не вы смогите предложить, который соответствуют запасные части?
B: Да, как изготовитель крана, мы можем предложить все родственные запасные части. Как мотор, подъемы, барабанчики, колеса, самосхваты, крюки, рельсы, лучи перемещения, закрытый шинопровод, etc.
: Как можете вы обеспечить качество?
B: Перед доставкой, каждый продукт будет испытан строго и мы отправим вами качественную аттестацию. Вы alsowarmly приветствованы к нашей фабрике для того чтобы сделать осмотры.