Характер продукции:
Кран EOT европейского двойного прогона KSSL мобильный для мастерской с высокой эффективностью
Основанный на приносить внутри и ассимилировать чужую передовую технологию, этот тип крана принимает теории модульного проектирования как наведение, использует современную компьютерную технологию как середины, вводит оптимизированные и надежные методы дизайна, которая новый Н тип крана сделанный путем использовать конфигурацию импорта, новый материал и технология и имеет особенности в облегченный, содержание обобщать, консервация энергии и охрана окружающей среды, безуходный и высокотехнологичный.
Европейский надземный кран соответствующий для производства и собрания машинного оборудования, петрохимический, складирования и снабжения, конструкции силы, бумажной промышленности, железной дороги и других индустрий.
Дизайн поднимать механизм строго уносит уместные стандарты FEM.

Особенности с одного взгляда:
Сравненный с обычными мостовыми кранами, само-вес уменьшен 15~30%, давление колеса может быть уменьшено 15~30%, и своя собственная высота также уменьшена 20~30%;
Вагонетка принимает компактный дизайн, и крюк поднимает высокую и ближе к следу мастерской, который увеличивает работая ряд крюка в мастерской;
Поднимая блок принимает форму непосредственного отношения, которое уменьшает связи передачи, уменьшает число пунктов отказа, улучшает кпд передачи, и уменьшает энергопотребление крана;
идущий блок 1.The принимает 3-в-одн моторе редуктора, регулировке скорости преобразования частоты, ровном начале и тормозить без удара.
система управления 2.The может отрегулировать ускорение и кривую торможения, безопасный и легкий для использования.
набор 1.Pulley принимает свернутый шкив с компактным размером, и крюк перемещается небольшое, с небольшой отбрасывая амплитудой и хорошим представлением стабильности.
деятельность 2.When, поднимаясь вес не имеет никакие взмах, точный располагать и автоматический возврат в исходное положение, который увеличивает эффективность работы и улучшает работая безопасность.

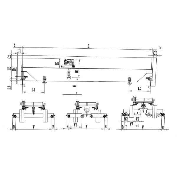
Компоненты:
луч 1.The принимает структуру коробки -следа, и луч конца соединен с высокопрочными болтами, который удобен для транспорта. Специализированное обрабатывающее оборудование обеспечивает точное соединение лучей основы и конца и делает бег крана ровно;
группа вьюрка 2.Welding принята, и целый обожжено, и напряжение веревочки провода сразу действует на рамке вагонетки, и сила хороша;
набор 3.Wheel использует 65Mn выковал колеса, там износоустойчивые колеса, длинный срок службы, высокая точность установки, никакой рельс грызя в деятельности;
4.Reducer трудный редуктор поверхности зуба, поэтому более безопасный молчаливый дизайн, не требующий ухода;


кабина 5.The просторные, широкие поле зрения, удобна и безопасна;
система 6.Conductive: цепь сопротивления проводит электричество, защищает кабель безопасно и надежно, и увеличивает срок службы;
пре-обработка плиты 7.Steel: выравнивать, взрывать съемки, праймер распыляя, CNC прикрывая, объединенная обработка рамки вагонетки и луч конца, делают ошибки уменьшить и высокую точность установки каждого компонента.
Техническая характеристика изделия:
(Описание выбора:)
1. Эта серия крана только перечисляет обыкновенно используемые краны с основными техническими характеристиками, стандартной пядью когда уровень работы A5, и кранами для крытой пользы без вспомогательных крюков.
2. Эта серия может также увеличить вспомогательный поднимая механизм, и может также увеличить установку удваивать скорость на легкой нагрузке;
3. Размеры, весы и давления колеса в таблице для ссылки клиентов приказывая. Если условиям нужно изменить, то вы смогли обеспечить ваши подгонянные требования;
4. Поднимаясь скорость и скорость крана и вагонетки в таблице стандартные значения, которые можно отрегулировать согласно потребностям клиента.

| поднимаясь capacity/t | 5~80 |
| lifitng height/m | 6~20 |
| span/m | 10.5~31.5 |
| поднимаясь скорость (m/min) | ориентированный на заказчика |
| поднимаясь механизм | электрические вагонетка или подъем или ворот |
| материалы | Q235B |
| температура | 一 25~60 c |
| источник питания | 380V 50HZ 3Phase или согласно вашим требованиям |
ВОПРОСЫ И ОТВЕТЫ & КОНТАКТ США:
1Q: Как можете вы обеспечить качество?
: Перед доставкой, каждый продукт с качественной аттестацией будет испытан строго командами QC.
Вы также к нашей фабрике для того чтобы сделать осмотры.
Между тем, также поддержите взгляд фабрики & осмотр в реальном маштабе времени крана.
2Q: Что ваш период доставки?
: Не позднее 10/25/40 дней после того как ваша предплата получило. Точный период должен быть основан на детальных требованиях и фактическом периоде.
3Q: Что ваш период гарантии?
: 18 месяцев для кранов приняли.
4Q: Вы имеете обслуживание установки инженера международное?
: Да, мы смогли предусмотреть наблюдение крана, установку, поручая & тренируя.
5Q: Каким видам продуктов сделайте вас имейте?
: Все виды промышленного крана (особенно нештатного); Надземный кран; Кран на козлах, кран кливера, подъем веревочки провода; Электрический ворот, etc.
6Q: Смогли мы купить запасные части в местном как только они из работы?
: Наши основные электрические части клеймят известный международный бренд; очень легко купить полностью мир. Но если любое затруднение, то мы можем вывесить на вас срочным, как DHL, UPS, FEDERAL EXPRESS, Aramex, etc.
7Q: Вы обеспечиваете инструменты подъема или части крана?
: Да, мы можем обеспечить все виды родственных частей как подъемы, мотор, колеса, луч вида, лучи перемещения, закрытый шинопровод, струбцина подъема, самосхват, магнит, блоки шкива, крюк c, веревочка провода, барабанчик, etc.
