Основные особенности:
1. Сверхмощное и высокое эффективное;
2. Соответствующий для обработки и избавления утиля стальных;
3. Жизненный период длинной жизни: 25-30years;
4. Легкий для установки и обслуживания;
5. Разумная структура и сильная ригидность;
6. Скорость может быть управлением скоростью инвертора частоты;
7. Метод контроля управление или дистанционное управление кабины;
8. В зависимости от поднимаясь груза, кран EOT можно оборудовать с крюком и ведро, хватает, сражается;
9. Кран EOT оборудован с полностью двигая переключателем предела, нагружая пределом и другими стандартными предохранительными устройствами, для того чтобы пообещать сейфу работы крана.

| вес 起重量 поднимаясь | t | 55 | 1010 | 1616 | ||||||||||||||||||||
| пядь m 跨度 | 10,5 | 13,5 | 16,5 | 19,5 | 22,5 | 25,5 | 28,5 | 31,5 | 10,5 | 13,5 | 16,5 | 19,5 | 22,5 | 25,5 | 28,5 | 31,5 | 19,5 | 22,5 | 25,5 | 28,5 | 31,5 | |||
| высота 最大起升高度 максимальная поднимаясь | m | 20/22 | 18/22 | 22 | ||||||||||||||||||||
| рабочий класс 工作级别 | A6 | |||||||||||||||||||||||
| 速度 | подъем 起升 | m/min | 40.1/15.4 | 40.26/14.5 | 41.8/13 | |||||||||||||||||||
| Скорость | ||||||||||||||||||||||||
| перемещение 小车运行 handcar | 44,6 | 45,6 | 43,2 | |||||||||||||||||||||
| перемещение crat 大车运行 | 93,7 | 113 | 112,5 | 101 | 98 | 87,3 | ||||||||||||||||||
| 电机 | подъем 起升 | самосхват 抓斗 | Тип | YZR225-8/22 | YZR208S-10/37 | YZR315M-10/75 | ||||||||||||||||||
| Мотор | крюк 吊钩 | kw | YZR180L-6/15 | YZR225M-8/22 | YZR250M1-6/37 | |||||||||||||||||||
| перемещение 小车运行 handcar | YZR132M2-6/3.7 | YZR160M1-6/5.5 | YZR160M2-6/7.5 | |||||||||||||||||||||
| перемещение crat 大车运行 | YZR160M2-6/7.5×2 | YZR160L-6/11×2 | YZR160M2-6/7.5×2 | YZR160L-6/11×2 | YZR200L-8/15×2 | |||||||||||||||||||
| ручная тележка 小车 | t | 7,6 (8,4) | 11,5 (12,5) | 19.9(21) | ||||||||||||||||||||
| 重量 | вес 总重量 полный | 室内 крытое | 22,7 | 24,4 | 26,4 | 29,2 | 32 | 36,8 | 40,5 | 43,8 | 26,5 | 28,4 | 31,1 | 35 | 38,4 | 43 | 46,8 | 50,4 | 56,4 | 60,3 | 64,8 | 67,7 | 72 | |
| Вес | ||||||||||||||||||||||||
| 室外 на открытом воздухе | 23,7 | 25,3 | 27,3 | 30,1 | 32,9 | 37,7 | 41,4 | 44,7 | 27,4 | 29,3 | 32,5 | 35,8 | 39,3 | 43,9 | 47,8 | 51,2 | 57,6 | 61,7 | 66,2 | 69,1 | 73,5 | |||
| 抓斗 | модель 型号 | u | 113 | 109 | 110 | 105 | 106 | 101 | 102 | 127 | 123 | 124 | 119 | 120 | 115 | 116 | 141 | 137 | 138 | 133 | 134 | 129 | 130 | |
| Самосхват | тип 类型 | 轻型 | 中型 | 重型 | 超重型 | 轻型 | 中型 | 重型 | 超重型 | 轻型 | 中型 | 重型 | 超重型 | |||||||||||
| Свет | Средство | Heauy | spuer тяжелое | Свет | Средство | Heauy | spuer тяжелое | Свет | Средство | Heauy | spuer тяжелое | |||||||||||||
| том 容积 | m3 | 2,5 | 1,5 | 1 | 0,75 | 5 | 3 | 2 | 1,5 | 8 | 4,8 | 3,2 | 2,5 | |||||||||||
| плотность 容重 | t/m3 | ≤1 | >1-1.7 | >1.7-2.5 | >2.5-3.3 | ≤1 | >1-1.7 | >1.7-2.5 | >2.5-3.3 | ≤1 | >1-1.7 | >1.7-2.5 | >2.5-3.3 | |||||||||||
| 自重 | kg | 2633 | 2549 | 2615 | 2506 | 2568 | 2479 | 2546 | 4800 | 4803 | 4866 | 4850 | 4913 | 4730 | 4793 | 7841 | 7993 | 8143 | 8008 | 8159 | 8155 | 8305 | ||
| Мертвый груз | ||||||||||||||||||||||||
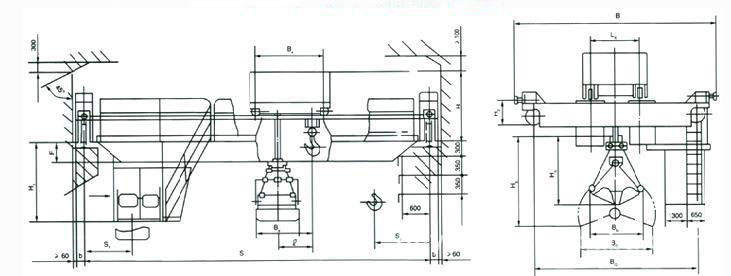
| 主要尺寸 (mm) MainSize | Ба | 1634 | 1444 | 1238 | 1160 | 2060 | 1764 | 1528 | 1416 | 2350 | 2078 | 1792 | 1628 | |||||||||||
| Bb | 2425 | 2175 | 2025 | 1875 | 2970 | 2670 | 2470 | 2230 | 3515 | 3135 | 2915 | 2665 | ||||||||||||
| До Рождества Христова | 3120 | 2740 | 2900 | 2530 | 2690 | 2340 | 2500 | 3900 | 3430 | 3590 | 3220 | 3380 | 3920 | 3080 | 4380 | 4050 | 4250 | 3750 | 3950 | 3430 | 3630 | |||
| Лошадиные силы | 3135 | 2935 | 3015 | 2835 | 2915 | 2735 | 2815 | 3990 | 3747 | 3827 | 3640 | 3720 | 3490 | 3570 | 4775 | 4605 | 4705 | 4455 | 4455 | 4285 | 4385 | |||
| Hb | -3615 | -3385 | -3605 | -3255 | -3475 | -3125 | -3345 | -4560 | -4297 | -4517 | -4125 | -4345 | -3910 | -4130 | 5530 | 5243 | 5483 | 4979 | 5219 | 4811 | 5051 | |||
| след 荐用钢轨 стальной | 43kg/m | QU70 90×90 | ||||||||||||||||||||||
| электропитание 电源 | 三相交流 3-PhaseA.C.50Hz 380V | |||||||||||||||||||||||
CO. крана минирования Хэнаня, Ltd. (hereinafter названный «минирование Хэнаня») было установлено в 2002. Компания имеет зарегистрированную столицу 1,177 миллиарда юаней, район конструкции 1,62 миллиона квадратных метров, больше чем 4 500 работников, и больше чем 3 500 наборов предварительного обрабатывающего оборудования. ). Специализирующ в научных исследованиях и разработки, продукции, продажах и обслуживании больше чем 110 типов кранов и аксессуаров в 3 сериях мостовых кранов, кранов на козлах и электрических лебедок бренда «KUANGYUAN». Как профессиональные изготовитель и поставщик услуг продукта погрузо-разгрузочной работы крана и, он может обеспечить клиентов с общими решениями и полными обслуживаниями жизненного цикла, и совершен к умному, зеленому и высококачественному развитию индустрии крана.
Идеальная система снабжения

Вы интересуемые в этом кране накладных расходов прогона серии QN двойном? Мы готовы закавычить для вас согласно вашим ориентированным на заказчика paremeters следующим образом. (добросердечно пожалуйста обеспечьте следующую информацию при отправке дознания в нас.)
1. Поднимаясь емкость: _____ton
2. пядь: ______meters (она разбивочна к разбивочному расстоянию между железными дорогами)
3. поднимаясь высота: _____meters (расстояние от центра крюка, который нужно справиться)
4. путешествовать длина: _____meters
5. промышленное _____V напряжения тока, _____HZ, 3Phases
6. Который тип самосхват?
7. Вам также нужно мы поставить рельс и шинопровод: Да или нет?
8. Какой материал, который нужно подняться? и материальный удельный вес
метод 9.Control: Управление кабины?
10.Indoor или на открытом воздухе?