Бросая кран одно из главных оборудований в технологии непрерывного литья сталеплавильного производства. Он главным образом использован для лить расплавленный утюг от аддитивного залива конвертера к конвертеру; поднимаясь жидкая сталь от уточняя залива к уточняя печи или поднимаясь жидкая сталь от жидкого стального залива к башенке ковша машины непрерывного литья.
Общая структура литейного крана имеет следующие формы: 2 прогона и 2 рельса, 4 прогона и 4 рельса, и 4 прогона и 6 рельс, etc. форма 2 прогона и 2 рельс, 4 прогонов и 4 рельс, главным образом использованы для литейного крана середины и больш-тоннажности; форма 4-прогона и 6-рельса и вагонетки 2 главным образом использована для дополнительного литейного крана больш-тоннажности.
Основные особенности:
1. Сверхмощное и высокое эффективное;
2. Соответствующий для любой окружающей среды (высокотемпературный, взрывозащищенный и так далее);
3. Жизненный период длинной жизни: 30-50years;
4. Легкий для установки и обслуживания;
5. Разумная структура и сильная ригидность;
6. Скорость может быть управлением скоростью инвертора частоты;
7. Метод контроля управление или дистанционное управление кабины;
8. В зависимости от поднимаясь груза, кран можно оборудовать с магнитом луча смертной казни через повешение или цыпленком магнита или крюком самосхвата или c;
9. Кран оборудован с полностью двигая переключателем предела, нагружая пределом и другими стандартными предохранительными устройствами, для того чтобы пообещать сейфу работы крана.

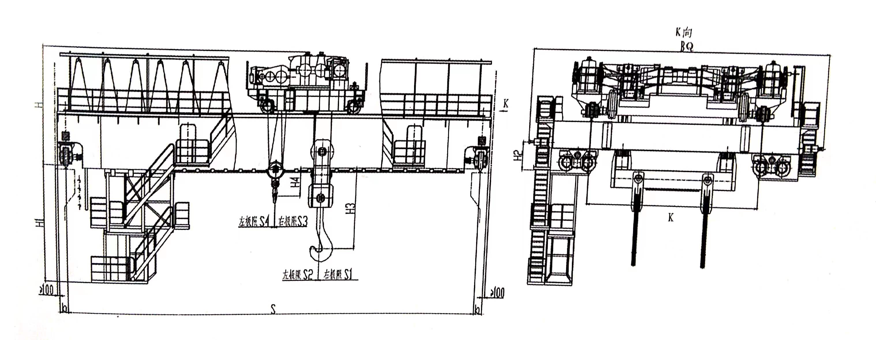
Детальные изображения:

Система снабжения

Чертеж эскиза

Параметры метода
| вес 起重量 (t) поднимаясь | 100/32 | 125/32 | ||||
| рабочий класс 工作级别 | A7 | |||||
| пядь 跨度 s (m) | 19 | 22 | 25 | 19 | 22 | |
| высота 起升高度 (m) поднимаясь | крюк 主钩 главный | 18 | 20 | 25 | 24 | 20 |
| 副钩 Aux.hook | 20 | 22 | 27 | 26 | 22 | |
| скорость 速度 | крюк 主钩 главный | 6,8 | 6,8 | 8,6 | 9,5 | 7,6 |
| 副钩 Aux.hook | 9,5 | 9,5 | 12 | 12 | 9,5 | |
| вагонетка 小车 | 37 | 37 | 41 | 42 | 36 | |
| кран 大车 | 68 | 68 | 77 | 77 | 77 | |
| нагрузка 最大轮压 (KN) Max.wheel | 520 | 530 | 545 | 580 | 595 | |
| след 荐用钢轨 стальной порекомендовал | QU120 | |||||
| электропитание 电源 | AC 三相交流 380V 50Hz 3-Ph | |||||
| 序号 сериал |
деталь 项目 | QDY | QD |
| 1 | 环境温度 температура окружающей среды |
-10~60 ' c | -25~40 ' c |
| 2 | теплозащита 隔热防护 | 1. Кабина водителя должна мочь держать теплый, с охлаждающим вентилятором или кондиционером в комнате, и непроводящий резиновый лист должен быть положен на том основании; 2. Дно электрической комнаты изолировано, крытая температура не может превысить 45' c, и комната оборудована с охлаждающим вентилятором или кондиционером; 3. моторы с изоляцией H-класса; 4. Надежный прибор изоляции жары под более низкой плитой фланца подкрановой балки, и передвижная рана шкива на обоих концах должна быть обеспечена с защитным чехлом; 5. электротехническое оборудование и кабели: гибкие кабели пользы, высокотемпературные кабели. |
Отсутствие особенных требований |
| 3 | объем 适用范围 применения | Оно главным образом использовано для поднимать и транспортировать расплавленный метал в плавя мастерской, завальцовке и других горячих обрабатывая мастерских для поднимать и транспортировать горячие детали (плавя неметаллические объекты и твердые металлы температура которых ниже чем это из расплавленного метала), и может также быть использовано для производства машинного оборудования, структуры металла, собрания, etc. уровень работы непрерывного производства как мастерские и склады занятый с подниматься и нагружать и разгружать в занятые места | Согласно busyness пользы, оно разделено в 2 системы деятельности: промежуточный и тяжелый. Промежуточное звено соответствующее для поднимать и нагружать и разгружать в мастерские и склады как производство машинного оборудования, структура металла, и собрание. Тяжелая ранг соответствующая для плавя мастерских и работа регуляции, который включили в непрерывное производство |
| 4 | рабочий класс 工作级别 | A7 | A3~A6 |
| 5 | прибор предохранения от безопасности 安全保护装置 | 1. Тормоз одиночного мотора двойной; 2. Основной поднимая механизм бросая кранов более большие чем 75 тонн на основной производственной линии должен иметь 2 набора управляющих устройств. Когда один набор управляющих устройств терпит неудачу, другой набор управляющих устройств должен завершить цикл работы под расклассифицированным весом; 3. Поднимая механизм должен иметь двойной предел прибора предохранения от блокировки для поднимаясь положения предела, и ограничитель положения нижнего предела должен также быть обеспечен для кранов с метрами поднимаясь высоты большими чем 20; 4. Для поднимая механизма для поднимать жидкостный металл и другие опасные товары, по крайней мере 2 тормоза будут обеспечены для каждого независимого задающего усилителя; 5. Когда кран оборудован с веся прибором, должно быть очевидные дисплейные устройства в соотвествующих положениях кабины и луча водителя; 6. Часть крана который сразу подвергается действию высокотемпературной радиации должна быть обеспечена со стенами доск изоляции жары или изоляции жары |
Отсутствие особенных требований |
| 6 | 主要零部件以及电气元件 Основные части и электрические детали |
1. Выкованные колеса или свернутые колеса использованы для колес, и колеса бросания нельзя использовать; 2. Главный крюк принимает прокатанный крюк; 3. примите бросая шкив; 4. При использовании вьюрка отливки, при использовании сваривая вьюрка, материал не должен быть ниже чем Q235C или Q345 5. Резистор должен иметь измерения адекватной вентиляции и тепловыделения. |
Отсутствие особенных требований |
| 7 | метод электропитания 供电方式 | Настоящий сборник-слайдер приводя систему в действие | Настоящий сборник для двойного луча поднимая систему электропитания |
| 8 | метод установки 电器安装方法 электрический | Большая тоннажность литейного крана электрически установлена внутри луча | Электрический штабелировать на дорожке |
Вы интересуемые в этом литейном кране двойного прогона серии YZ надземном? Мы готовы закавычить для вас согласно вашим ориентированным на заказчика paremeters следующим образом.
(добросердечно пожалуйста обеспечьте следующую информацию при отправке дознания в нас.)
1. Поднимаясь емкость: _____ton
2. пядь: ______meters (она разбивочна к разбивочному расстоянию между железными дорогами)
3. поднимаясь высота: _____meters (расстояние от центра крюка, который нужно справиться)
4. путешествовать длина: _____meters
5. промышленное напряжение тока __380__V, __50__HZ, AC 3Phases (если оно это же с Китаем?), то
6. режим контроля: Беспроводные дистанционное управление или управление или оба кабины?
7. Вам также нужно мы поставить рельс и шинопровод: Да или нет?
8. Какой материал, который нужно подняться?
9.Indoor или на открытом воздухе?
Добро пожаловать ваши требования.
