Мостовой кран луча беспроводного дистанционного управления 5 тонн одиночный с электрическим гидравлическим двойным самосхватом щитка
Характер продукции мостового крана луча беспроводного дистанционного управления 5 тонн одиночного с электрическим гидравлическим двойным самосхватом щитка:
Мостовой кран самосхвата LZ основан на LDA и перемещениях с грейферным ковшом через подъем веревочки провода или вагонетку подъема. Краны вообще работают внутри помещения, и температуру рабочей Среды самосхват -20℃~50℃.The можно подгонять согласно потребностям клиента. Разделенный электрогидравлический самосхват можно использовать в воде.
Относительная влажность воздуха не превышает 85%. Кран принимает одиночную структуру луча, и использует электрическую лебедку как поднимаясь механизм, который приостанавливан на более низком крае луча для бокового движения.
 Смолотая деятельность принимает асинхронный электродвигатель с короткозамкнутым ротором белки со сдержанным плоским тормозом. Конический обматывая мотор тормоза использован работая в кабине. Тормоз конусный тормоз. Редуктор принимает одн-открытое и одн-конец или торможение одн-открытых и 2-конца инволютное шестерни. Прибор.

Применение:
Кран одиночного прогона надземный главные инструмент и оборудование для механизации и автоматизации обработки в современном промышленном производстве и поднимаясь зонах транспорта. Кран с самохватом одиночного прогона надземный главным образом оборудован со светлым самосхватом класса для хватать и транспортировать материалы, поэтому этим типом краном главным образом используемым для хватать места как уголь шишки, кокс, шлак, цемент и так далее.
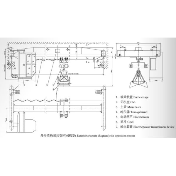
Конфигурация продукта:
Тип одиночный кран LDZ накладных расходов самосхвата прогона главным образом включает 4 части: умственная часть структуры (луч и луч конца, иногда включая путешествовать следы), вагонетка и кран путешествуя механизм, электрическая контрольная часть и поднимая механизм.
1. Умственные части структуры: луч, лучи конца, путешествуя следы;
(1) луч принимает подковообразный паз сформированный стальной пластиной, и после этого формирует в форме коробк луч с лучами конца I-beam.The также свернут в подковообразный паз со стальной пластиной, сваренной в форме коробк лучи конца. Лучи луча и конца соединены болтами.
(2) нас можем поставить путешествовать следы и шинопровод для клиентов согласно требованиям к клиентов. Там имеют 3 метода установки следов: Сваривая метод; метод отладки болта; метод болта с крючком.
механизм 2.Traveling: вагонетка путешествуя механизм и кран путешествуя механизм.
Путешествовать электрических подъема и крана веревочки провода проконтролирован отдельно; и путешествующ моторы принимает клетку белки мягк-начала с тарельчатым тормозом; Скорость путешествовать их около 20 или 30m/min.
части 3.Electrical оборудованы известными международными электрическими брендами, система электропитания мостового крана одно-прогона принимают «многоуровневую безшовную сползая линию».
4. Поднимать механизм: Поднимая мотор принимает большой начиная асинхронный электродвигатель с короткозамкнутым ротором белки ротора вращающего момента конический с тарельчатым тормозом; поднимая механизм использует светлый самосхват класса.

Все продукты нашей компании могут быть подгонянным.
Если любые другие требования, то пожалуйста покажите специально во время приказывать.
| Параметры метода | |||
| поднимаясь вес (t) | 3 | 5 | |
| поднимаясь высота (m) | 18 | 18 | |
| поднимаясь скорость (m/min) | 16 | 16 | |
| ложный удельный вес материалов | 1 | <=1 | |
| рабочий класс | A3 | A3 | |
| путешествовать скорость | вагонетка | 30 (земной контролировать); 75 (управление комнаты) | 30 (земной контролировать); 75 (управление комнаты) | 
| краб | 20:30 | 20:30 | |
| самосхват | том (m^3) | том (m^3) | |
| 0,75 | 1,5 | ||
| пядь | 7.5~22.5m | ||
Основные особенности:
Дизайн согласно самой последней технологии ISO, стандарта CE
Поднимаясь вес 1-20ton
Пядь 7.5m-31.5m
Разумная структура, сильная ригидность
Согласно клиенту потребности можно оборудовать с различным распространителем
Стандартное модульное проектирование
Светлая структура, сильная величина наибольшей допускаемой нагрузки на опору
Малошумные, мягкие начало и останавливать;
Безопасная и надежная деятельность
Сверхмощный мотор slipring, или мотор Sq.cage с VVVF,
IP54 или IP44, класс f изоляции или h
мягкие начало и плавный ход
Подгонянный самосхват можно использовать согласно клиентам
Пакет & доставка:

Направление компании:




вопросы и ответы & контакт мы:
: Можете вы обеспечить подгонянное обслуживание?
B: Да, конечно. Мы изготовитель и мы имеем наш собственный отдел инженера. Они могут разработать подгонянный дизайн согласно вашим требованиям. Вы можете сказать нам какая работа вы использует кран для того чтобы сделать и сказать нам уместные параметры, т.е. тонну, пядь, поднимаясь высоту, длину перемещения, etc.
 
 : Там все профессиональные техники для помощи нашей установки?
B: Да. Мы имеем профессиональную команду установки, которые уже к много стран для помощи установки. Если вам нужно мы обеспечить такое обслуживание, то пожалуйста позвольте нам знать заранее, так, что мы сможем отправить вас для предложения для этой установки и работа поручать, тогда мы аранжируем соответствующих техников к вашей стране своевременной.
 
 : Ли или не вы смогите предложить, который соответствуют запасные части?
B: Да, как изготовитель крана, мы можем предложить все родственные запасные части. Как мотор, редуктор, тормоз, wirerope, подшипник, электрическая лебедка, электрический ворот, барабанчик веревочки, колесо, самосхват, крюк, рельс, луч конца или тележка конца, медный шинопровод или алюминиевые шинопровод, etc.
 
 : Как можете вы обеспечить качество?
B: Перед доставкой, каждый продукт будет испытан строго в нашей мастерской и мы отправим вами качественную аттестацию. Вы также к нашей фабрике для того чтобы сделать осмотры перед доставкой.
