10+10 кран двойного луча модели тонны QL надземный с вращаясь вешалкой электромагнитизма
Характер продукции типа QL кран вешалки электромагнитизма двойного луча 10+10 тонн вращаясь надземный для продажи:
Тип тип смертная казнь через повешение коробки вращения луча двойника испускает лучи магнитный электрический мостовой кран один вид сверхмощного надземного крана, его имеет вращая вися луч, соответствующий для регуляции стальной пластины, стального прута, стального заготовки, его обычно использован на стальном дворе мастерской прокатного стана, крытого или на открытом воздухе хранения, складе, загрузке и материалы стальная пластина разгружать, форменная сталь, катушка и другие.
Вися луч принимает вращая дизайн структуры который надежен, безопасен и имеет некоторую анти- функцию качания. Электромагнитный высасыватель, струбцину и другой особенный слинг можно снести под вися луч.
Основные особенности типа QL кран вешалки электромагнитизма двойного луча 10+10 тонн вращаясь надземный для продажи:
1, этот вид крана зафиксировано с одним ПК типа луча вращения смертной казни через повешение который смог быть вращан к различному углу к направлению луча согласно требованию.
2, плита разного вида магнитная под вися лучем для того чтобы отрегулировать стальной слиток, заготовку, арматуру и так далее.
3, 3 поднимаясь пункта на типе луче вращения смертной казни через повешение для того чтобы убеждаться стабилизированные подниматься и вращение.
4, 2 набора поднимаясь механизма для того чтобы убеждаться поднимать и путешествовать очень стабилизированное.
5, 6 направлений действия с одной системой вращения на вися луче для того чтобы получить более широкую поднимаясь и рабочую зону.
6, работая обязанность от A6 к A7.
7, мягкое начало, 3-5 скоростей работать, очень стабилизированный подняться и бег.
Система безопасности типа QL кран вешалки электромагнитизма двойного луча 10+10 тонн вращаясь надземный для продажи:
Полная система безопасности следующим образом:
предохранение от перегрузки 1.Weight
система стопа 2.Emergency
3.Over настоящая защита, предохранение от короткого замыкания
предохранение от последовательности 4.Phase
предохранение от положения 5.Zero, предохранение от потери напряжения тока
переключатель 6.Limit и затвор для крана длиной путешествуя и пересечь путешествовать
переключатель предела overhigh 7.Lifting и overlow
Параметры продукта технические:
| Поднимаясь вес (t) | 10+10 | 12.5+12.5 | 13.5+13.5 | |
| Пядь (m) | 28,5 | 28,5 | 31,5 | |
| Максимальная поднимаясь высота (m) | 16 | 10 | 13 | |
| Рабочий класс | A6 | A7 | A7 | |
| Скорость (m/min) | Поднимать | 11,4 | ||
| Скорость (m/min) | Путешествовать вагонетки перекрестный | 38 | ||
| Скорость (m/min) | Кран длиной путешествуя | 88 | ||
| Тип мотора | Электромагнитный мотор тормоза | |||
| Мотор (Kw) | Кран длиной путешествуя | YZR315S-10/55 | YZR315M-10/75 | YZR315M-10/75 |
| Режим контроля | Привесной оперативный контроль, дистанционное управление, управление кабины | |||
| Порекомендованная модель рельса | QU80 | |||
| Источник питания | 3Ph A.C 50Hz 380V | |||
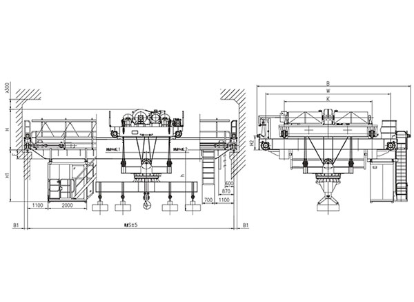
Чертежи типа QL кран вешалки электромагнитизма двойного луча 10+10 тонн вращаясь надземный для продажи:

Эскиз типа QL кран вешалки электромагнитизма двойного луча 10+10 тонн вращаясь надземный для продажи:
