Кран луча модели бренда 10T LDY Kuangyuan одиночный с талью с цепью
Характер продукции:
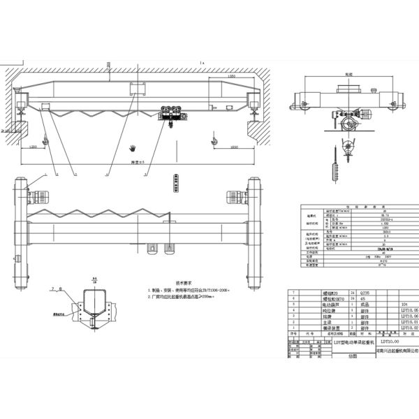
Тип металлургический одиночный кран LDY луча главным образом использован для поднимаясь металлургии расплавленного метала, места отливки, своего поддерживая поднимаясь механизма для электрической тали с цепью. Основная роль прерывистый, периодический режим работы, через поднимаясь крюк или другому выручая необходимо своевременному и быстро полный металлургический производственный процесс требовал поднимаясь смещения перехода тяжелого, важные инструмент и оборудование в современной металлургии промышленных предприятий и бросая месте для того чтобы улучшить производительность труда.
Технические параметры:
| 起重机运行结构 | 运行速度 (m/min) | 20 | 30 | |
| 速比 | 58,95 | 39,42 | ||
| 电动机 | 型号 | 锥形鼠笼 | ||
| 功率 (kw) | 0.8x2,1.5x2 | |||
| 转速 (r/min) | 1380 | |||
| 起升结构 (电动葫芦) 及运行结构 |
电动葫芦形式 | Электрическая таль с цепью | ||
| 起升速度 (m/min) | 8(7) | |||
| 起升高度 h (m) | 9,12,15,18,20 | |||
| 运动速度 (m/min) | 20 | |||
| 电动机 | 锥形鼠笼型 | |||
| 工作制度 | 中级 JE=20% | |||
| 电源 | 380V 50HZ | |||
| 车轮直径 | 270 400 | |||
| 轨道面宽 | 37-70 | |||
Skech:




вопросы и ответы:
Q1. Что делают кран шахты Хэнаня для того чтобы сделать?
: Мы конструируем, изготовляем, устанавливаем надземный кран, кран на козлах, кран порта, подъемы, ворот и обеспечиваем решения клиента поднимаясь.
Q2. Вы предусматриваете профессиональный обслуживать крана?
: Утвердительный ответ и наша команда обслуживания предлагают ряд профессиональных услуг к установке и обслуживают ваш кран.
Q3. Чего мне нужно рассматривать покупая от вас?
: Стандартные детали к conside покупая любое поднимаясь оборудование как надземный кран и кран на козлах или подъем, оно включая безопасную допустимую загрузку, пядь и поднимающ высоту, круги обязаностей и продолжающуюся цену запасных частей.
Q4. Что делает вас отличающимся от другие изготовители?
: Мы тренировали техников обслуживания которые будут получить ваше погрузочно-разгрузочное оборудование материала вверх и бегущ, и обеспечивали решение обслуживания нашего клиента эффективное.
Q5. Каким областям делает вас обслуживание?
: Мы главным образом обслуживаем в Китае и можем отправить инженерам при условии установки и maintenancein во всем мире.