Серия продукта:
CO. крана шахты Хэнаня, Ltd начало в 2002, и начинало ведущий промышленный изготовитель крана в China.There много типов краны и spareparts крана.
одиночный кран балочного моста
двойной кран балочного моста
одиночный кран на козлах прогона
двойной кран на козлах прогона
semi кран на козлах
мини портативный кран на козлах
кран на козлах установленный рельсом
кран на козлах контейнера
гидравлическая поднимаясь платформа
кран типа столбец/стен-смертной казни через повешение кливера
различный поднимаясь механизм: подъем веревочки провода, таль с цепью, ворот, самосхват, магнит, луч вида…

Характер продукции:
5tons тип светлого уровня ZB-A slewing ровный кран кливера от китайского крана шахты Хэнаня поставщика
Кран кливера руки качания одно из оборудования новой середины поднимаясь в последние годы, оно имеет много преимуществ сравненных с другими поднимаясь машинами, им имеет особенную структуру, безопасное представление, высокую эффективность, энергосберегающее, помогающее экономить время и гибкость и так далее. Что больше, оно может работать причинно в трехмерном космосе.
Оно имеет больше преимуществ чем другое обычное поднимая оборудование в коротк-расстоянии и интенсивных поднимая местах, и широко использовано в различных местах в различных индустриях.
Применение: Мастерская, склад, производственная линия, etc.

Основные особенности:
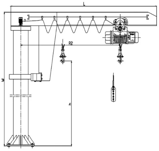
1. Столбец
Столбец поддерживает и исправляет вращая руку крана кливера, и свои верхние и более низкие поддержки составлены подшипников сплющенного ролика одно-строки которые носят радиальные и осевые силы.
2. Рука качания
Вращая рука сварена Я-лучем и поддержкой сочетания из. Своя функция осуществить горизонтальное движение электрической или ручной вагонетки и вверх и вниз движений подъема. Она может вращать вокруг столбца. Угол вращения вообще разделен в 360°, 270°, 180° (смогите быть подгоняно согласно потребностям клиента).
3. Поддерживающий кронштейн и редуктор
Поддерживающий кронштейн поддерживает вращая руку и увеличивает гнуть сопротивление и прочность вращая руки. Ролик управляется редуктором для того чтобы осуществить электрическое вращение крана кливера.
4. Поднимаясь подъем
Поднимая механизм крана кливера можно оборудовать с ручным подъемом, электрической талью с цепью и электрическим подъемом веревочки провода. Подъем поднимает тяжелые объекты и движения горизонтально вдоль крана кливера ручной или электрической вагонеткой, которая увеличивает работая ряд крана кливера.
5. Электрическая часть
Электрическая часть принимает C-рельс плюс система электропитания плоского кабеля, напряжение тока безопасности непрямого регулирования низшего напряжения эксплуатируется, и контроль осуществлен кнопкой двери электрофонаря;
Методы контроля этого типа крана вообще разделены в привесную линию управление кнопки и беспроводное дистанционное управление. Разные кнопки на контроле использованы для того чтобы контролировать быстрый подъем, быстрое падение, медленный подъем и медленное падение электрической лебедки, так же, как двигать вагонетки подъема и вращение крана кливера. , вращающееся контактное устройство в столбце обеспечивает электропитание когда консольное вращает произвольно.

Техническая характеристика изделия:
(Замеченный: Двойная скорость, единая скорость и подъем руководства также выбраны.)
| Технические параметры | ||||||||
| Тип | Поднимаясь емкость | Вверх и вниз скорости (нормального; медленный) (m/min) | Скорость вращения (r/min) | L (mm) | R2 (mm) | R1 (mm) | H (mm) | h (mm) |
| BZD0.25 | 0.25t | 4/1; 8/2 | 0,92 | 5425 | 5000 | 1000 | 5100 | 4000 |
| BZD0.5 | 0.5t | 4/1; 8; 8/0.8 | ||||||
| BZD1 | 1t | 8/2; 8; 8/0.8 | 0,76 | 5500 | ||||
| BZD2 | 2t | 4/1; 8; 8/0.8 | 0,76; 0,59; 0,51 | 3765; 5565; 6525 | 3300; 5000; 6000 | 1300; 1300; 1500 | 4350; 5400; 4660 | 3000; 4000; 3500 |
| BZD3 | 3t | 8; 8/0.8 | 0,51 | 5560 | 5000 | 1500 | 3150 | 3500 |
| BZD5 | 5t | 4680 | 4000 | 1800 | 4770 | 3000 | ||

Пакет & доставка:


Направление компании:




вопросы и ответы & контакт мы:
1Q: Как можете вы обеспечить качество?
: Перед доставкой, каждый продукт с качественной аттестацией будет испытан строго командами QC.
Вы также к нашей фабрике для того чтобы сделать осмотры.
Между тем, также поддержите взгляд фабрики & осмотр в реальном маштабе времени крана.
2Q: Что ваш период доставки?
: Не позднее 10/25/40 дней после того как ваша предплата получило. Точный период должен быть основан на детальных требованиях и фактическом периоде.
3Q: Что ваш период гарантии?
: 18 месяцев для кранов приняли.
4Q: Вы имеете обслуживание установки инженера международное?
: Да, мы смогли предусмотреть наблюдение крана, установку, поручая & тренируя. И это обслуживание порекомендовано требованиями к клиентов.
5Q: Каким видам продуктов сделайте вас имейте?
: Все виды промышленного крана (особенно нештатного); Надземный кран; Кран на козлах, кран кливера, подъем веревочки провода; Электрический ворот, etc. Также, нашу серию продуктов можно подгонять согласно требованиям к клиентов.
6Q: Смогли мы купить запасные части в местном как только они из работы?
: Наши основные электрические части клеймят известный международный бренд; очень легко купить полностью мир. Но если любое затруднение, то мы можем вывесить на вас срочным, как DHL, UPS, FEDERAL EXPRESS, Aramex, etc.
7Q: Вы обеспечиваете инструменты подъема или части крана?
: Да, мы можем обеспечить все виды родственных частей как подъемы, мотор, колеса, луч вида, лучи перемещения, закрытый шинопровод, струбцина подъема, самосхват, магнит, блоки шкива, крюк c, веревочка провода, барабанчик, etc.
