Мосты из стальной плиты Введение:
Мост из стальной плиты является мостом, состоящим из стальных плит, сварных, болтанных или защелченных, чтобы сформировать стальную балки с твердым брюхом в качестве основной несущей структуры, а поперечное сечение в основном имеет форму буквы I.

Классификация железобетонных бревен Мосты:
В зависимости от режима вождения он делится на: верхнюю лучу подшипниковой плиты и нижнюю лучу подшипниковой плиты.
В зависимости от соединения: защелкнутая балки пластинки, полностью сварные балки пластинки и застекленные сваренные балки пластинки.
Экономическая протяженность просто поддерживаемого моста из стальной плиты обычно составляет менее 40 м, а экономическая протяженность непрерывного моста из стальной плиты может достигать 60 м.

Мост из стальной пластины с верхним подшипником:
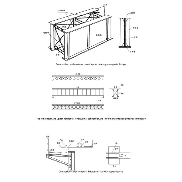
1Состав верхней подшипниковой плиты и балки
Подъемная конструкция (главный балок), мостовой пол, соединительная система, поддержка; отсутствует дорожная и мостовая конструкция (система палубы).Мостовая палуба: мостовая подушка, рельсы, рельсы, фендеры, болты для крюков; Система соединения: верхняя горизонтальная продольная связь, нижняя горизонтальная продольная связь, перекрестная связь, перекрестная композиция.
Верхняя конструкция верхнего подшипного моста из стальной плиты в основном включает в себя: подвеску, опору, пол моста, опору.
Мостовая палуба расположена на верхнем фланце основной балки.
Система мостового палубы продольного соединения
Основная несущая конструкция состоит из двух стекол из стальной плиты, которые в основном несут вертикальные нагрузки.
Малый промежуток может быть использован равным поперечным баллом. Большой промежуток может быть использован переменным поперечным баллом.
Вертикальный и горизонтальный усилители устанавливаются одновременно, чтобы обеспечить местную стабильность сетки.
Вертикальный усилитель в конце луча называется конечным усилителем, который передает реакционную силу конца луча.
Характеристики и область применения верхней подшипниковой плиты:
Простая структура, сохранить сталь, может быть транспортирована в целом отверстие, все отверстие эрекции, часто используется для небольшого размера
Когда протяженность менее 40 м, мост из стальной плиты более экономичен, чем стальный мост из стальной решетки, поэтому стальный мост с небольшим протяженностью обычно используется в качестве моста из стальной плиты.
2. Мостик подвески из стальной плиты:
Состав моста подводящего полотна из стальной плиты:
Грузоподъемная конструкция (главный луч), мостовая палуба, соединительная система, система мостовой палубы, поддержка.расстояние между центрами двух основных лучей в стандартной конструкции 5.4m; конструкция такая же, как и верхняя балки пластинки подшипника; мостовая палуба: мостовая подушка, рельсы, рельсы, фендеры, состав болта, конструкция с верхней балки пластинки подшипника;
Мостовая палуба расположена на нижнем фланце основной балки.
Характеристики и диапазон применения моста на бревне подвесной плиты:
Высота здания (от основания рельса до основания балки) низкая.
Использовать больше материалов (увеличить систему мостового пола) и производство также стоит труда.
Из-за его ширины его нельзя перевозить по всему отверстию, что увеличивает нагрузку на погрузку и рамку.
Мост из стальной плиты с бревнами Сфера применения:
Структура железнодорожных и автомобильных железнодорожных станций
Мосты из стальной плиты также широко используются в строительстве железнодорожных мостов. Они могут вмещать тяжелые нагрузки поездов и обеспечивать необходимое расстояние для железнодорожного движения.Мосты из стальной плиты часто используются как для магистральных железных дорог, так и для легких железнодорожных транзитных систем.
Мосты из стальной плиты широко используются при строительстве мостов на автомагистралях и дорогах, включая переходы, перекрестки и перелеты.Они способны преодолевать большие расстояния и выдерживать тяжелые нагрузки., что делает их подходящими для районов с большим трафиком и основных транспортных коридоров.
Мост из стальной плиты
Компоненты особенно подходят для промышленного изготовления, легко транспортируются, а скорость установки на площадке быстрая.Так что срок строительства стального моста короткий..
2Стальные мосты легко ремонтируются и заменяются после повреждения.
Устойчивость к погодным условиям низкая, легко ржавеет, а шум большой и стоимость обслуживания высока, когда железнодорожный стальной мост использует открытую палубу.
Преимущества моста из стальной плиты:
Простая структура
Легкое производство
Транспортировка целых отверстий
Удобная установка и обслуживание
Обзор стальных мостов Evercross:
| Спецификация EVERCROSS STEEL BRIDGE | ||
| ЭВЕРКРОСС СТЕЛЬНЫЙ мост |
Мост Бейли ((Compact-200, Compact-100, LSB, PB100, Китай-321, BSB) Модульный мост (GWD, Delta, 450-типы и т.д.) Мост Трасса, мост Уоррена, Мост из арки, мост из плиты, мост из балки, мост из балки, Подвесный мост, кабельный мост, Плавучий мост и т.д. |
|
| ПРОГРАФИЧЕСКИЕ ПОДРЕЖЕНИЯ | От 10 м до 300 м | |
| СТРАНИЦА перевозки | Однополосный, двойной, многополосный, пешеходный, и т.д. | |
| КАПАЦИТЬ погрузки | AASHTO HL93.HS15-44,HS20-44,HS25-44, BS5400 HA+20HB, HA+30HB, AS5100 Грузовик-T44, IRC 70R класс A/B, НАТО STANAG MLC80/MLC110. Грузовик-60Т, Прицеп-80/100Тн и т.д. |
|
| Сталь | EN10025 S355JR S355J0/EN10219 S460J0/EN10113 S460N/BS4360 Степень 55C AS/NZS3678/3679/1163/класс 350, ASTM A572/A572M GR50/GR65 GB1591 GB355B/C/D/460C, и т.д. |
|
| Сертификаты | ISO9001, ISO14001, ISO45001, EN1090, CIDB,COC,PVOC,SONCAP и т.д. | |
| Сварка | AWS D1.1/AWS D1.5 AS/NZS 1554 или эквивалентный |
|
| Шнурки | ISO898, AS/NZS1252, BS3692 или эквивалентный | |
| КОД ГАЛВАНИЗАции | ISO1461 AS/NZS 4680 ASTM-A123, BS1706 или эквивалент |
|
