3,5 стены угла тонны крена канала формируя делающ машину формируя скорость 20 m в минуту
Введение угла стены
Крен канала угла стены формируя машину может произвести различные виды сталей угла, которая производит толщину катушек 0.4-1.2mm стальных. Номер крена формируя станции станции aout 9, или согласно вашему чертежу профиля. Мы можем конструировать машину и график течения согласно вашим чертежу и требованиям к профиля. Мы также имеем несколько питаясь систем и гидравлических пробивая системы которые могут удовлетворять ваши сложные пробивая требования.
Технический параметр
| | Материальная толщина | 0.4-1.2 mm |
| | Свертывая скорость | Линейная скорость около 20 m/min |
| | Станции ролика | Около 9 станций |
|
| Материал ролика | 45# стальное с гасить вал 60mm |
| | Калечьте силу мотора | 5,5 kw |
| | Гидравлическая мощность резания | 4 kw |
| | Материал вырезывания | CR12 с гасят обработку |
| | Твердость | HRC58-62 |
| | Допуск | +-1.5mm |
| Электрическая система управления | Электрический источник | 380V, 50HZ, участок 3 |
| | Система управления | Система управления PLC |
| | Вес | Около 3,5 тонны |
| | Путь привода | цепь 1 дюйма одиночная |
| | Размер машины | Высота 800mm ширины 500mm* длины 4500mm* |
Работая процесс
A.Passive Decoiler .........................................................., который нужно нагрузить и раскручивая материал
(Мы также имеем электрическое Decoiler и гидравлическое Decoiler для удержания тяжелого материала.)
Аппликатор B.Servo питаясь ............................................ для того чтобы кормить материал точно
C.Hydraulic/Press пробивая ........................................... для того чтобы пробить как требования
D.Roll формируя блок ......................................................... для того чтобы свернуть форму как требования
E.Hydraulic режа ......................................................... к листам отрезка как пожеланная длина
(Мы также имеем нон-стоп гидравлическую режа систему.)
Законченное поддержки таблицы F.Output ................................................................ - продукты
Собирать Decoiler-feedingwithguide-Rollforming-Вырезывани-продуктов

Компоненты машины
| | 1 набор |
| | 1 набор |
| | 1 блок |
| | 1 блок |
| | 2 блока |
| | 1 блок |
| | 1 блок |
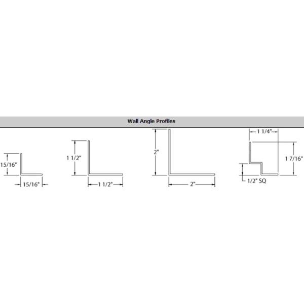
Профиль продукта

Фото машины

