Портативные масштабы цапфы, весят пусковую площадку, модель: ЕМКОСТЬ TS-01: 10T, 15T, 20T ОТЛИЧАЕТ: Ультра низкопрофильный весит высоту масштабов 21mm пусковой площадки (более менее чем 3/4" высоко) 40 000 lb в pad/80,000lb в цапфу, широко достаточно для того чтобы приспособить двойной Алюмини-сплав автошин; Легко установил/unmounted наклон; Герметично…
Портативные масштабы цапфы, весят пусковую площадку, модель: TS-01
Емкость: 10T, 15T, 20T каждая пусковая площадка
Особенности:
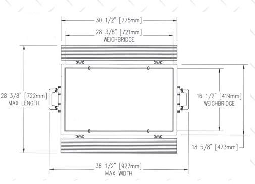
Размеры (mm):

| ПАРАМЕТРЫ: | |
| Точность (%F.S): 0.1~0.5 | Сопротивление изоляции (m) 5000 (100VDC) |
| Динамическая ошибка (%F.S): 1,5 (1~5km/h) 3~5 (5~10km/h) | Компенсированное temp.range (℃): -10~+50 |
| Требуемая производительность (mV/V): 1.0±0.1 & 1.5±0.1 | Используйте temp.range (℃): -30~+80 |
| Нелинейность (%F.S): 0,2 | Temp.effect на нул (F.S/10℃): 0,03 |
| Ошибка на углах (%F.S): 0,2 | Temp.effect на пяди (F.S/10℃): 0,05 |
| Repeatariy (%F.S): 0,05 | Безопасная перегрузка (%): 120 |
| Нул балансов (%F.S) 1 | Окончательная перегрузка (%): 150 |
| Напряжение тока возбуждения (VDC): 9~15 | Чистый вес (kg): 21 (10t, 20t) |
| Порекомендованное напряжение тока (v): 10 | Защитите ранг: IP66 |
