Аксессуары ячейки загрузки легированной стали веся обслуживание ОЭМ модуля СДК-01
Весить модуль СДК-01
Весить модуль, модель аксессуаров ячейки загрузки: Легированную сталь конструкции собственной личности предохранения от старта СДК-01 выравнивая покрытую никелем, нержавеющую сталь доступную можно использовать с одиночной клеткой нагрузки на пучки ножниц
Весить модуль, аксессуары ячейки загрузки
Модель: СДК-01
Предохранение от старта
Конструкция собственной личности выравнивая
Легированная сталь покрытая никелем, нержавеющая сталь доступная
Смогите быть использовано с одиночной клеткой СД-01/1-20т нагрузки на пучки ножниц
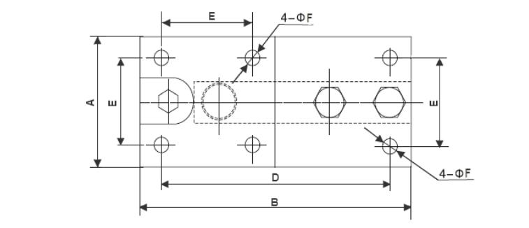
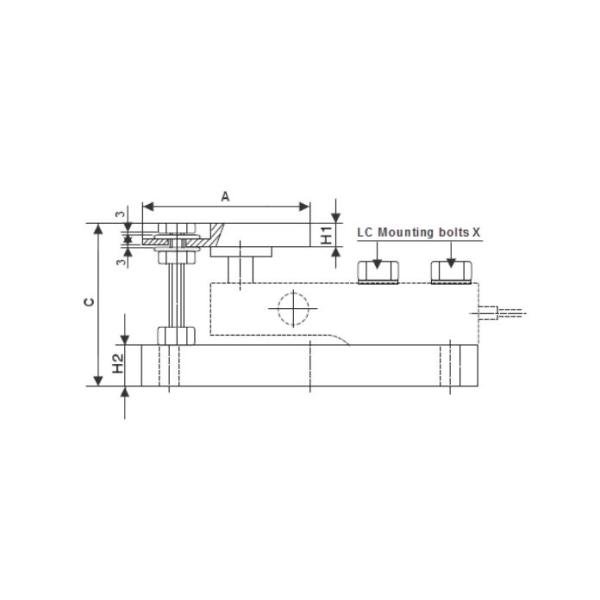
Размеры (мм)


|
Емкость |
А |
Б |
К |
Д |
Э |
Ф |
Х1 |
Х2 |
С |
|
0.5-2т |
114,3 |
240 |
104,8 |
214,6 |
88,9 |
11,0 |
25,4 |
25,4 |
М12 кс 70 |
|
3т |
114,3 |
240 |
104,8 |
214,6 |
88,9 |
11,0 |
25,4 |
25,4 |
М14 кс 70 |
|
5т |
152,4 |
300 |
136,5 |
249,2 |
101,6 |
17,5 |
42 |
42 |
М20 кс 100 |
|
10-15т |
203,2 |
355,6 |
190,5 |
304,8 |
152,4 |
20,6 |
44,5 |
44,5 |
М27 кс 120 |
|
20т |
228,6 |
406,4 |
228,6 |
342,9 |
165,1 |
25,5 |
50,8 |
50,8 |
М33 кс 140 |