Максимальная вытягивая линия электропередач силы 100кН 10Т 330кв шнуруя машину гидравлического пулера оборудования
Быстрые детали:
Характеристики
1. Максимальный диаметр веревочки: 21мм
2. диаметр Макса вьюрка веревочки: 1400мм
3. полный вес: 4350кг
4. диаметр зубчатого кривошипного диска: 540мм
5. номер паза: 8
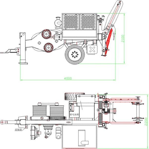
6. Общий размер (лентх*видтх*хайгхт): 4500×2100×2450мм
Описание
Эта машина учитывает шнуровать напряжения проводника двойн-пачки 500мм2 и ниже в гористых и холмистых районах, проводника двойн-пачки 630мм2 и ниже в плоских землях, и одиночного проводника 720мм2 в различных местностях; кроме того, ее можно использовать для шнуровать тракции веревочки ОПГВ или оптического кабеля и откатки 220кВ АДСС в различных местностях.
Представление
Максимальная прерывистая тяга: 100кН
Максимальная непрерывная тяга: 90кН
Скорость на максимальной тяге: 2.5км/х
Максимальная скорость: 5км/х
Вытяните на максимальной скорости: 40кН
Двигатель
Основная конфигурация
Двигатель: Кумминс
Главный насос: Немецкий--Рексротх
Редуктор скорости главного мотора: Немецкий--Рексротх
Кронштейн кабеля поднимая мотор: Американский--Этон
Гидравлический метр: Немецкий--ВИКА
Конфигурация
Гидравлическая передача
Закрытая гидравлическая цепь для шага меньше изменения скорости в обоих вращая направлениях. Эта машина обеспечена с системой про-установки тяги которая поддерживает начальную установку вытягивая значение (также когда скорость уменьшена до «0") автоматически регулировать скорость деятельности согласно трению и непредвиденным нагрузкам которое могут произойти.
Дополнительные приборы

Больше изображений



Введение компании
Провинция Цзянсу Исин Бою Электричество Машинное оборудование Компания расположена в западной стороне красивого и плодородного озера Тайху.
Наша компания высокотехнологичное предприятие провинции Цзянсу имея 6 патентов, включая 2 патента вымысла. Наша компания имеет всю площадь 42800 квадратных метров, формируя 4 продукта серии:
Мы производим 40~60сец шнуровать оборудование каждый месяц и все виды аксессуаров.
1. конфигурации основы нашей машины от Германии и США
Двигатель: Американец Кумминс
Главный насос: Немец Рексротх
Главный редуктор скорости мотор&: Немец Рексротх
Кронштейн кабеля поднимая мотор: Американец Этон
Гидравлический метр: Немецкое ВИКА
2. Наша компания была основана в 1997, имеющ 15 лет богатого опыта в этом поле. Наше надувательство продукта в далеких рынках: Наш продукт Судана, Кении, Анголы, Пакистана, Бирмы, Индии, Мексики, Германии етк. также очень популярен в фарфоре.
3. Мы имеем одну гарантию года качественную, если внутренние компоненты идут неправильно не позднее один год, то мы изменим другие бесплатно.
4. Мы можем поставить определенные компоненты к покупателям с себестоимостом после периода гарантии.


Загрузка контейнера

Максимальная вытягивая линия электропередач силы 100кН 10Т 330кв шнуруя машину гидравлического пулера оборудования