Максимальная передающая линия тяги 180kN 18T высоковольтная шнуруя машину TY180 оборудования гидровлическую вытягивая
Быстрые детали:
Двигатель
Описание
Машина позволяет для шнуровать напряжения проводника 4 пачек 630mm2 и ниже в гористых и холмистых зонах, и проводника 4 пачек 720mm2 и ниже в плоских землях; кроме того, ее можно использовать для шнуровать тракции кабеля OPGW или ADSS оптически и тракции 500kV шнуруя в различных местностях.
Представление
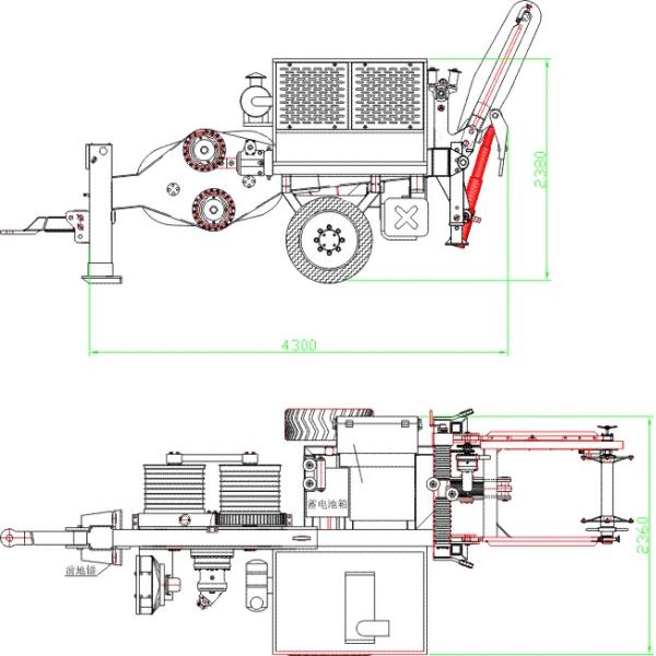
Максимальная прерывистая тяга: 180kN
Максимальная непрерывная тяга: 150kN
Скорость на максимальной тяге: 2.5km/h
Максимальная скорость: 5km/h
Вытяните на максимальной скорости: 75kN
Характеристики
Главным образом конфигурация
Конфигурация
Гидровлический силомер с точкой отсчета и режимом автоматического управления максимальной тяги
Система охлаждения гидровлического масла
Регулирующие приборы для гидровлической системы и двигателя дизеля
На моталке вьюрка с автоматическим ровным ветром, соответствующим для стандартного mod вьюрка. 1100 и 1400
Гидровлический передний стабилизатор
Зазмеление места включения
Гидровлическая передача
Закрытая гидровлическая цепь для шага меньше изменения скорости в обоих вращая направлениях. Эта машина обеспечена с системой профессиональный-установки тяги которая поддерживает заранее поставленное вытягивая значение (также когда скорость уменьшена до «0") автоматически регулировать скорость деятельности согласно трению и непредвиденным нагрузкам которое могут произойти.
Дополнительные приборы
Осветительная установка для трейлера
Тормозная система гидравлического тормоза для трейлера
Экстренные ролики для дополнительной пилотной веревочки
Гидровлическая струбцина веревочки для деятельностей изменения вьюрка
Экстренный вал
Электронный рекордер тяги и скорости

Больше изображений
Введение компании
Установленный в 1997, CO. машинного оборудования электричества Исина Boyu, Ltd. изготовление специализированное в исследовании, развитии и продукции машинного оборудования электричества.
Мы расположены в красивейшем и богатом городе: Город Исина. Мы высокотехнологичное предпринимательство в провинции Цзянсу, с удобным доступом перевозки. Весь из наших продуктов исполняют с международными стандартами качества и значительно оценены в разнообразие различных рынках повсеместно в мир.
1. Главным образом конфигурации нашей машины от Германии и США
Двигатель: Американец Cummins
Главный насос: Немец Rexroth
Главный редуктор скорости motor&: Немец Rexroth
Кронштейн кабеля поднимая мотор: Американец Eton
Гидровлический метр: Немецкое
2. Наша компания была основана в 1997, имеющ 15 лет богатого опыта в этом поле. Наше надувательство продукта в дистантных рынках: Наш продукт Судана, Кении, Ангола, Пакистана, Бирмы, Индии, Мексики, Германии etc. также очень популярен в фарфоре.
3. Мы имеем одну гарантию качества года, если внутренние компоненты идут неправильно не познее один год, то мы изменим другие бесплатно.
4. Мы можем поставить специфические компоненты к покупателям с себестоимостом после периода гарантированности.


История
Основанный в 1993, фабрика машинного оборудования силы города Исина
Установленный в 1997, CO. машинного оборудования силы Boyu города Исина, LTD
В 2001 пройденная компания аттестацией ISO9001, и получает сертификат AAA
В 2006 достигает предпринимательства trustworthiness подряда города Wuxi, также достиганного известного продукта тавра в городе Wuxi
В 2007 достигает высокотехнологичного предпринимательства провинции Цзянсу, также достиганных продуктов известной марки в провинции Цзянсу
В 2009 reworded значительно достижение в городе Wuxi
В Boyu 2010 скооперировал с Германией известным Цезаром Компанией устанавливая тавро Boset
В 2010 достигл национального министерства рационализаторства науки и техники в проекте науки и техники.
К ноябрю 2013, предпринимательство Boyu имеет уже пулер надувательства и оборудование напряжения (исклучая передвижной земли меля) почти 5000 комплектов. Наши продукты проданы хорошо в Австралии, Египете, Англии, Судане, Кении, Ангола, Пакистане, Бирме, Индии, Мексике, Алжире, Турции, Перу, Колумбии, Бразилии, Аргентине etc.
Максимальная передающая линия тяги 180kN 18T высоковольтная шнуруя машину TY180 оборудования гидровлическую вытягивая