Сейф ФУДЗИ высокоскоростной & малошумный жилой лифт пассажира
Астетические дизайн автомобилей лифта Xinda, полный моды, так же, как гармонизации. Он значительно удовлетворял потребности индивидуализирует стиль и вкус.
|
Нагрузка (kg) |
Скорость (m/s) |
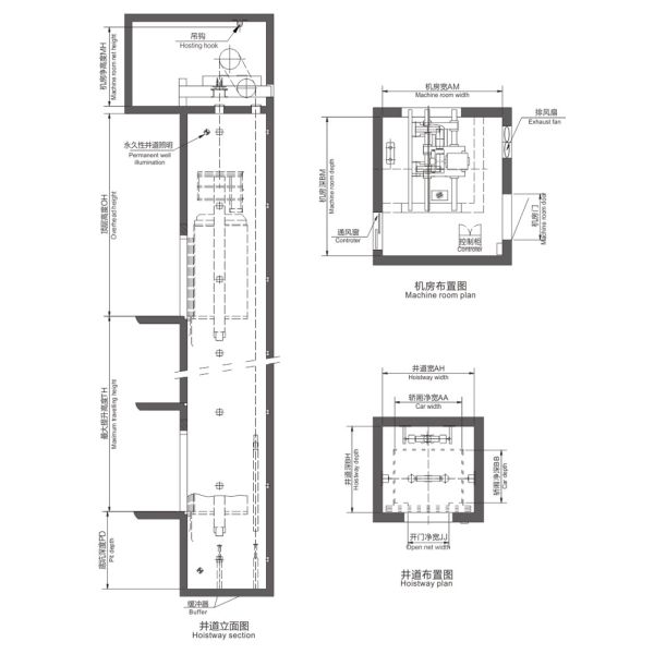
Размер входа (mm) |
Размер автомобиля (mm) | Размер hoistway (mm) |
Размер комнаты машины (mm) |
Надземная высота (mm) |
Яма (mm) |
Путешествовать Макс высота (m) |
| 800 | 2,5 | 800*2100 | 1400*1350*2450 | 2200*2250 | 3000*3700 | 5200 | 2200 | 150 |
| 1000 | 2,5 | 900*2100 | 1600*1400*2450 | 2200*2250 | 3000*3700 |
5200 |
2200 |
150 |
| 3,0 | 5500 | 3100 | 150 | |||||
| 3,5 | 5800 | 3700 | 180 | |||||
| 4,0 | 6200 | 4000 | 180 | |||||
| 1050 | 2,5 | 1600*1500*2450 | 2200*2300 | 3000*3700 | 5200 | 2200 | 150 | |
| 3,0 | 5500 | 3100 | 150 | |||||
| 3,5 | 5800 | 3700 | 180 | |||||
| 4,0 | 6200 | 4000 | 180 |
Высокоскоростная конструкция лифта



вопросы и ответы
1. Веревочки провода лифта прочны?
Веревочка провода лифта имеет специальные положения и требования. Конфигурация не только для веревочки и номинальной нагрузки провода, но также рассматривала размер тракции, в результате, прочность на растяжение веревочки провода больше чем вес подъема. Фактор безопасности оборудован с больше чем четырехпроводной веревочкой. Так он не сломает в то же время.
2. Опасно для отказа источника питания внезапно во время хода лифта?
Если оно происходит, то лифт автоматически остановит должное к электрическому и механическому предохранительному устройству. В случае отказа источника питания, тормозы лифта будут автоматически принятый. К тому же, отделы электропитания как запланированное повреждение, прежнее извещение также работают.
3. Завещайте нас быть ушибленным когда оно закрыло внезапно?
В заключительном процессе, если люди касаются двери залы, то дверь лифта автоматически повторит старт без любой опасности. С анти- зажимая переключателем, как только ворота касались, это действие переключения делает лифт неспособной быть закрытым и даже открытым заново. К тому же, замыкающее усилие также доступно здесь.
4. Как бег лифта?
Лифты управляются с веревочкой провода противовесу через передачу с желобчатым ведущим шкивом (трактора), делать поднимает и опускает на ведущий брус.
5. Установка эскалатора осложнена?
Мы считаем, что функции эскалатора обязательно не пропорциональны к сложности деятельности. Поэтому, эскалаторы конструированные нами прикладывают интегрированную структуру, так, что оборудование будет более точно и более эффективно и позволяет более легкий и более удобный поручать.
6. Вы имеете cerifications?
Да, мы делаем с сертификатами ISO9001/CCC/CE для u.