Лифт ФУДЗИ жилой домашний с комнатой машины от изготовителя Китая
лифт виллы лифтов скорости 0.4m/S жилой домашний с комнатой машины
Лифт виллы ФУДЗИ придерживается идеи дизайна охраны окружающей среды и энергосберегающий и слияний с самой последней технологией лифта
в наше время обеспечить безопасные и надежные продукты, удобное перемещение. Элегантно конструированные автомобиль, штраф и ремесло и technigques exqusite показывают выдающие свойства и шарм лифта виллы ФУДЗИ.
«Сцена путешествием» соответствует совершенно делюкс и модной вилле. Настолько удобно и удобно в использовании лифта виллы ФУДЗИ. Вы насладитесь вашей благородной жизнью также.
Особенности лифта виллы
1. Для этого не нужна машин-комната tradtional, таким образом уменьшающ стоимости строительства.
2. коэффициент тракции 1:1 или 2:1 особенные конструированный для лифта виллы.
3. принятие ботинок проводника колеса сползать или tolley составных.
4. преданная рамка подъемной машины трения использована для закрепления рельса gude.
5. преданная машина двери, ременная передача, аттестация CE TUV.
6. соотвествовать домашним национальным стандартам GB/T21739 2008 лифта.
Различные открытые режимы предусматривают легкую деятельность
Режимы Varlous открытые для клиентов, который нужно выбрать, между тем, personallzed режим можно конструировать согласно требованиям клиента для использования.
*************************************************
Для подробной информации, пожалуйста свяжитесь мы.
*************************************************
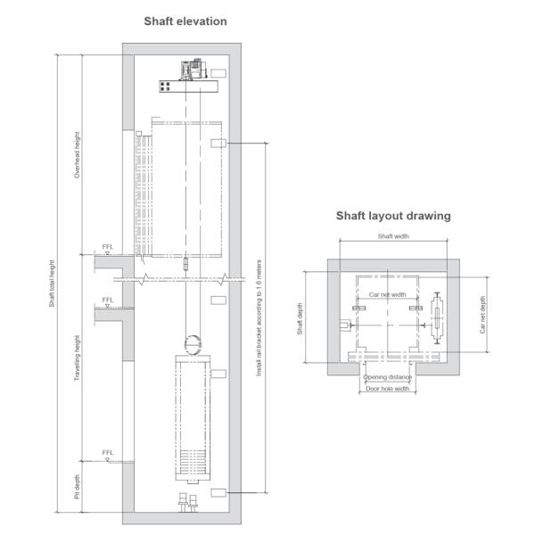
Спецификации лифта виллы
| Люди | Нагрузка (kg)
| Скорость (m/s)
| Чистый размер автомобиля (mm) C.WxC.DxD.H
| Чистый размер двери (mm) отверстие центра 2P
| Размер вала (mm) | ||
| H.WxH.D | HR.H | ЯМА | |||||
| 3 | 260 | 0,4 | 800x1150x2200 | 700x2000 (silding дверь) | 1400x1500 | 3500 | 800 |
| 4 | 320 | 0,4 | 950x1300x2200 | 700x2000 | 1600x1600 | 3500 | 800 |
| 5 | 400 | 0,4 | 1200x1300x2200 | 800x2000 | 1850x1600 | 3500 | 800 |



вопросы и ответы
1. Веревочки провода лифта прочны?
Веревочка провода лифта имеет специальные положения и требования. Конфигурация не только для веревочки и номинальной нагрузки провода, но также рассматривала размер тракции, в результате, прочность на растяжение веревочки провода больше чем вес подъема. Фактор безопасности оборудован с больше чем четырехпроводной веревочкой. Так он не сломает в то же время.
2. Опасно для отказа источника питания внезапно во время хода лифта?
Если оно происходит, то лифт автоматически остановит должное к электрическому и механическому предохранительному устройству. В случае отказа источника питания, тормозы лифта будут автоматически принятый. К тому же, отделы электропитания как запланированное повреждение, прежнее извещение также работают.
3. Завещайте нас быть ушибленным когда оно закрыло внезапно?
В заключительном процессе, если люди касаются двери залы, то дверь лифта автоматически повторит старт без любой опасности. С анти- зажимая переключателем, как только ворота касались, это действие переключения делает лифт неспособной быть закрытым и даже открытым заново. К тому же, замыкающее усилие также доступно здесь.
4. Как бег лифта?
Лифты управляются с веревочкой провода противовесу через передачу с желобчатым ведущим шкивом (трактора), делать поднимает и опускает на ведущий брус.
5. Установка эскалатора осложнена?
Мы считаем, что функции эскалатора обязательно не пропорциональны к сложности деятельности. Поэтому, эскалаторы конструированные нами прикладывают интегрированную структуру, так, что оборудование будет более точно и более эффективно и позволяет более легкий и более удобный поручать.
6. Вы имеете cerifications?
Да, мы делаем с сертификатами ISO9001/CCC/CE для u.