Эскалатор для помещений с VVVf управлением, безопасный эскалатор с углом наклона 30 градусов и шириной ступеней 1000 мм
Эскалаторы эффективно перемещают большое количество людей с минимальным временем ожидания. Однако они работают постоянно, независимо от количества перевозимых пассажиров. Поэтому даже небольшое снижение энергопотребления приводит к существенной экономии. Мы внесли ряд улучшений в приводной механизм в его легко обслуживаемом верхнем машинном отделении, которое доказало свою превосходство за многолетний опыт. Достигнуто приблизительное снижение энергопотребления на 25% за счет повышения эффективности трансмиссии и снижения трения.
| Мощность двигателя (кВт) |
Высота подъема (ширина лестницы) 1000 |
Высота подъема (ширина лестницы) 800 |
Высота подъема (ширина лестницы) 600 |
||||
| 1000~3300 | 5.5 | 1000~3500 | 5.5 | 1000~3700 | 5.5 | ||
| 3400~4500 | 7.5 | 3600~4700 | 7.5 | 3800~4900 | 7.5 | ||
| 4600~4900 | 8 | 4800~5100 | 8 | 5000~5200 | 8 | ||
| 5000~5900 | 11 | 5200~5900 | 11 | 5300~5900 | 11 | ||
| 1000 | 1000 | 1158 | 1238 | 1600 | 1660 | 2310 | |
| 800 | 800 | 968 | 1038 | 1400 | 1460 | 2110 | |
| 600 | 600 | 758 | 838 | 1200 | 1260 | 1910 | |
| Ширина ступени | A | B | C | D | E | F | |
| Модель | Высота подъема (мм) |
Вес нетто кН |
вместимость | Габаритные размеры | |||
|
R1 кН |
R2 кН |
h | I | ||||
|
FHE(600)-30 (3600 человек/ч) Скорость: 0,5 м/с |
3000 | 57 | 46 | 41 | 2750 | 10900 | |
| 3500 | 60 | 49 | 44 | 2780 | 11890 | ||
| 4000 | 64 | 52 | 47 | 2810 | 12880 | ||
| 4500 | 66 | 56 | 50 | 2830 | 13870 | ||
| 5000 | 71 | 59 | 53 | 2840 | 14860 | ||
| 5500 | 75 | 62 | 56 | 2860 | 15860 | ||
| 6000 | 79 | 65 | 59 | 2870 | 16860 | ||
|
FHE(800)-30 (4800 человек/ч) Скорость: 0,5 м/с |
3000 | 59 | 52 | 47 | 2750 | 10900 | |
| 3500 | 63 | 56 | 50 | 2780 | 11890 | ||
| 4000 | 67 | 60 | 54 | 2810 | 12880 | ||
| 4500 | 71 | 64 | 57 | 2830 | 13870 | ||
| 5000 | 74 | 68 | 60 | 2840 | 14860 | ||
| 5500 | 82 | 74 | 66 | 2860 | 15860 | ||
| 6000 | 86 | 78 | 69 | 2870 | 16860 | ||
|
FHE(1000)-30 (6000 человек/ч) Скорость: 0,5 м/с |
3000 | 63 | 59 | 53 | 2750 | 10900 | |
| 3500 | 67 | 64 | 57 | 2780 | 11890 | ||
| 4000 | 71 | 68 | 61 | 2810 | 12880 | ||
| 4500 | 75 | 73 | 65 | 2830 | 13870 | ||
| 5000 | 83 | 79 | 71 | 2840 | 14860 | ||
| 5500 | 87 | 84 | 75 | 2860 | 15860 | ||
| 6000 | 92 | 88 | 79 | 2870 | 16860 | ||
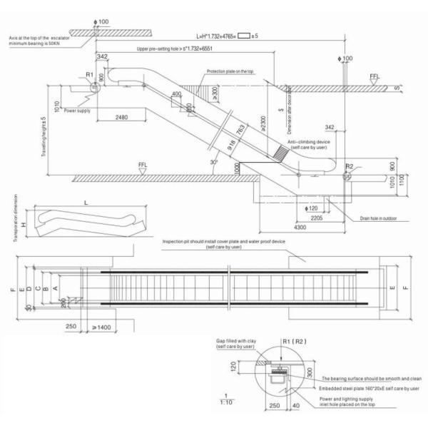
| Чертеж компоновки эскалатора с углом наклона 30° | |||||||
![]() |
|||||||








FAQ
1. Прочны ли тросы лифта?
Трос лифта имеет особые положения и требования. Конфигурация предназначена не только для троса и номинальной нагрузки, но и учитывает размер тяги, в результате чего прочность троса на разрыв больше, чем вес лифта. Коэффициент безопасности оснащен более чем четырьмя тросами. Поэтому он не сломается одновременно.
2. Опасно ли внезапное отключение электроэнергии во время работы лифта?
Если это произойдет, лифт автоматически остановится из-за устройства электрической и механической безопасности. В случае отключения электроэнергии автоматически срабатывают тормоза лифта. Кроме того, также работают отделы энергоснабжения, такие как плановое отключение, предварительное уведомление.
3. Будем ли мы травмированы, когда дверь внезапно закроется?
В процессе закрытия, если люди коснутся двери холла, дверь лифта автоматически перезапустится без какой-либо опасности. С противозажимным выключателем, как только ворота коснутся, это переключение делает невозможным закрытие лифта и даже его повторное открытие. Кроме того, здесь также доступна сила закрытия.
4. Как работает лифт?
Лифты работают с помощью троса противовеса через (тракторный) тяговый привод, совершая подъемы и спуски по направляющей.
5. Сложна ли установка эскалатора?
Мы считаем, что функции эскалатора не обязательно пропорциональны сложности эксплуатации. Поэтому эскалаторы, разработанные нами, используют интегрированную структуру, благодаря чему оборудование становится более точным и эффективным, а также обеспечивает более простую и удобную пусконаладку.
6. Есть ли у вас какие-либо сертификаты?
Да, у нас есть сертификаты ISO9001 / CCC / CE для вас.