Лифт для больничных пациентов от производителя лифтов
Лифт больничных кроватей часто конкурирует со временем в огромных больницах, современных медицинских лечебных центрах, санаториях, медицинских центрах и т. д.где исцеление раненых и спасение умирающих являются обязательными обязанностямиНаша серия постельных лифтов придерживается настойчивого гуманного мышления, применяет туманную логику и технологию группового надзора от экспертной системы,выполнять интеллектуальные поездки лифта и сократить время ожидания пациентов до минимума..
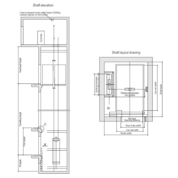
Спецификации постельного лифта
| Лица | Нагрузка ((kg) | Скорость ((m/s) | Чистый размер автомобиля ((мм) | Чистый размер двери ((мм) | Размер вала ((мм) | Размер машинного помещения ((мм) | |||
| C.WxC.DxD.H. | 2P Центральное открытие | H.WxH.D. | Ее Высокопреосвященство | ПИТ | MR.WxMR.D | MR.H. | |||
| 21 | 1600 | 1.0 | 1400х2400х2300 | 1100х2100 | 2550х2900 | 4500 | 1500 | 2550х2900 | 2500 | 
| 1.5/1.75 | 4700 | 1600 | |||||||
| 2.0 | 4900 | 1800 | |||||||
| 2.5 | 5100 | 2000 | |||||||
| 24 | 1800 | 1.0 | 1600х2400х2300 | 1200х2100 | 2750х2900 | 4500 | 1500 | 2750х2900 | 2500 | 
| 1.5/1.75 | 4700 | 1600 | |||||||
| 2.0 | 4900 | 1800 | |||||||
| 26 | 2000 | 1.0 | 1700х2400х2300 | 1200х2100 | 2850х2900 | 4500 | 1500 | 2850х2900 | 2500 | 
| 1.5/1.75 | 4700 | 1600 | |||||||
| 2.0 | 4900 | 1800 | |||||||
Начертание конструкции лифта



Частые вопросы
1- Лифтовые провода прочны?
Конфигурация не только для проволоки и номинальной нагрузки, но и учитывает размер тяги, в результате,прочность проволоки больше веса подъемникаУстройство безопасности оснащено более чем четырьмя проволоками, поэтому оно не сломается одновременно.
2. Опасно ли внезапное отключение электроэнергии во время работы лифта?
Если это произойдет, лифт автоматически остановится из-за электрического и механического устройства безопасности.отделы электроснабжения, такие как запланированное отключение, предварительное уведомление также работают.
3Мы не пострадаем, когда он внезапно закроется?
В процессе закрытия, если люди прикоснутся к двери коридора, дверь лифта автоматически перезапустится без опасности.Это переключающее действие делает лифт невозможно закрыть и даже снова открытьКроме того, сила закрытия также доступна здесь.
4Как работает лифт?
Подъемники работают с помощью проволочной веревки с противовесом через тяговый привод (трактор), делая подъемы и падения на проволоке.
5Установка эскалатора сложная?
Мы считаем, что функции эскалатора не обязательно пропорциональны сложности работы.чтобы оборудование было более точным и эффективным и позволяло более просто и удобное ввод в эксплуатацию.
6У вас есть какие-нибудь справки?
Да, у нас есть сертификаты ISO9001 / CCC / CE для вас.