Строительство лифта без машинного помещения Скорость 1,0 ~ 1,75 м/с / нагрузка ((kg) 630 ~ 1600 кг
6 Пассажирская машинная комната меньше подъемника Нержавеющая сталь
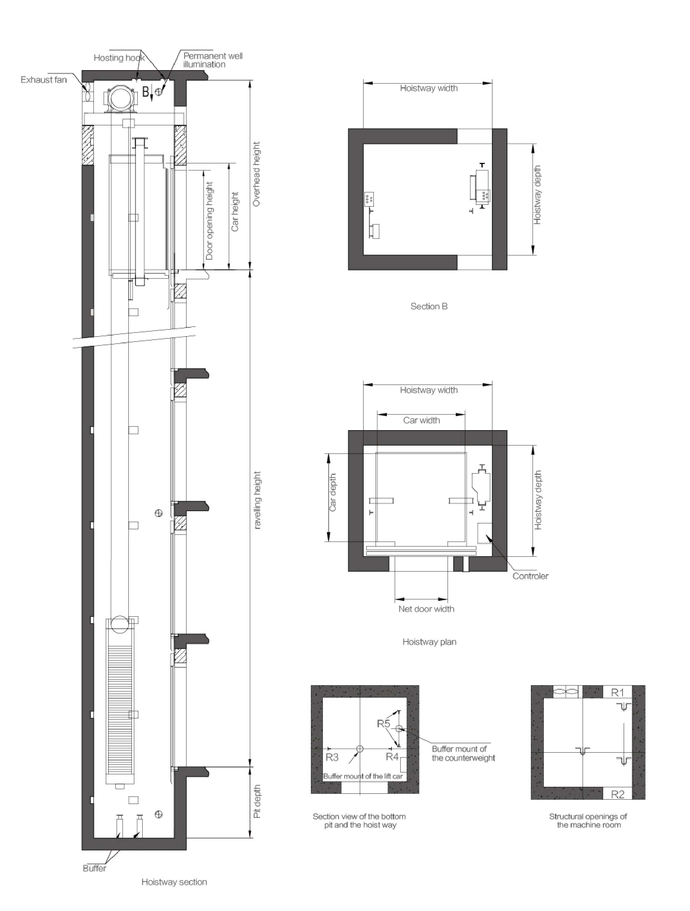
Строительство лифта без машинного помещения Скорость 1,0 ~ 1,75 м/с / нагрузка ((kg) 630 ~ 1600 кг
Единица противодействия:N
| Нагрузка ((kg) | 630 | 800 | 1000 | 1250 | 1350 | 1600 | |||||||||||||
| Скорость | 1.0 | 1.6 | 1.75 | 1.0 | 1.6 | 1.75 | 1.0 | 1.6 | 1.75 | 1.0 | 1.6 | 1.75 | 1.0 | 1.6 | 1.75 | 1.0 | 1.6 | 1.75 | |
| Машиностроение контрсила |
R1 | 43000 | 49000 | 6600 | 74000 | 76000 | 85000 | ||||||||||||
| R2 | 34000 | 40000 | 42000 | 46500 | 47500 | 49500 | |||||||||||||
| Яма контрсила |
кабина | 76000 | 87000 | 89000 | 2х66000 | 2х68500 | 2х76500 | ||||||||||||
| Противовес | 64000 | 71000 | 75000 | 105000 | 111000 | 120500 | |||||||||||||
| Железная дорога контрсила |
R1 | 55000 | 62000 | 70000 | 65000 | 67000 | 74000 | ||||||||||||
| R2 | 45000 | 51500 | 60000 | 46500 | 48000 | 51500 | |||||||||||||
| R3 | 52000 | 60000 | 66000 | 37500 | 38000 | 40500 | |||||||||||||
Строительство лифта без машинного помещения Скорость 1,0 ~ 1,75 м/с / нагрузка ((kg) 630 ~ 1600 кг
Таблица параметров лифта без машинного помещения SN-XDYW
| Спецификации |
Нагрузка (в кг) |
Скорость (м/с) |
Открытие двери Ширина JJ(мм) |
Размер автомобиля AA*BB(мм) |
Глубина ямы PD ((мм) |
Высота верхнего этажа О, да. |
Размер подъемного пути AH*BH(мм) |
| SN-XDYW-630-1.0 | 630 | 1.0 | 800 | 1100х1400 | 1450 | 3950 | 1800х1800 |
| SN-XDYW-630-1.6 | 1.6 | 1550 | 4100 | ||||
| SN-XDYW-630-1.75 | 1.75 | 1600 | 4150 | ||||
| SN-XDYW-800-1.0 | 800 | 1.0 | 1300х1400 | 1450 | 4150 | 2000х1800 | |
| SN-XDYW-800-1.6 | 1.6 | 1550 | 4200 | ||||
| SN-XDYW-800-1.75 | 1.75 | 1600 | 4200 | ||||
| SN-XDYW-1000-1.0 | 1000 | 1.0 | 900 | 1500х1500 | 1450 | 4100 | 2200х1900 |
| SN-XDYW-1000-1.6 | 1.6 | 1550 | 4200 | ||||
| SN-XDYW-1000-1.75 | 1.75 | 1600 | 4200 | ||||
| SN-XDYW-1250-1.0 | 1250 | 1.0 | 1100 | 1800х1500 | 1500 | 4300 | AHx1950 |
| SN-XDYW-1250-1.6 | 1.6 | 1600 | 4400 | ||||
| SN-XDYW-1250-1.75 | 1.75 | 1650 | 4400 | ||||
| SN-XDYW-1350-1.0 | 1350 | 1.0 | 1950х1500 | 1500 | 4300 | AHx1950 | |
| SN-XDYW-1350-1.6 | 1.6 | 1600 | 4400 | ||||
| SN-XDYW-1350-1.75 | 1.75 | 1650 | 4400 | ||||
| SN-XDYW-1600-1.0 | 1600 | 1.0 | 1950х1750 | 1500 | 4300 | AHx2150 | |
| SN-XDYW-1600-1.6 | 1.6 | 1600 | 4400 | ||||
| SN-XDYW-1600-1.75 | 1.75 | 1650 | 4400 |







Частые вопросы
1- Лифтовые провода прочны?
Конфигурация не только для проволоки и номинальной нагрузки, но и учитывает размер тяги, в результате,прочность проволоки больше веса подъемникаУстройство безопасности оснащено более чем четырьмя проволоками, поэтому оно не сломается одновременно.
2. Опасно ли внезапное отключение электроэнергии во время работы лифта?
Если это произойдет, лифт автоматически остановится из-за электрического и механического устройства безопасности.отделы электроснабжения, такие как запланированное отключение, предварительное уведомление также работают.
3Мы не пострадаем, когда он внезапно закроется?
В процессе закрытия, если люди прикоснутся к двери коридора, дверь лифта автоматически перезапустится без опасности.Это переключающее действие делает лифт невозможно закрыть и даже снова открытьКроме того, сила закрытия также доступна здесь.
4Как работает лифт?
Подъемники работают с помощью проволочной веревки с противовесом через тяговый привод (трактор), делая подъемы и падения на проволоке.
5Установка эскалатора сложная?
Мы считаем, что функции эскалатора не обязательно пропорциональны сложности работы.чтобы оборудование было более точным и эффективным и позволило легче и удобнее вводить в эксплуатацию.
6У вас есть какие-нибудь справки?
Да, у нас есть сертификаты ISO9001 / CCC / CE для вас.