Умная паркуя скорость подъема 60-90m/Min оборудования автоматическая паркуя
30-60m/Min умный лифт подъема автомобиля штабелеукладчика стоянки 90m/Min автоматический
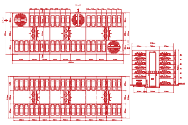
Этот гараж может быть используемым widely.it может быть требованием к fitthe от уровня B2 выровнять систему 8.Every имеет кран штабелеукладчика который canmoved косое на рельсе, между тем itcan также движение вверх и вниз. Потребность времени получать доступ к автомобилю 120 секунд и она costless сравнивает к PPY.
ТЕХНИЧЕСКИЕ ДАННЫЕ
| Тип оборудования | PXD | Мотор подъема | Поднимаясь сила | 11-30KW | |
| Метод стоянки корабля | Владение струбцины | Челнок Автомобиль |
Режим доступа | Владение струбцины | |
| Корабль Typle | Лимузин | Скорость | 30-60m/min | ||
| Размер корабля | ≤5300x1900×1550/2100mm | Сила мотора переноса | 0.75-2.2 Kw | ||
| Вес корабля | ≤2300kg | / | / | / | |
| Автоматизированная дверь | Войдите в/выход | Передний | / | / | |
| Автоматизированная скорость двери | ≤15m/min | Метод контроля | Пусковая площадка управлением PLC Programmavle | ||
| Мотор подъема | Поднимаясь метод | Стальная веревочка/цепь | Приведитесь в действие метод | Карта сенсорного экрана/lC | |
| Поднимаясь скорость | 60-90m/min | Электропитание | Трехфазное five-wire/50Hz/380V | ||



вопросы и ответы
1. Веревочки провода лифта прочны?
Веревочка провода лифта имеет специальные положения и требования. Конфигурация не только для веревочки и номинальной нагрузки провода, но также рассматривала размер тракции, в результате, прочность на растяжение веревочки провода больше чем вес подъема. Фактор безопасности оборудован с больше чем четырехпроводной веревочкой. Так он не сломает в то же время.
2. Опасно для отказа источника питания внезапно во время хода лифта?
Если оно происходит, то лифт автоматически остановит должное к электрическому и механическому предохранительному устройству. В случае отказа источника питания, тормозы лифта будут автоматически принятый. К тому же, отделы электропитания как запланированное повреждение, прежнее извещение также работают.
3. Завещайте нас быть ушибленным когда оно закрыло внезапно?
В заключительном процессе, если люди касаются двери залы, то дверь лифта автоматически повторит старт без любой опасности. С анти- зажимая переключателем, как только ворота касались, это действие переключения делает лифт неспособной быть закрытым и даже открытым заново. К тому же, замыкающее усилие также доступно здесь.
4. Как бег лифта?
Лифты управляются с веревочкой провода противовесу через передачу с желобчатым ведущим шкивом (трактора), делать поднимает и опускает на ведущий брус.
5. Установка эскалатора осложнена?
Мы считаем, что функции эскалатора обязательно не пропорциональны к сложности деятельности. Поэтому, эскалаторы конструированные нами прикладывают интегрированную структуру, так, что оборудование будет более точно и более эффективно и позволяет более легкий и более удобный поручать.
6. Вы имеете cerifications?
Да, мы делаем с сертификатами ISO9001/CCC/CE для u.