Свободная от пыл питаясь машина нештатный продукт конструированный для защиты здоровья оператора более эффективной и для встречи
требования легкого замечания, легкой деятельности, легкой чистки и соответствия GMP. Свободная от пыл питаясь станция разделена в
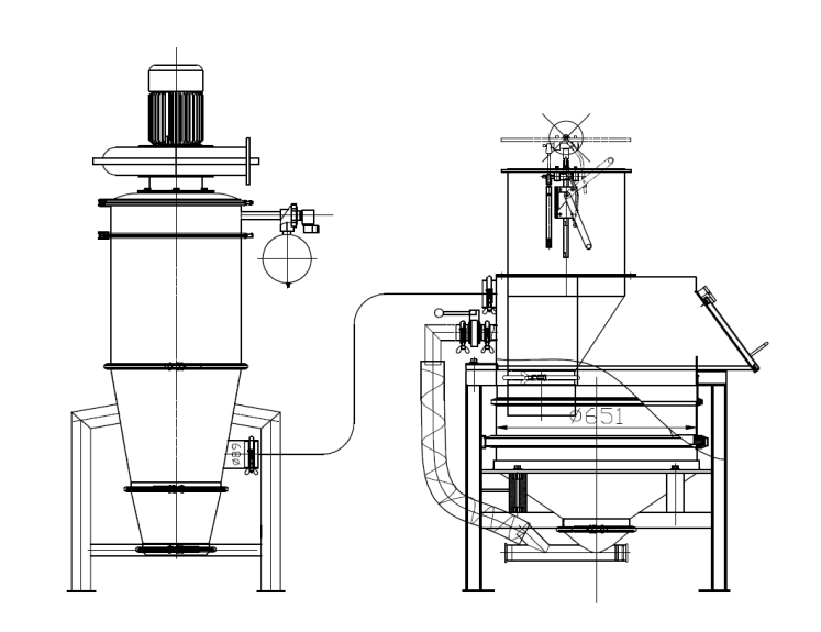
система удаления пыли, операционная система и downfeed система скрининга. Состав оборудования системы: питаясь ящик, вибрируя
экран, фильтр, вентилятор, вибрируя мотор и другие структуры.
Свободная от пыл питаясь станция главным образом конструирована согласно специфическим потребностям потребителей, которая эффектно изолирует материал
пыль произведенная во время питаться и человеческого тела оператора, и под отрицательным давлением вентилятора, пыль высосана в
фильтр для того чтобы достигнуть «разъединения газ-материала», и когда материал собирает больше, он понижается в ящик должный к своему собственному весу.
свободная от Пыл питаясь станция имеет преимущества легкой деятельности, легкого замечания, легкого обслуживания, легкой чистки, etc., который
защищает здоровье операторов. Оборудование изготовлено нержавеющей стали 304/316L, которая прочна.



Дисплей детали

вопросы и ответы
| 1.What материал может быть транспортером? : Напудрите кусковые материалы зерен. 2.What выход или транспорт машины? : О 1-6t/h. Оно может также быть подгонянное по требованию. 3.What срок доставки или транспорт? : Обычно через 15-20 рабочих дней после оплаты. 4. Что транспорт Stype? A.In общее, мы выбираем срочное. Также согласовывать вашу просьбу. |