Колосниковый грохот автоматического твердого жидкостного разделителя механический для обработки сточных вод
Характер продукции
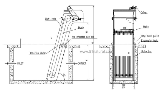
Механический тоотед колосниковый грохот грабл машины уборщика грязи бороны вид предварительного твердого тела
жидкостный прибор разъединения в водоочистке, которая смогите непрерывно и автоматически извлекать
твердые частицы от отработанной воды для претреатмент нечистот. Он главным образом использован в муниципальных нечистотах
заводы по обработке, жилые приборы претреатмент нечистот кварталов, муниципальные нечистоты
насосные установки, ватерворкс и электростанции, также ее можно широко приложить к воде
проекты обработки различных индустрий, как ткань, печатание и красить, еда, рыбозавод,
бумага, вино, палачество, курриры етк.
Особенности
♦ управляя блок сразу управляется редуктором зубчатого колеса с циклоидальным профилем зуба или редуктором винтовой зубчатой передачи который
показывает природу работая возможности стабильности, малошумных, больших нагрузки и высокой эффективности внутри
транспортировать.
Структура ♦ простая с компактным размером, легким для установки и для того чтобы двинуть. Прибор может само-чистое поднимающее вверх
пока работа, легкая для поддержания.
♦ легкое для того чтобы работать, можно контролировать сразу на пятне или ремоте.
♦ включает прибор предохранения от перегрузки, машину выключит автоматически когда
неисправность случается избежать повреждения.
♦ когда ширина прибора превысит 1500мм, будет сделано в параллельную машину для обеспечения
общая прочность.
Технические параметры
| Модель | 600 | 800 | 1000 | 1200 | 1400 | 1600 | 1800 | 2000 | ||
| Диаметр барабанчика (мм) | 600 | 800 | 1000 | 1200 | 1400 | 1600 | 1800 | 2000 | ||
| Длина и барабанчика (мм) | 500 | 620 | 700 | 800 | 1000 | 1150 | 1250 | 1350 | ||
| Трубка д перехода (мм) | 219 | 273 | 273 | 300 | 300 | 300 | 360 | 500 | ||
| Ширина б канала (мм) | 650 | 850 | 1050 | 1250 | 1450 | 1650 | 1850 | 2070 | ||
| Максимальная глубина воды Х4 (мм) | 350 | 150 | 540 | 620 | 750 | 860 | 960 | 1050 | ||
| Угол установки | 35° | |||||||||
| Глубина Х1 канала (мм) |
600-3000 |
|||||||||
| Высота Х2 разрядки (мм) |
Подгонянный |
|||||||||
| Х3 (мм) | Подтверженный типом редуктора | |||||||||
| Длина а установки (мм) |
А=х*1.43-0.48Д |
|||||||||
| Полная длина л (мм) | Л=Х*1.743-О.75Д | |||||||||
| Расход потока (м/с) | 1,0 | |||||||||
|
Том (м3/х) |
Сетка (мм) |
0,5 | 80 | 135 | 235 | 315 | 450 | 585 | 745 | 920 |
| 1 | 125 | 215 | 370 | 505 | 720 | 950 | 1205 | 1495 | ||
| 2 | 190 | 330 | 555 | 765 | 1095 | 1440 | 1830 | 2260 | ||
| 3 | 230 | 400 | 680 | 935 | 1340 | 1760 | 2235 | 2755 | ||
| 4 | 235 | 430 | 720 | 1010 | 1440 | 2050 | 2700 | 3340 | ||
| 5 | 250 | 465 | 795 | 1105 | 1575 | 2200 | 2935 | 3600 | ||
|
Модель
Параметр |
ХЛКФ-500 | ХЛКФ-600 | ХЛКФ-700 | ХЛКФ-800 | ХЛКФ-900 | ХЛКФ-1000 | ХЛКФ-1100 | ХЛКФ-1200 | ХЛКФ-1300 | ХЛКФ-1400 | ХЛКФ-1500 | ||
| Глубина подачи Х3 (м) | 1,0 | ||||||||||||
| Скорость подачи В2 (м/с) |
0,8 |
||||||||||||
|
Дистанционирование решетки Б (мм) |
1 |
Расход потока к (㎡/с) |
0,03 | 0,04 | 0,05 | 0,06 | 0,07 | 0,08 | 0,08 | 0,09 | 0,10 | 0,11 | 0,12 |
| 3 | 0,07 | 0,09 | 0,10 | 0,12 | 0,14 | 0,16 | 0,18 | 0,20 | 0,22 | 0,24 | 0,26 | ||
| 5 | 0,09 | 0,11 | 0,14 | 0,16 | 0,18 | 0,21 | 0,23 | 0,26 | 0,28 | 0,31 | 0,33 | ||
| 10 | 0,11 | 0,14 | 0,17 | 0,21 | 0,24 | 0,27 | 0,30 | 0,33 | 0,37 | 0,4 | 0,43 | ||
| 15 | 0,13 | 0,16 | 0,20 | 0,24 | 0,27 | 0,31 | 0,34 | 0,38 | 0,42 | 0,45 | 0,49 | ||
| 20 | 0,14 | 0,17 | 0,21 | 0,25 | 0,29 | 0,33 | 0,37 | 0,41 | 0,45 | 0,49 | 0,53 | ||
| 25 | 0,14 | 0,18 | 0,22 | 0,27 | 0,31 | 0,35 | 0,39 | 0,43 | 0,47 | 0,51 | 0,55 | ||
| 30 | 0,15 | 0,19 | 0,23 | 0,27 | 0,32 | 0,36 | 0,4 | 0,45 | 0,49 | 0,53 | 0,57 | ||
| 40 | 0,15 | 0,20 | 0,24 | 0,29 | 0,33 | 0,38 | 0,42 | 0,46 | 0,51 | 0,55 | 0,6 | ||
| 50 | 0,16 | 0,20 | 0,25 | 0,29 | 0,34 | 0,39 | 0,43 | 0,48 | 0,52 | 0,57 | 0,61 | ||

