Колосниковый грохот механической отработанной воды колосникового грохота автоматический в обработке сточных вод
Принцип деятельности Structure&
Точный колосниковый грохот оборудован к цепному валу согласно некоторым ранжировкам, которые сформируют закрытую обеспечивая циркуляцию toothed поверхность бороны. Поверхность бороны целого toothed делает обеспечивая циркуляцию тренировку сверху донизу управляемую управляемой цепью. Твердое приостанавливанное дело перехваченное на toothed бороне будет скомплектовано до платформы, и будет очищено путем поворачивать щетку. После этого достигнется цель защиты водяной помпы и уменьшения последующей рабочей нормы.
Введение
Роторный экран грабл HZ1 (также вызвал как роторный разделитель тверд-жидкости), предварительный прибор разъединения тверд-жидкости который широко был использован в муниципальном заводе обработки сточных вод, приборе пре-обработки для отечественных effluents, муниципальной насосной дождевой воды & нечистот, водозаборе завода водоснабжения & охлажденной воде электростанции. Его можно также использовать для водоочистки отбросов производства, как ткань, печатая и крася, еда, рыбозавод, делая бумаги, индустрия заваривая, зарезать и загорая. Он сосчитан как идеальное оборудование разъединения тверд-жидкости в воде
поле обработки.

Детали продукта
| Материал | SS304/316 |
| Аттестация | CE/ISO 9001 |
| Перемычка сетки | 1mm-15mm |
| Деятельность | автоматический |
| Width&Depth | Подгоняйте |
| Сила | 0.55-3.0 kw |
| Мотор | ЗАШЕЙТЕ или NISSEI |
| Электрическая деталь | Schneider/Omron/Сименс |
| Гарантия | 1 год |
| обслуживание После-продажи | инженеры доступные |
| Ключевые слова продукта | экраны граблей, запирают screentical колосниковые грохоты |
Маршрут технологического процесса воды
| Параметр колосникового грохота | |||||||
| Модель | Ширина Адвокатуры (mm) | Ширина оборудования (mm) | Ширина канала (mm) | Пространство между бары (mm) | Скорость (m/min) | Угол установки | Сила Moto (kw) |
| JXGS-300 | 300 | 430 | 500 | 3-20 | 2,2 | 60-80 | 0,75 |
| JXGS-500 | 500 | 630 | 700 | 3-20 | 2,2 | 60-80 | 0,75 |
| JXGS-800 | 800 | 930 | 900 | 3-20 | 2,2 | 60-80 | 1,1 |
| JXGS-1000 | 1000 | 1130 | 1200 | 3-20 | 2,2 | 60-80 | 1,1 |
| JXGS-1200 | 1200 | 1330 | 1400 | 3-20 | 2,2 | 60-80 | 1,5 |
| JXGS-1500 | 1500 | 1630 | 1700 | 3-20 | 2,2 | 60-80 | 1,5 |
| JXGS-1800 | 1800 | 2090 | 2210 | 3-20 | 2,2 | 60-80 | 2,2 |
| JXGS-2200 | 2200 | 2490 | 2610 | 3-20 | 2,2 | 60-80 | 3 |
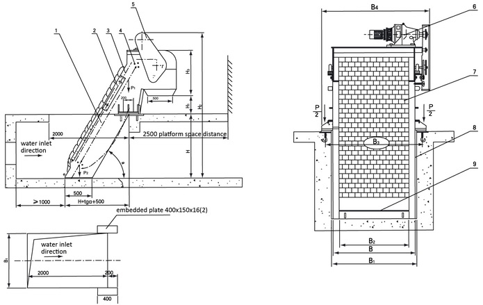
Размеры установки

1. Перед паковать, все наши экраны должны быть покрыты полиэтиленовой пленкой, для защиты машины от любого повреждения как вода.
2. После проверки и создания программы-оболочки, экран будет помещен в хорошую камеру окуривания с грузя меткой

вопросы и ответы:
Q: Вы торговая компания или изготовление?
: Мы оба изготовление и торговая компания. Мы имеем опыт сверх 30 лет профессиональный как предприятие изготовителя оборудования и инженерной службы обработки сточных водов.
Q: Что ваши главные продукты?
: Ключевые слова: Оборудование машины шуги Dewatering, тип пресса винта винта шуги прессы шуги Dewatering, Dewatering пресса винта машины шуги, оборудование очистки сточных вод, завод по обработке шуги, шуга прессы винта Dewatering, Dewatering шуга, Dewatering машина для шуги, Dewatering прессы винта машины шуги, колосниковых грохотов роторного барабанчика, оборудования DAF, цены DAF, растворенной цены системы воздушной флотации, транспортера винта Shaftless шуги, прибора дозирования химических реагентов, цены MBBR, средств массовой информации MBBR, отражетеля диска, системы дозирования химических реагентов подготовки полимера,
Q: Как могу я найти соответствующая модель?
: Пожалуйста обеспечьте расход потока, содержание твердых тел и тип шуги, мы можем помочь вам в модельном выборе.
Q: Где ваша фабрика обнаружена местонахождение?
: Город Исина, мы в известном городе оборудования охраны окружающей среды, профессиональном для машины прессы винта шуги dewatering, которая очень близко к Шанхаю с только управлять более менее чем 3 часов. Добро пожаловать для вашего посещения.
Q: Вы обеспечиваете обслуживание OEM?
: Да. Мы можем сделать подгонянный дизайн согласно вашему различному запросу для Dewatering шуги.
Q: Как о производственной мощности вашей компании?
: Наша фабрика покрывает зону над 22,000M2 и производит машины 2000 наборов в год.
Q: Как смогли мы Доверие Вы и Ваш Компания? Это ваш первый раз сделка?
: : Наша компания имеет больше чем 30 лет профессионального опыта. Мы сотрудничаем сверх 1000 Customers.In Китай и международное. Мы экспортируем почти 60 стран во всем мире. и мы имеем больше чем 60+Patents, CE, ISO 9001, SGS аттестует. И мы имеем компанию в Японии, большей технологии и большем качестве.
Q: Вы предлагаете послепродажное обслуживание?
: Видео- служба технической поддержки, онлайн поддержка, запасные части, ремонтные услуги обслуживания поля
Q: Сколько времени ваша гарантия?
: Через 2 лет после прибытия товаров. В это время, покуда нет искусственного повреждения, мы отправляем поврежденные части бесплатно.
Q: Как насчет вашем времени продукции? Какой вроде транспорт вы предлагаете?
: В течение 30 дней против первого взноса. Воздух, земля & море.
Q: Чего вроде оплата вы принимает?
: T/T, L/C, PayPal, наличные деньги, D/P, D/A, западное соединение, грамм денег
Колосниковый грохот; Механическая цена колосникового грохота; Механический колосниковый грохот