Регулятор Вайгхфедер пояса для масштаба пояса с питаться подачи рациона пылезащитный
Основные особенности:
С режимом мултитаскинг, процесс вайгхинг&контрол не будет прерван установкой параметра и другой деятельностью.

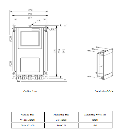
Модельный интерфейс деятельности Стен-установки

Если нет любой деятельности кнопочной панели в одной минуте и она нет в процессах „тарировки Ф2“ & „фабрики Ф6 регулируемой“, то регулятор возвратит в „основной интерфейс дисплея“ автоматически.
| Деятельность меню | |
| Ключевое имя | Описание |
|
】 МЕНЮ 【 】 ЭСК 【 |
Впишите основное меню. Выйдите. |
| 】 【ЭНТ |
Войдите в. Сохраните. |
| 】 ◄ 【 | Курсор переносит налево. |
| 】 ► 【 | Курсор переносит справедливо. |
| 】 ▲ 【 |
Курсор переносит вверх. Покажите предыдущие интерфейс или вариант. Иньпут число: +1. |
| 】 ▼ 【 |
Курсор переносит вниз. Покажите следующие интерфейс или вариант. Иньпут число: -1. |
| Быстрая деятельность | |
|
】 МЕНЮ 【* (】 ЗАМКА 【) |
|
|
】 ◄ 【 (】 【АДДЖ+) |
Регулирующий ток +1мА. |
|
】 ► 【 (】 АДДЖ 【) |
Регулирующий ток -1мА. |
|
】 ◄ 【* (】 【АВТОМАТИЧЕСКОЕ) |
„Ручной/автоматический“ выбор режима контроля. |
|
】 ► 【* (】 ЭСТ 【) |
„Выбор режима внутренней/внешней“ подачи установленный. |
|
】 ПЕЧАТИ 【 (】 【ЭНТ) |
Печать. |
| Лампа СИД | Описание | Примечание |
| [БЕГ] |
НА: Весить государство. С: Останавливать государство. |
|
| [АВТОМОБИЛЬ] |
Питаясь режим контроля: НА: Автоматический [ПИД]. С: Ручной. |
|
| [ЭСТ] |
Режим подачи установленный: НА: Экстернал [АИ: 4~20мА]. С: Внутренний. |
|
| [СИГНАЛ ТРЕВОГИ] | Сигнал тревоги. | |
| [кг] | Блок индикатора веса: кг. |
Индикаторная панель а ([П107] внутренний масштаб Унит=кг) |
| [т] | Блок индикатора веса: т. | |
| [т/х] |
Блок индикатора подачи НА: т/х. С: кг/мин или кг/х. |
|
| [кг/м] | Блок индикатора нагрузки: кг/м. | |
| [г] | Блок индикатора веса: Г. |
Индикаторная панель б ([П107] внутренний масштаб Унит=г) |
| [кг] | Блок индикатора веса: кг. | |
| [кг/х] |
Блок индикатора подачи НА: кг/х. С: г/мин или г/х. |
|
| [г/м] | Блок индикатора нагрузки: г/м. |

Система подачи рациона Автоматическ-питаясь
