Сваривая манипулятор механизм который помогает операторам достигнуть любое место которому нужна сварочная операция. Своя функция обеспечить такой же подъем и достигнуть способности высоко-умелого сварщика. Наши одиночные unitized сваривая особенности стиля манипулятора обеспечивают самую эффективную подвижность магазина столбца и заграждения процесса сварки. Простой для того чтобы грузить unitized линейного сваривая манипулятора с дизайном шарнирного соединения заграждения патента заявлен революционным позволяет легкому устанавливает в минуты. Улучшите для джобшопов трубы сваривая которым нужно легкое передислоцирующ автоматизированную систему манипулятора трубы сколько угодно где в трубе сваривая сказочный магазин.
Сваривая столбец LHC3030 и манипулятор Spacification заграждения
| Модель | LHC-3X3 |
| Нагрузка конца заграждения максимальная | 200 kg |
| Вертикальное перемещение заграждения | 3000 mm |
| Вертикальная скорость движения заграждения | 1000mm/min |
| Вертикальный мотор перемещения | 0,75 kw с тормозом |
| Горизонтальное перемещение заграждения | 3000mm |
| Горизонтальная скорость движения заграждения | 120~1200mm/min |
| Горизонтальный мотор перемещения | 0,37 kw |
| Угол вращения | ±180° |
| Путь вращения | Ручной/моторизованный |
| Путешествовать скорость | Ручной/моторизованный |
| Путешествовать путь | Ручной/моторизованный |
| Путь контроля | Удаленное управление руки |
| Ввод напряжения | 110V | участок 50/60Hz 575V Single/3 |
| Сертификат |
Утверждение CE |
Запасные части клеймят
1, инвертор от Danfoss
2, мотор от Invertek
3, редуктор от бренда Китая
4, энергетическая система от Schneider
Как выбрать надлежащий размер манипулятора наиболее хорошо для того чтобы отвечать ваши потребностямы
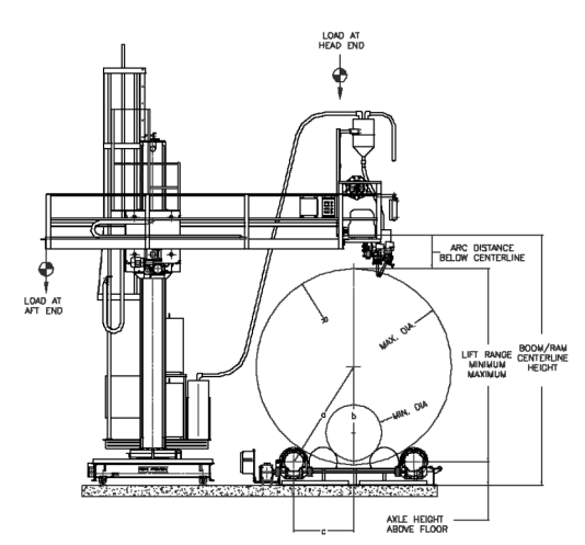
Выбрали надлежащий размер манипулятора трубы сваривая, ряды не только достигаемости и подъема необходимо определить, что, но также необходимая емкость нагрузки. Ряд достигаемости выбран согласно пожеланным весьма положениям дуги горизонтально. Ряд подъема выбран согласно весьма положениям дуги вертикально. Типичная сваривая установка показана в эскизе.

Электропитание сварщика трубы вращает легко на одиночной unitized частью основании столбца манипулятора. Столбец и заграждение имеют ровную линейную достигаемость перемещения рельса, с хребтообразными 500 lbs заграждения сваривают главную емкость на любом конце в не моде колебания твердой. Подъем заграждения столбца винта акме манипулятора точности сваривая не требует прибора падения безопасного как другие типы деятельности манипулятора сварки.
Когда люди ищут решения они поворачивают к кто-то они могут доверить нашей фабрике.
Сваривая преимущества столбца и заграждения
1. Аттестация ISO9000 & CE поддержала
2. профессиональная и опытная команда инженера для обеспечения предварительного дизайна структуры и электрический
3. оптимальные материалы и аутсорсинги для обеспечения самого лучшего представления
4. поручающ и испытывающ перед доставкой
5. Вы радушны для посещения нашей фабрики для осмотра на мастерской.
ОТПРАВЬТЕ США ВАШЕ ДОЗНАНИЕ НИЖЕ ТЕПЕРЬ.