DOE 500k Трехфазный трансформатор сухого типа Step up 208V To 600V NEMA 3R
Резюме
SG-серия трехкогерентные трансформаторы широко используются в переменном токе 50 ~ 60 Гц, входное, выходное напряжение не превышает 500 В трехфазного источника питания в различных случаях.
Для различных рычагов входного и выходного напряжения, объединяющие группы, регулирующие количество и расположение кругов ((обычно ± 5%), распределение мощности обмотки, однофазная вторичная обмотка оснащена:использование кружков выпрямленияПринимать или не принимать, и т.д.
Согласно требованиям пользователя, продукт может быть тщательно разработан и произведен.

Основные данные
| Описание | |
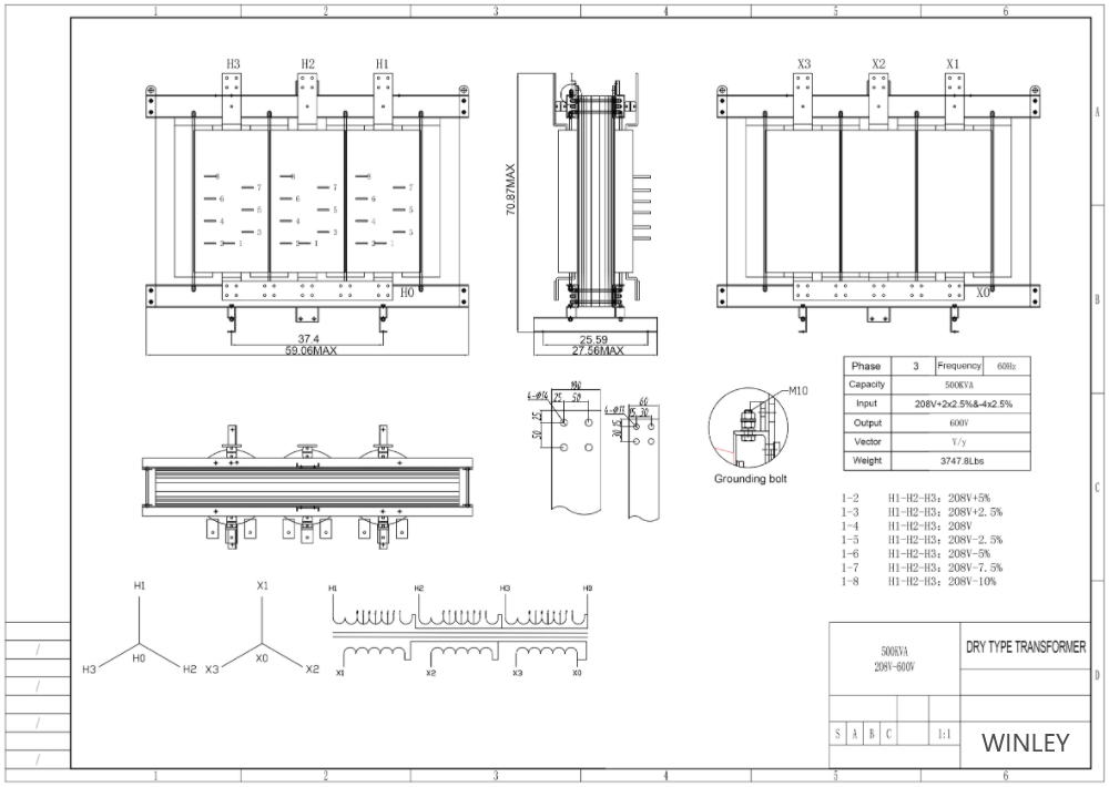
| Модель | SG-500КВА |
| Имя | Трехфазный трансформатор сухого типа |
| Номинальная мощность | 500 кВА |
| Входное напряжение | 208Y с 2x2,5% FCAN и 4x2,5% FCBN |
| Входной ток | 1387.9А |
| Выходное напряжение | 600Y/347V |
| Выходной ток | 481.1А |
| Фаза | Три. |
| Частота | 60 Гц |
| Класс изоляции | В |
| Выдерживает испытание напряжения |
Первичный к вторичному 2500В/60С Первичный к заземлению 2500В/60С Вторичное к заземлению 2500В/60С |
| Сопротивление изоляции |
От первичного до вторичного> 100 МΩ Первичная к заземлению > 100 МΩ Вторичные к заземлению > 100 МΩ |
| Индукционное противопоказание напряжению | 125 Гц/двойное напряжение/мин |
| Сопротивление заземлению | 25А<100мΩ |
| Способ охлаждения | Охлаждение воздухом |
| Соотношение | < 3% |
| Повышение температуры | < 150°C |
| Общие размеры ((AxBxC) | 63×33.46×78.74 |
| Вес | 3747.8 фунтов |
Рисунок

Процесс производства



Частые вопросы
1Вопрос: Можно заказать образец?
О: Да, мы приветствуем заказ образца для проверки качества.
2Вопрос: Сколько времени?
Ответ: Время обработки образцов 3-7 дней, обычно мы отправляем по DHL, UPS, FedEx и т. Д. Время массового производства 7-25 дней.
3. Q: Сколько времени гарантия?
Ответ: 24 месяца с B/L. Если есть какие-либо проблемы с аксессуарами, просто предоставьте фотографии поврежденного аксессуара, тогда мы предоставим бесплатный сервис.мы предоставим легко поврежденные аксессуары бесплатно. мы также можем предоставить техническую поддержку, если вам понадобится.
4Вопрос: Есть ли OEM/ODM?
A: Да, это так! Мы являемся производителем с нашей собственной командой исследований и разработок, мы можем настроить продукцию в соответствии с рисунком или требованиями клиента.
Услуги на заказ:
a. настраиваемый цвет и специальная функция.
b. Коробка на заказ.
в. Напечатать логотип клиента ((MOQ:≥10 шт.).
d. Ваши другие идеи о продукте, мы можем помочь вам разработать и ввести их в производство.
5Вопрос: Как контролировать качество продукции?
A: Наша компания владеет основной технологией, все виды продукции имеют сертификат CE. У нас есть профессиональные инженеры. Рабочие строго обязаны производить продукцию в соответствии с чертежами.Каждый процесс имеет технических инструкторовМы будем проводить тесты производительности продукции во время производства и всеобъемлющие тесты качества, когда продукция будет завершена.