112.5kva Трехфазный трансформатор с монтированной подставкой Электрические трансформаторы от 12000 В до 208 В Соответствуют стандартам ANSI CSA 2016
Первичное напряжение:6.3KV-35KV или другие
Вторичное напряжение:0.12 кВ-0.6 кВ или другие
Тип соединения: Dyn11/YNyn0 или другие
Стандарты: ANSI/IEEE, CSA, DOE 2016
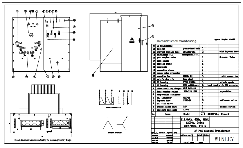
Показатель мощности: 112,5 кВА
Сертификат: UL, CUL, CSA, ISO, CE

Основные данные
| Фаза | Три фазы |
| Тип питания трансформатора | Питание петлей |
| Мощность | 112.5 кВА |
| Векторная группа | DYN1 |
| Первичное напряжение | 12000В |
| Вторичное напряжение | 208Y/120 |
| Частота | 60 Гц |
| Повышение температуры | 65°С |
| Квалификация изоляции | Изоляция класса Е - 120°C, 248°F |
| Класс охлаждения | KNAN; самоохлаждаемые |
| Стандарты эффективности | Соответствует стандартам DOE 2016, стандартам CSA, стандартам ANSI/IEEE. |
| Оценка K-фактора (гармоническое смягчение) | K-1 (стандарт) |
| Материал намотки | Медь |
| Оценка температуры окружающей среды | 40°C |
| Диапазон температуры окружающей среды | -40°C до +40°C (-50°F до +104°F) |
| Уровень звука | 55 дБА |
| Высота (высота) | 3300 футов (1000 метров) над уровнем моря |
| Основной материал | Сталь, ориентированная на зерно |
| Материал резервуара | Покрытая сталь |
| Эффективность в % | 99.00% |
Структура

Технические чертежи

Спецификация
| Спецификация продукта | ||||||||
| Номинальная мощность (KVA) |
Высокое напряжение (KV) |
Низкое напряжение (V) |
Потеря без нагрузки (W) |
Потеря на нагрузке (W) |
Высота (мм) |
Глубина (мм) |
Ширина (мм) |
Вес (в кг) |
| 75 | 34.5 кВ 4.160 кВ 12.47 кВ 13.2 кВ 130,8 кВ 24940GrdY/14400 1247Grdy/7200 4160GrdY/2400 или другие |
277В 347В 480 В 600 В 120/240 В 208GrdY/120 415GrdY/240 480GrdY/277 600Y/347 |
180 | 1250 | 1430 | 910 | 1930 | 645 |
| 150 | 280 | 2200 | 1530 | 980 | 1510 | 989 | ||
| 300 | 480 | 3650 | 1680 | 1080 | 1660 | 1415 | ||
| 500 | 680 | 5100 | 1790 | 1160 | 1810 | 1905 | ||
| 750 | 980 | 7500 | 2030 | 1300 | 2030 | 2755 | ||
| 1000 | 1150 | 10300 | 1854 | 1549 | 1651 | 3235 | ||
| 1500 | 1640 | 14500 | 2150 | 1570 | 2210 | 5835 | ||
| 2000 | 2160 | 20645 | 2220 | 1600 | 2380 | 6430 | ||
| 2500 | 2680 | 23786 | 2330 | 1650 | 3070 | 8865 | ||
| 3000 | 3300 | 30300 | 2460 | 1850 | 3260 | 11300 | ||
| 3735 | 4125 | 37875 | 2680 | 2060 | 4080 | 14400 | ||
Фото продуктов

Процесс производства



Частые вопросы
1Вопрос: Можно заказать образец?
О: Да, мы приветствуем заказ образца для проверки качества.
2Вопрос: Сколько времени?
О: Время массового производства 15-25 дней.
3. Q: Сколько времени гарантия?
Ответ: 24 месяца с B/L. Если есть какие-либо проблемы с аксессуарами, просто предоставьте фотографии поврежденного аксессуара, тогда мы предоставим бесплатный сервис.мы предоставим легко поврежденные аксессуары бесплатно. мы также можем предоставить техническую поддержку, если вам понадобится.
4Вопрос: Есть ли OEM/ODM?
A: Да, это так! Мы являемся производителем с нашей собственной командой исследований и разработок, мы можем настроить продукцию в соответствии с рисунком или требованиями клиента.
Услуги на заказ:
a. настраиваемый цвет и специальная функция.
b. Коробка на заказ.
в. Напечатать логотип клиента.
d. Ваши другие идеи о продукте, мы можем помочь вам разработать и ввести их в производство.
5Вопрос: Как контролировать качество продукции?
A: Наша компания владеет основной технологией, все виды продукции имеют сертификат CE. У нас есть профессиональные инженеры. Рабочие строго обязаны производить продукцию в соответствии с чертежами.Каждый процесс имеет технических инструкторовМы будем регулярно проверять производство, проводить тесты производительности продукции во время производства и всеобъемлющие тесты качества после завершения производства.