Машина чертежа медной проволоки ленты 17IWD PV
Вход 2.5-3.5mm, выход 0.4-2.0mm
Машина чертежа медной проволоки ленты 14FWD PV
Inlet-0.8-1.6mm, выход 0.25-0.8mm
Варианты PND400-500-630
24FWD
Машина чертежа медной проволоки ленты 14FWD PV
Inlet-0.6-1.4mm, выход 0.1-0.4mm
MBB 4 проводов вокруг машины провода ленты PV обжигая и залуживая

характеристики 1.Structural и рабочие параметры:
1. Структурные особенности
(1) регулятор мощности: преобразователь частоты, который можно отрегулировать не позднее 0-200 RPM, контролирует мотор хозяина. Экранные дисплеи касания настоящая скорость хозяина. Оплатите, отжиг, покрытие олова, тракторный двигатель оборудует с преобразователем частоты отдельно. Через вращение поперечной тяги для того чтобы дать сопротивление точности, сигнал изменения значения сопротивления автоматически высчитан под контролем PLC. Приказаны, что регулирует преобразователь частоты скорость мотора немедленно для того чтобы держать конюшню поперечной тяги и регулировать оптимальное напряжение для того чтобы держать диаметр законченной формы продукции. Сервопривод обматывая мотора + PLC могут держать напряжение обматывая диаметра стабилизированным траверза стабилизированы
(2) вознаграждение: тип вала, верхний тип затягивать гайки ядра
(3) обжигая режим: полный отжиг DC волны.
(4) охлаждая режим: водяное охлаждение.
(5) метод покрытия олова: Горячее покрытие олова для поднимаясь ножа воздуха.
(6) вид передачи: вся машина управляется плоского ремнем и toothed поясом.
(7) займет режим: осевая замотка, двойная шпульница каждой головы с автоматическим изменением над вариантом, независимым тракторным двигателем, регулировкой напряжения штанги качания.
(8) используя особенные изделия высокого качества:
A. материал и воздуховод высокой точности.
Импортировано B. Подшипник все или национальные первоклассные подшипники бренда.
C. пояс зуба Германии.
Мотор серии изготовителя первого класса D. Отечественн (белить известью) высококачественные и сервопривод + PLC.
2. Рабочие параметры:
(1) диаметр провода входа: 0.2-0.5mm толстое
(2) ряд линии покрытия олова: одиночная сторона 0.01-0.035mm
(3) механическая скорость: 200mpm/Макс
(4) максимальное число ножей ветра: 4 пары,
(5) номер продукции: 4
(6) залуживать ванну: 120mm глубокое
(7) оплачивает мотор: 2.2kw-5: 1
(8) обжигая тракторный двигатель: 400W
(9) займет тракторный двигатель: 90W
(10) займет мотор: 2.5N/M
(11) мотор сервопривода провода: 750W, + PLC
(12) свертываясь спиралью емкость продукта покрытия олова законченного: 5-10 kg/Макс:
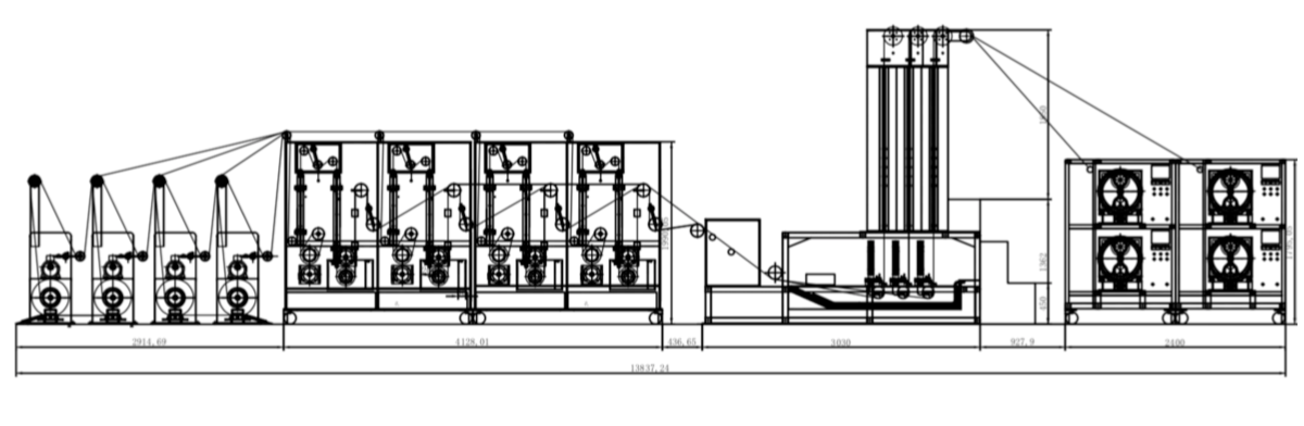
2.Composition машины: 1. PND400 активные оплачивают машину: 4 набора
2. Полная машина отжига DC волны: 4 набора
3. Машина олова горячего погружения обнажая: 1 набор
4. Охладительная решетка: 1 набор
5. Turntable займет машина: 4 набора

|
Ie ribbon_MBB PV Мульти-нашивая провод PV самое новое развитие для множественной технологии шинопровода. С годами, Greateen имеет льва eraged опыты в совершенствованих продукциях, производстве и маркетинге правомочности для того чтобы проектировать провод покрытый припоем медный круглый для клетки провод PV соединения. Мульти-нашивая доступен во всей общей меди ранги. включая высокочистую бескислородную медь. Никакие ограничения относительно доступного размера вам нужно построить самое лучшее performan- модули ce.
Мы начинали процесс покрытия припоя для того чтобы достигнуть концентрического покрытия слои для того чтобы гарантировать последовательные паяя результаты в шнуруя процессе.
|
| Лента/Multi_ PV нашивая спецификацию провода PV | |
| Деталь | Индекс представления |
| Основное вещество | Бескислородная медь; Коэффициент copper≥99.97% |
| Резистивность субстрата | ² /m ρ≤0.017241 mm |
| Состав покрытия олова | Sn60%Pb40% |
| Допуск диаметра | ≤0.01㎜ |
| Произведите прочность RP0.2 | ≤72MPa |
| Прочность на растяжение | ≥150MPa |
| Удлиненность | ≥20% |
| подгонянные спецификации доступные по требованию | |
Другие
1. Краска:
Краска после rustproof продукции согласно нашим стандартам или краска согласно требованиям к покупателя
2. Потребляемые вещества:
Тон-ось (6 месяцев гарантии);
Распределяя направляющие ролики; Траверсировать направляющие ролики; Плоского ремни
3. Период гарантии:
12 месяца для механической части (исключая потребляемых веществ) после пересылки;
6 месяцев для электрических частей после пересылки
Постоянное обслуживание (обязанность)
4. Тест:
Форма A. Работника и компании делает тест совместно в нашей компании после финиша заказа;
B. Если необходимо, то наши штаты делают тест в компании покупателя, покупатель предлагают билет на самолет, пансион (USD100/DAY)
C. Покупатель поставляет полностью материал для теста
5. Обслуживание: Мы предлагаем международную механическую поддержку бесплатно; если инженеры необходимы для того чтобы находиться в компании покупателя для обслуживания, то билет на самолет предложений покупателя (ШАНХАЙ), пансион. (100USD/DAY)
6. Стандартная упаковка экспорта, деревянные паллеты
Примечание:
Проверены, что, наш запас компании объясняет вся информация выше быть осторожным справедливо если любая печатая ошибка или любое недоразумение.
Другой: К сожалению для не замечать никакое предварительное предупреждение для методов улучшения или подъема на машине; любое изменение на возникновении или цвете, пожалуйста ссылается на реальный объект.