1. Полные демонстрация и нововведение отростчатого плана
2. достаточный приобъектный исследовать и составлять карту, подтверждение снабжения
3. детальный план строительства
4. неукоснительный план проекта
5. упревление материальным снабжением персонала и
6. руководство проектом стандарта; стандартные документы, SAP
1. Мобилизация перед конструкцией
2. ежедневные расположение и подтверждение работы
3. управление безопасности
4. план действий в чрезвычайной ситуации
5. поддержка снабжения, работа с клиентом, поддержка снабжения, работа с клиентом
1. 24-часовая продукция сопровождает
2. быстрый ответ к пунктам проблемы
3. сводка и стандартизация
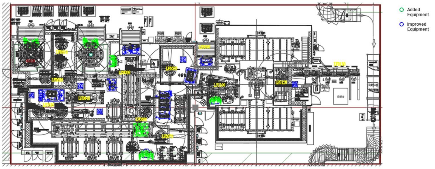
Преобразование цифров введено для линии проверки и преобразования в виртуальных линиях, большого для уменьшения приобъектного времени преобразования и для того чтобы сократить весь цикл преобразования.
Преобразование можно приложить широко, включая линию, бортовую линию приложения, сборочный конвейер пола, линию пола, 4-дверь и линии etc 2-крышки.
Модульный модернизировать можно снабдить к линиям основанным на решениях KINTE стандартных.
Линия преобразование интегрирована с системой MISP независимо начатой KINTE, умно для того чтобы контролировать и диагностировать линии и предсказывать пункты отказа линий, и поэтому большого для уменьшения интенсивности отказов линий.
Сделайте самую лучшую пользу существующих производственных линий
Сделайте самую лучшую пользу существующих производственных линий
Убеждайтесь никакой качественной зыбкости должной к введению новых технологий
Сократите цикл преобразования и уменьшите удары подвеса продукции
Осуществите гибкую совместимость без механического преобразования на введении новых моделей
