Рельс MobileTraveling RMG подгонял кран на козлах контейнера Quayside
Описание:
Стандартная емкость 35ton, 36ton, 40ton, 41ton или 50ton.
Параметр:
| Емкость | Тонна | 35, 41, 50 |
| Пядь | m | 12~35 |
| Поднимаясь высота | m | 6~12 |
| Поднимаясь скорость | m/min | 2~15 |
| Путешествовать скорость | m/min | 20~60 |
| Тип Contaoner | 20GP или 40GP | |
| Тип дисковода | Мотор управляемый для всех движений | |
| Класс обязанности | A5~A7 | |
| Источник питания | 380V, 50HZ, участок 3 (или другой стандарт) | |
| Работая температура | -20~40℃ | |
| Модель контроля | Управление кабины | |
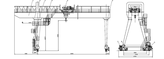
Чертеж крана на козлах контейнера:
