Гаван поднимаясь кран на козлах прогона мобильного контейнера для перевозок двойной
Описание:
Кран на козлах контейнера для перевозок специализированные машины регуляции контейнера двора. Свои перемещения на рельсах для того чтобы поднять и штабелировать 20, 40 и другие контейнеры на районе двора контейнерного терминала, контейнер подняты распространителем прикрепленным в кабели. Эти краны специфически конструированы для интенсивного stackong контейнера должного к своей автоматизации и меньше потребности для человеческий вручать. Кран портала контейнера для перевозок портальный для продажи имеет преимущество управляться электропитанием, уборщиком, более большой поднимаясь емкостью, и более высоким порталом путешествуя скорость с грузом.
Кран на козлах контейнера для перевозок (также контейнер регулируя кран на козлах) тип большого крана на козлах причала найденного на контейнерных терминалах для нагружать и разгружать связанные с использованием различных видов транспорта контейнеры от контейнеровоза.
Емкость: 30.5-50ton
Пядь: 35m
Работая ранг: A6
Работая температура: - 20℃ к 40℃
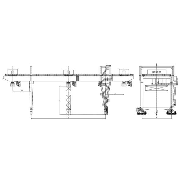
Чертеж крана на козлах контейнера:
