Тип эластичный штырь ZLL с обслуживанием couplingThe тормоза wheelGear удобен, срок службы длинен, и штырь нейлона может быть заменен путем извлекать дефлектор. Штырю нейлона самосмазочный материал и не нужна смазка, которая не только сохраняет смазывая масло, но также очищает рабочую Среду.
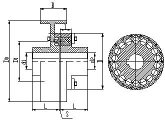
Эластичное соединение шестерни штыря штырь сделанный из нескольких неметаллических материалов, который помещен в сопрягая отверстии между 2 половинами соединения и внутренней поверхностью наружного кольца, и 2 половины соединены через штырь для того чтобы передать вращающий момент. Соединение вала, соединение имеет следующие характеристики:
(1) вращающий момент передачи большой. На таком же вращающем моменте, диаметр вращения главным образом более небольшой чем это из соединения шестерни, и том более светел. Он может частично заменить соединение шестерни.
(2) сравненный с соединением шестерни, эластичное соединение шестерни штыря имеет простую структуру, меньше компонентов, и более удобно для того чтобы изготовить. Оно не требует механического инструмента обработки шестерни.
(3) эластичное соединение шестерни штыря легко для поддержания и имеет длинный срок службы. Штырь нейлона может быть заменен путем извлекать водораспределительную стенку.
(4) штырю нейлона эластичного соединения зуба штыря сделан из самосмазочного материала и не нужна смазка, которая не только сохраняет смазывая масло, но также очищает рабочую Среду.
(5) эластичное соединение шестерни штыря имеет плохое проведение уменьшения вибрации и высокий шум.
Эластичное соединение шестерни штыря имеет проведение компенсировать относительное отклонение 2 валов. Соответствующее для передачи средства и наивысшей мощности, и не соответствующее для частей деятельности которые требуют уменьшения вибрации и строгого контроля за уровнем шума.

| Размер | Вращающий момент Tn KN.m | Скорость (n) r/min | Скважина d1, d2 | Длина mm | D0 | D | B | d3 | l | Вес kg | |
| Y | J, J1, Z1 | ||||||||||
| LZZ1 | 0,25 | 4000 | 16-32 | 42-82 | 30-60 | 160 | 98 | 68 | 10 | 18 | 7 |
| LZZ2 | 0,63 | 3800 | 25-42 | 62-112 | 44-84 | 200 | 124 | 85 | 15 | 25 | 13 |
| LZZ3 | 1,6 | 3000 | 40-60 | 112-142 | 84-107 | 250 | 166 | 105 | 20 | 35 | 30 |
| LZZ4 | 4 | 2400 | 50-80 | 112-172 | 84-132 | 315 | 214 | 132 | 20 | 35 | 52 |
| LZZ5 | 6,3 | 1900 | 60-95 | 172-212 | 107-167 | 400 | 240 | 168 | 30 | 45 | 81 |
| LZZ6 | 10 | 1500 | 70-110 | 172-252 | 132-202 | 500 | 280 | 210 | 30 | 45 | 140 |
| LZZ7 | 16 | 1200 | 80-130 | 172-252 | 132-202 | 630 | 330 | 265 | 35 | 50 | 257 |
| LZZ8 | 25 | 1050 | 90-150 | 172-252 | 132-202 | 710 | 370 | 298 | 35 | 60 | 331 |
| LZZ9 | 31,5 | 950 | 100-170 | 212-302 | 167-242 | 800 | 384 | 335 | 35 | 60 | 424 |

Оборудование для передачи Jude графства Nanpi изготовляя CO., LTD. предприятия которые специализировали в соединении исследования и продукции. Также мы можем начать новые продукты и больш-продукцию. С богатым опытом, профессиональная команда НИОКР и различное оборудование в соединении, оно имеет главные условия к удовлетворенному ваши различные требования.
Продукты компании главные являются следующими: все виды соединений для индустрии машинного оборудования на всем слово, как радиальная гибкая муфта, tyred соединение, всеобщее соединение, соединение шестерни барабанчика, гибкая муфта формы цветка сливы, соединение твердый соединять oldham, связь при помощи цепи ролика, соединение диафрагмы, соединяя соединения штыря рукава столбца эластичные, эластичный контрольный штифт, эластичное соединение контрольного штифта, соединение вала насоса, etc…
Концепции нашей компании в реальном маштабе времени на качестве и превращаются на почетности. Соединение имеет преимущество высококачественного, низкую цену, полные модели продукта. Наша компания будет вашим самым лучшим выбором, и мы смотрят, что вперед сотрудничаем с вами.
Q1: Вы торговая компания или изготовитель?
: Мы фабрика.
Q2: Вы обеспечиваете образцы? оно свободно или дополнительные?
: : Да, мы смогли предложить образец но не бесплатно. Фактически мы имеем очень хороший принцип цены, когда вы делаете оптовый заказ после этого стоите образца будете возвращенны к вам.
Q3: Сколько времени ваш срок поставки?
: Вообще 10-15 дней если товары в запасе. или 7-25 дней если товары нет в запасе, то, оно согласно количеству.
Q4: Сколько времени ваша гарантия?
: Наша гарантия 12 месяца.
Q5: Вы имеете процедуры по осмотра для соединять?
: само-осмотр 100% перед паковать
Q6. Что ваша оплата?
: 1) 100% T/T. 2) 30% заранее, другие перед пересылкой. 3) L/C Q7: Могу я иметь посещение к вашей фабрике перед заказом? : Конечно, радушный посетить нашу фабрику.