Вертикаль высокой точности 6 весен конструирует масштаб линейного кодировщика стеклянный с системой цифрового отсчета
Техническая характеристика изделия
| VA10 | VA11 | VA12 | VA13 | VA20 | VA21 | VA22 | VA23 | ||
| Измеряя стандарт | Стеклянный масштаб - период скрежетать: 20μm (0.02mm) | ||||||||
| Оптически обнаруживая система | Transmissive ультракрасная система: длина волны 880mm | ||||||||
| Система на несущей частоте скольжения | Вертикальная система поддержки 5 подшипников | ||||||||
| Разрешение | 5μm | 1μm | 5μm | 1μm | 5μm | 1μm | 5μm | 1μm | |
| Перемещение измерения | 50-1200mm | Каждые 50mm в спецификацию длины | Не доступный | ||||||
| 1300-3000mm | Не доступный | Каждое 100mm в спецификацию длины | |||||||
| Точность | 50-450mm | ±3μm - ±5μm | -- | ||||||
| 500-800mm | ±10μm | ±5μm | ±10μm | ±5μm | -- | ||||
| 1050-2000mm | ±10μm | ±5μm | ±10μm | ±5μm | -- | ||||
| 1300-3000mm | -- | ±10μm/m | |||||||
| Повторимость | 2μm (0.002mm) | ||||||||
| Hystersis | 3μm (0.003mm) | ||||||||
| Защита | IP 53 | ||||||||
| Электропитание | ± 5% DC 5V | ||||||||
| Выходной сигнал | TTL | TTL | 422 | 422 | TTL | TTL | 422 | 422 | |
Фактически 2 типа кодировщиков: линейные кодировщики и роторные кодировщики. Линейные кодировщики — что мы сфокусируем дальше здесь — прочитанные движения вдоль пути прямого масштаба. Роторные кодировщики использованы для того чтобы измерить движения во вращении. Роторные и линейные кодировщики подобны в как они действуют но конструированы для того чтобы интерпретировать различные движения.
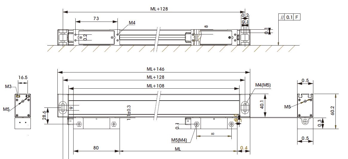
Размеры установки
Серия VA20

Интерфейс соединителя


Кодировщик Easson абсолютный линейный использовать позолоченные штыри для избежания плохого соединения и Анти--корозии, оно имеет небольшой PCB внутри соединителя которые позволяют абсолюту серии VA линейному масштабу построенному в данных по компенсации лазера и сразу соединяются к нашему LCD DRO, обеспечивает высокую измеряя точность.
DSUB 9PIN

| PIN | TTL | 422A | ||
| Сигнал | Кабель | Сигнал | Кабель | |
| 1 | -- | -- | A | Желтый цвет |
| 2 | 0V | Апельсин | 0V | Белый |
| 3 | -- | -- | B- | Красный |
| 4 | GND | GND | GND | GND |
| 5 | -- | -- | R- | Черный |
| 6 | Желтый цвет | Зеленый цвет | ||
| 7 | 5V | Красный | 5V | Браун |
| 8 | B | Зеленый цвет | B | Синь |
| 9 | R | Браун | R | Серый цвет |
Характер продукции
Предварительная оптически измеряя система
Несущая скольжения масштабов серии ПРОТИВ/VA, используя весна 5 нося дизайн и 6 для датчика оптически скрежетать линейного, убеждается масштабы VA не произведенные эффект установкой, весна может отрегулировать угол когда оператор устанавливает хорошее для выравнивания.
Голова читателя все еще в самой лучшей пригонке пути на стекле скрежетать, точность масштаба VA полностью различна с GS или другим брендом в материке Китая.
Масштаб VA имеет небольшой PCB внутри контактного разъема 9, данные по компенсации лазера внутренность магазина, с нашим блоком индикатора LCD цифров, данные по компенсации сразу нагрузит файл ECF (файл компенсации) в DRO, точность до ±2μm.
Тест вызревания

Потребность головы читателя оптически линейного масштаба Easson привести в действие на на 24 x 3 часах старея теста перед собрать,
убеждайтесь что полностью линейный масштаб надежная деятельность на долгое время.
Тарировка 100% лазера

Полностью масштаб линейного кодировщика стеклянный индивидуально проверен и откалибрированный нашим внутренним интерферометром лазера для обеспечения измеряя точности исполните 100% со спецификациями.