Корабль барабанчика хранения 50KN ETA буксируя оборудование
Описание:
Барабанчик хранения 50KN ETA конструирован для хранения аварийной буксируя цели веревочки стального провода оно широко оборудованный на пассажирском корабле, топливозаправщике, и корабле газа. Он имеет простую но сильную структуру.
Главные технические данные:


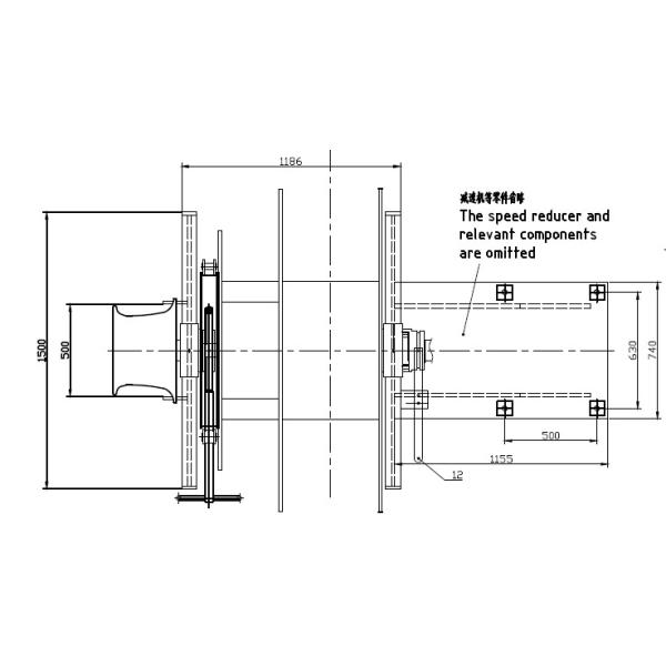
Чертеж аварийного корабля ворота барабанчика хранения расположения отбуксировки 50KN буксируя оборудование

