1600 кг нагрузки и 1,5 м/с больничный лифт для больных инвалидов
Больничный лифт 1600 кг
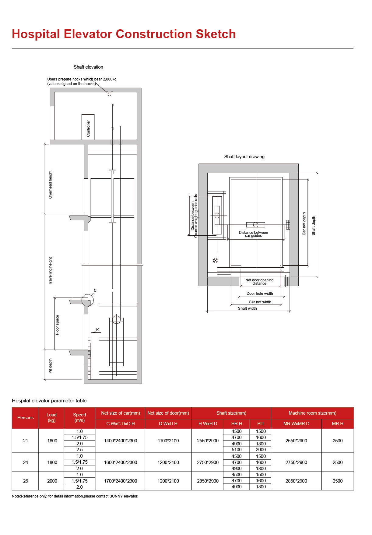
| Модель | Больничный лифт 1600 кг | ||||
| Применение | Жилье, отель, офис, больница | ||||
| Погрузка ((Кг) | 630 | 800 | 1000 | 1350 | 1600 |
| Скорость ((m/s) | 1.0/175 | 1.0/1.75/2.0 | 1.0/1.75/2.0 | 1.0/1.75/2.0/2.5 | 1.0/1.75/2.0/2.5 |
| Двигатель | Двигатель без передач | ||||
| Система управления | Интегрированный контроллер | ||||
| Управление дверью | VVVF | ||||
| Ширина открытия ((m) | 800*2100 | 800*2100 | 900*2100 | 1100*2100 | 1100*2100 |
| Размещение головы (m) | 4.0-4.5 | ||||
| Глубина ямы (м) | 1.5 | 1.5-1.7 | 1.5-1.8 | 1.8-2.0 | 1.8-2.0 |
| Общая высота ((m) | < 150 м | ||||
| Прекратите! | < 56 | ||||
| Напряжение тормоза | DC110V | ||||
| Сила | 380V,220V,50HZ/60HZ | ||||





Частые вопросы
1- Лифтовые провода прочны?
Конфигурация не только для проволоки и номинальной нагрузки, но и учитывает размер тяги, в результате,прочность проволоки больше веса подъемникаУстройство безопасности оснащено более чем четырьмя проволоками, поэтому оно не сломается одновременно.
2. Опасно ли внезапное отключение электроэнергии во время работы лифта?
Если это произойдет, лифт автоматически остановится из-за электрического и механического устройства безопасности.отделы электроснабжения, такие как запланированное отключение, предварительное уведомление также работают.
3Мы не пострадаем, когда он внезапно закроется?
В процессе закрытия, если люди прикоснутся к двери коридора, дверь лифта автоматически перезапустится без опасности.Это переключающее действие делает лифт невозможно закрыть и даже снова открытьКроме того, сила закрытия также доступна здесь.
4Как работает лифт?
Подъемники работают с помощью проволочной веревки с противовесом через тяговый привод (трактор), делая подъемы и падения на направляющей рельсе.
5Установка эскалатора сложная?
Мы считаем, что функции эскалатора не обязательно пропорциональны сложности работы.чтобы оборудование было более точным и эффективным и позволило легче и удобнее вводить в эксплуатацию.
6У вас есть какие-нибудь справки?
Да, у нас есть сертификаты ISO9001 / CCC / CE для вас.